Chain-free, single-storey bungalow with garage and low-maintenance gardens — ready to move into.
Chain-free link-detached bungalow, recently refurbished throughout
Two good-sized bedrooms and a four-piece bathroom
Generous lounge/diner with feature fireplace and large front window
Separate kitchen with new flooring and appliance spaces
Enclosed low-maintenance front and rear gardens; recently landscaped front
Driveway, car port and single garage with up-and-over door
EPC rating D; cavity walls assumed uninsulated — energy upgrades likely
Built c.1967–1975; typical mid-century construction details present
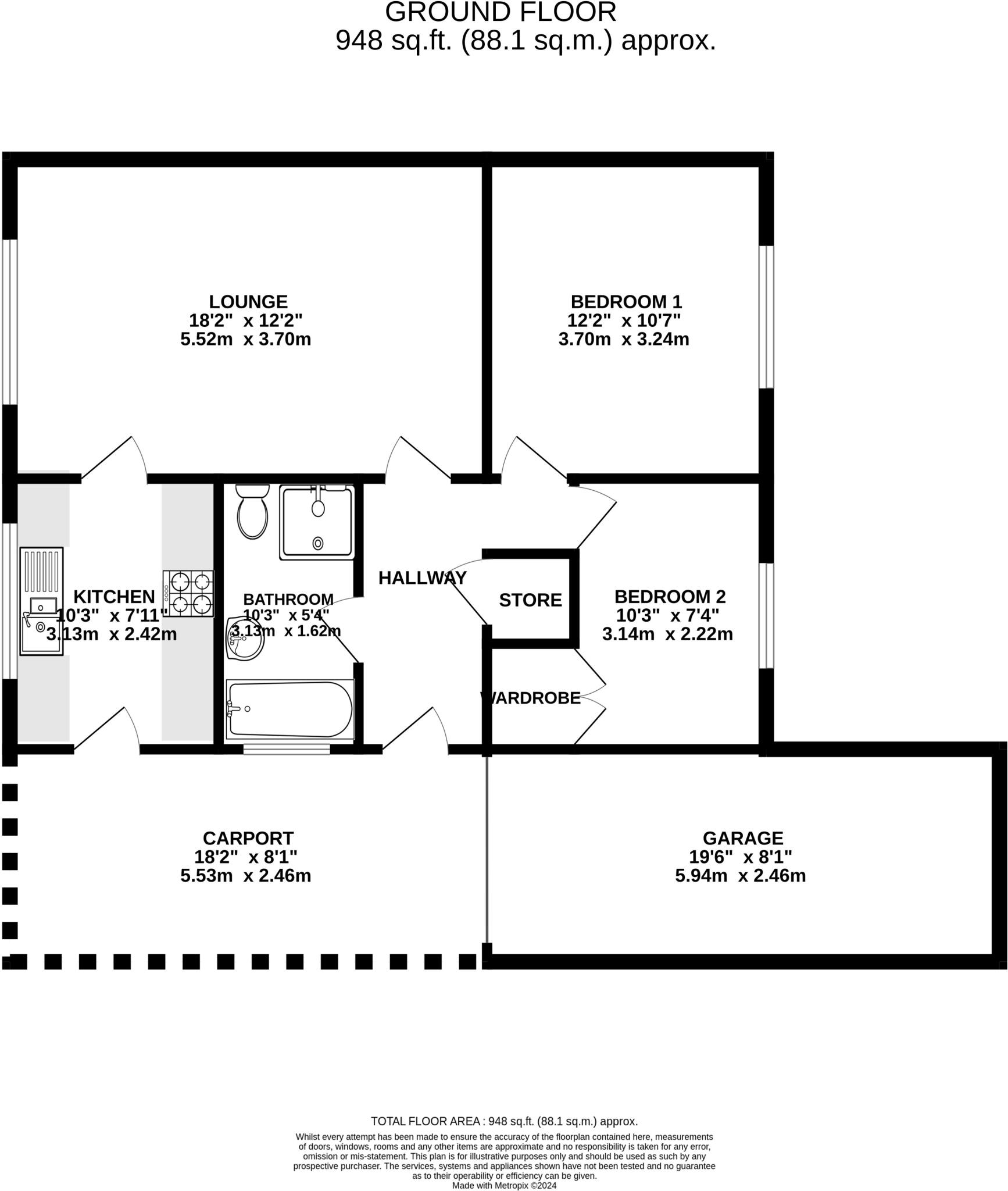
This link-detached bungalow on Old Hall Road offers a comfortable, single-storey home ideal for downsizers or retirees seeking low-maintenance living. The property is chain-free and has been recently refurbished with new carpets and kitchen flooring, making it largely move-in ready.
Accommodation includes a generous lounge/diner, separate kitchen, two good-sized bedrooms and a four-piece bathroom. Outside there are enclosed, low-maintenance front and rear gardens, a car port, driveway and a single garage — practical for owners who need storage or parking.
Practical considerations: the EPC is D and the walls are cavity-built with no known added insulation (assumed), so further improvements could reduce running costs. The bungalow was constructed in the late 1960s–1970s, and while recently refreshed, buyers should expect typical mid-20th-century construction details and consider updating energy efficiency over time.
Positioned in a popular Glusburn neighbourhood with good local shops, schools and regular bus and nearby rail links, the house suits commuters to Skipton, Keighley and Leeds, or anyone wanting convenient access with a quieter, suburban feel.
 3 bedroom detached bungalow for sale in 7 Beanlands Drive, Glusburn BD20 8PZ, BD20 — £375,000 • 3 bed • 1 bath • 872 ft²
 3 bedroom detached bungalow for sale in 7 Beanlands Drive, Glusburn BD20 8PZ, BD20 — £375,000 • 3 bed • 1 bath • 872 ft² 2 bedroom end of terrace house for sale in 19 Colne Road, Glusburn BD20 8QR , BD20 — £235,000 • 2 bed • 1 bath • 699 ft²
 2 bedroom end of terrace house for sale in 19 Colne Road, Glusburn BD20 8QR , BD20 — £235,000 • 2 bed • 1 bath • 699 ft² 3 bedroom detached house for sale in Green Ways, Glusburn Bridge, Glusburn, BD20 — £475,000 • 3 bed • 2 bath • 1266 ft²
 3 bedroom detached house for sale in Green Ways, Glusburn Bridge, Glusburn, BD20 — £475,000 • 3 bed • 2 bath • 1266 ft² 2 bedroom detached bungalow for sale in Oak Bank Crescent, Oakworth, Keighley, BD22 — £219,950 • 2 bed • 1 bath • 637 ft²
 2 bedroom detached bungalow for sale in Oak Bank Crescent, Oakworth, Keighley, BD22 — £219,950 • 2 bed • 1 bath • 637 ft² 2 bedroom bungalow for sale in Fell Lane, Keighley, West Yorkshire, BD22 — £245,000 • 2 bed • 1 bath • 960 ft²
 2 bedroom bungalow for sale in Fell Lane, Keighley, West Yorkshire, BD22 — £245,000 • 2 bed • 1 bath • 960 ft² 2 bedroom bungalow for sale in Moorview Way, Skipton, North Yorkshire, BD23 — £325,000 • 2 bed • 1 bath • 708 ft²
 2 bedroom bungalow for sale in Moorview Way, Skipton, North Yorkshire, BD23 — £325,000 • 2 bed • 1 bath • 708 ft²


















































































