Large garden and period features ideal for growing families.
Three double bedrooms including recently converted loft with storage
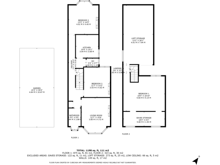
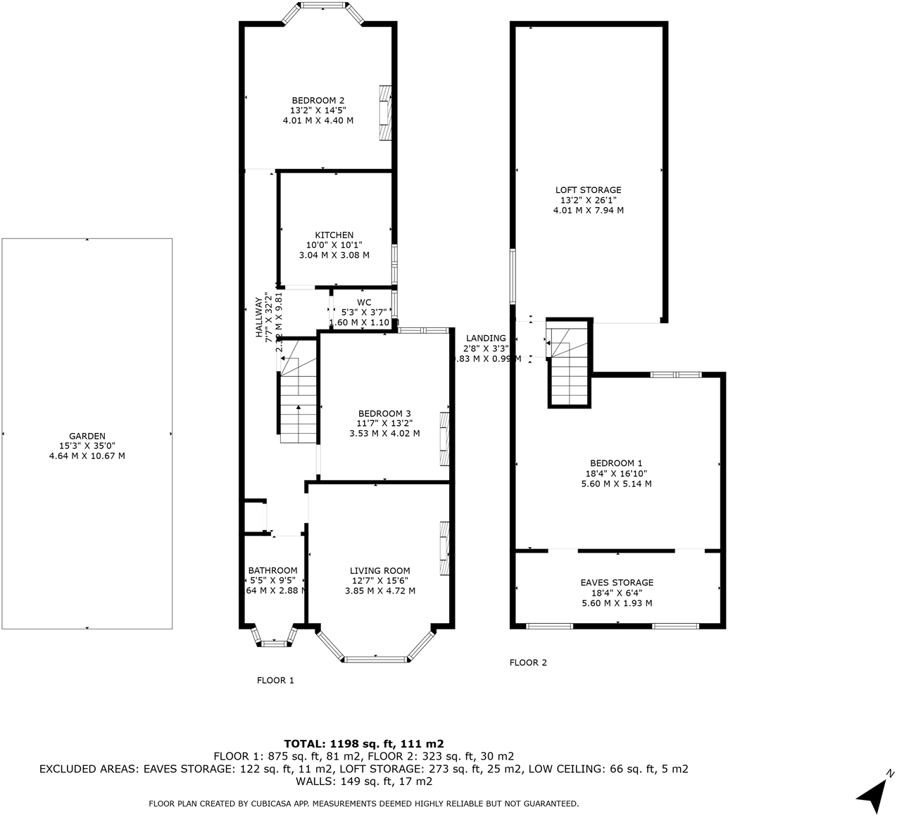
This spacious first-and-second-floor Victorian conversion offers practical family living across more than 1,100 sq ft. The flat has three double bedrooms, including a newly finished loft conversion with extensive eaves storage, and direct access to a large south‑west-facing private garden for afternoon and evening sun.
Period features include high ceilings, original cornicing, sash windows and a decorative fireplace in the front reception, balanced by a modern fitted kitchen with integrated appliances. The layout includes a family bathroom plus a separate WC, and an additional storage area off the staircase for everyday practicality. The property is sold as a share of freehold with approximately 965 years remaining.
Location suits commuters and families: Streatham Common, Streatham (Thameslink) and Norbury stations are walkable, with regular bus routes to Brixton and the Victoria Line. Several highly rated primary and secondary schools are close by, and local cafés, pubs and green spaces provide family-friendly amenities.
Notable negatives are stated plainly: the area records above-average crime levels, the building’s original solid brick construction suggests limited wall insulation (potential energy-efficiency work required), and there is a single bathroom serving three bedrooms. These factors should be considered alongside the property’s generous living space and garden when planning refurbishment or family use.
2 bedroom flat for sale in Greyhound Lane, Streatham, SW16 — £375,000 • 2 bed • 1 bath • 706 ft²
3 bedroom flat for sale in Buckleigh Road, Streatham, SW16 — £525,000 • 3 bed • 2 bath • 903 ft²
3 bedroom flat for sale in Gleneldon Road, Streatham, SW16 — £595,000 • 3 bed • 2 bath • 1250 ft²
3 bedroom flat for sale in Gleneldon Road, Streatham, SW16 — £600,000 • 3 bed • 1 bath • 1250 ft²
2 bedroom flat for sale in Barrow Road, Streatham, SW16 — £475,000 • 2 bed • 1 bath • 609 ft²
3 bedroom flat for sale in Mount Nod Road, Streatham, London, SW16 — £525,000 • 3 bed • 2 bath • 1113 ft²


















































































