**Standout Features:**
- Open plan design with a spacious 27 ft sitting/dining room
- Contemporary kitchen equipped with an electric Aga and walk-in pantry
- Two dedicated home offices, perfect for remote work with super-fast broadband
- Energy-efficient features including air source heat pump, solar panels, and underfloor heating
- Established cottage-style gardens with a wildlife pond and outdoor dining areas
- Secluded location with off-street parking for three cars
- Built in 2017, modern construction with local materials
**Potential Concerns:**
- Average mobile signal
- High council tax band (F)
- Located in a rural area, which may require travel for amenities
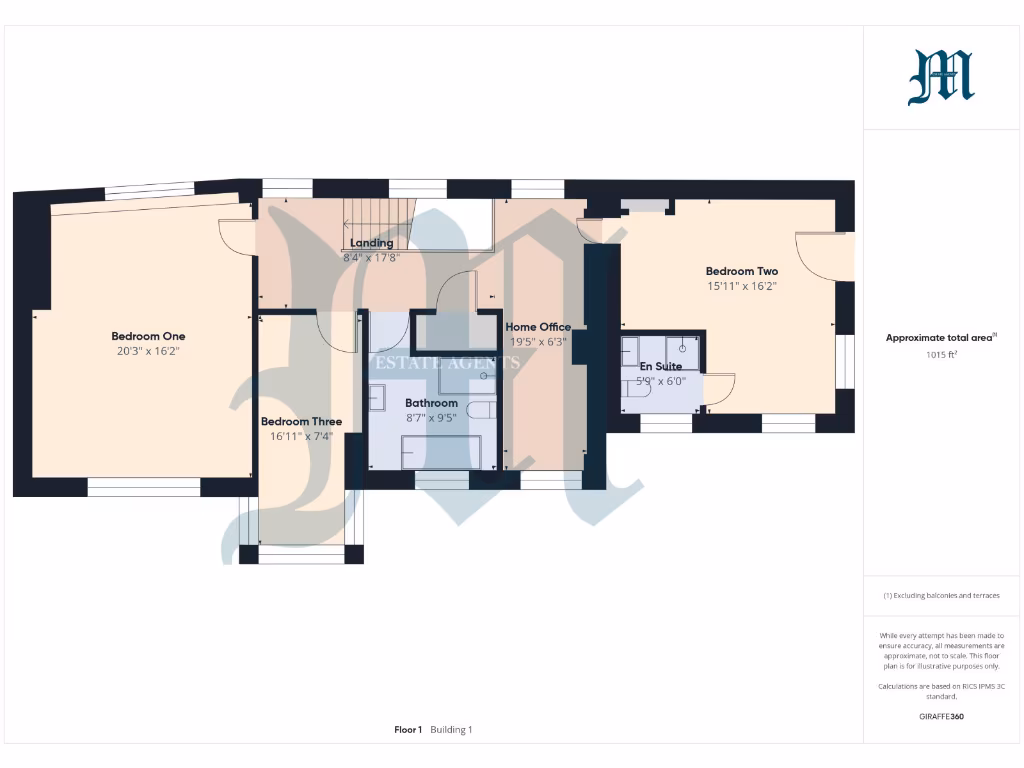
This stunning semi-detached home in Lamorna offers the perfect blend of cozy charm and modern conveniences, ideal for families and professionals alike. Spanning approximately 230 square metres, the open-plan layout bathes the interior in natural light, creating an inviting atmosphere. A bespoke Aga kitchen, complete with handmade Ash cabinetry, is a chef's dream, while the dual home offices ensure a seamless remote working experience.
Step outside to discover meticulously landscaped gardens filled with vibrant flora and a tranquil wildlife pond, providing a serene retreat from the hustle and bustle of daily life. Enjoy breathtaking views over Lamorna Valley, with easy access to the Southwest Coastal Path and nearby secluded beaches for a quintessential Cornish lifestyle. With energy-efficient elements that lower living costs and ensure comfort year-round, this home is a rare find.
Don’t miss out on the opportunity to own this unique property; its blend of beauty, practicality, and location is sure to attract keen buyers.
1 bedroom barn conversion for sale in Barn conversion with coastal views, Lamorna, TR19 — £559,950 • 1 bed • 1 bath • 634 ft²
3 bedroom detached house for sale in Boskednan, Ding Dong, TR20 8XX, TR20 — £650,000 • 3 bed • 1 bath • 1259 ft²
3 bedroom detached house for sale in Lamorna, Penzance, TR19 — £725,000 • 3 bed • 1 bath • 1686 ft²
4 bedroom detached house for sale in Lamorna, TR19 6XH, TR19 — £475,000 • 4 bed • 2 bath • 1410 ft²
5 bedroom detached house for sale in Numphra, St Just, TR19 7RP, TR19 — £675,000 • 5 bed • 2 bath • 2085 ft²
5 bedroom detached house for sale in Rosehill, Penzance, TR20 8TE, TR20 — £925,000 • 5 bed • 3 bath • 3081 ft²


































































































