Spacious 4-bed family home with sea views; needs modernisation and services attention.
Sea views over Lamorna Valley from living room and long balcony
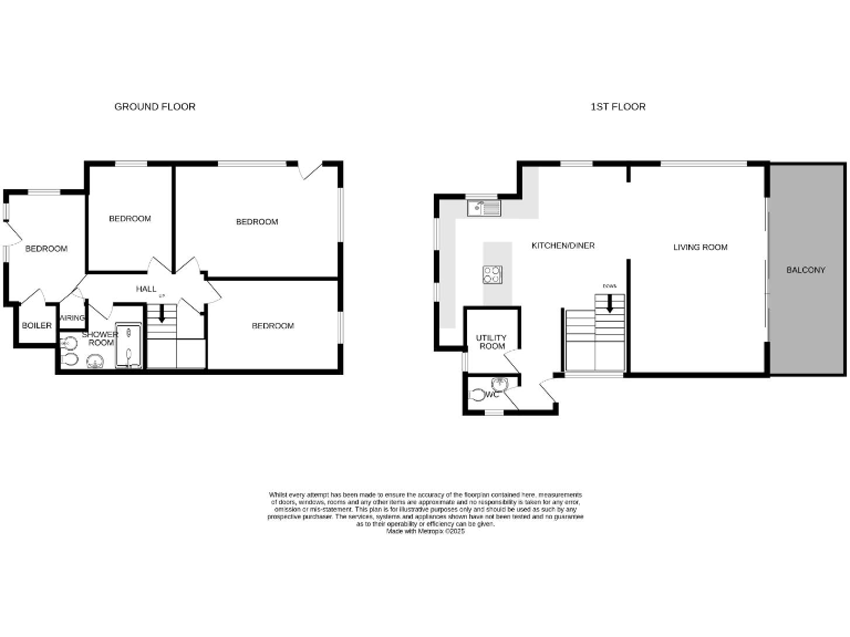
Treetops is a four-bedroom detached, reverse-level family house set in the sought-after Lamorna valley within an Area of Outstanding Natural Beauty. The living room and long balcony take full advantage of sea views down the valley, while large, terraced gardens and mature trees provide a high degree of privacy. Parking for two cars is available at the property.
The accommodation is spacious throughout but requires updating and some repairs: the oil boiler is not working, the hob and integrated fridge are reported as not working, and the house generally needs modernisation. Services include mains electricity and water, with shared septic tank drainage; Southwest Water have indicated a potential direct water supply could be fitted (quotes being gathered). EPC rating E and council tax band F reflect running costs to consider.
This home will suit a family seeking views, garden privacy and village living close to the cove and local pub, or a buyer wanting to invest time and budget into renovation to create a characterful coastal home. With quick access to Penzance (about 5 miles) and transport links, it is well placed but best viewed by appointment to appreciate the setting and scope for improvement.
4 bedroom semi-detached house for sale in Lamorna, TR19 6XH, TR19 — £750,000 • 4 bed • 3 bath • 2476 ft²
1 bedroom barn conversion for sale in Barn conversion with coastal views, Lamorna, TR19 — £559,950 • 1 bed • 1 bath • 634 ft²
2 bedroom terraced house for sale in Sea View Terrace, Newlyn, Penzance, Cornwall, TR18 5PE, TR18 — £375,000 • 2 bed • 1 bath • 990 ft²
3 bedroom detached house for sale in Lamorna, Penzance, TR19 — £725,000 • 3 bed • 1 bath • 1686 ft²
3 bedroom detached house for sale in Raginnis, Mousehole, TR19 6NJ, TR19 — £650,000 • 3 bed • 1 bath • 1487 ft²
3 bedroom detached house for sale in Boskednan, Ding Dong, TR20 8XX, TR20 — £650,000 • 3 bed • 1 bath • 1259 ft²






























































