Well-specified 1,520 sq ft warehouse with mezzanine, parking and A27 access..
- Freehold modern unit approximately 1,520 sq ft
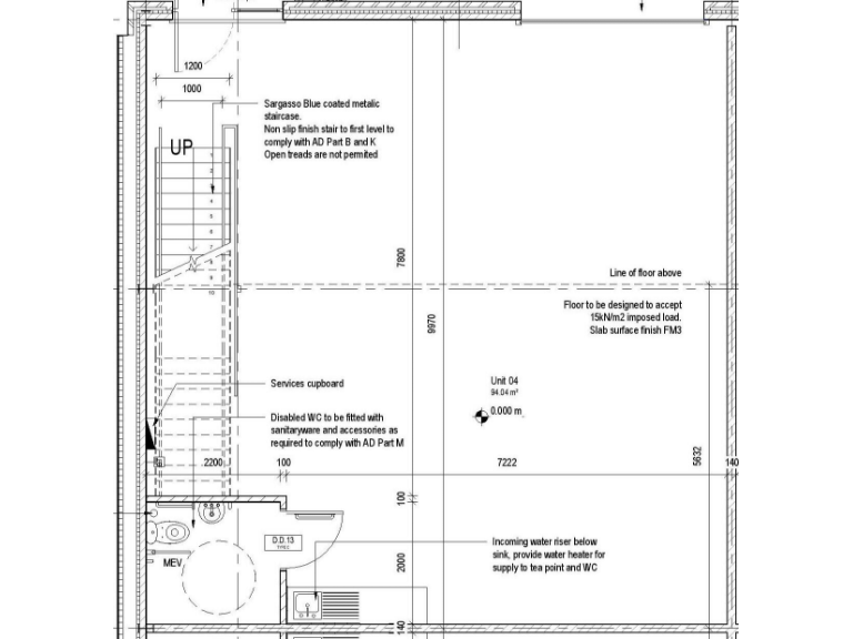
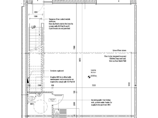
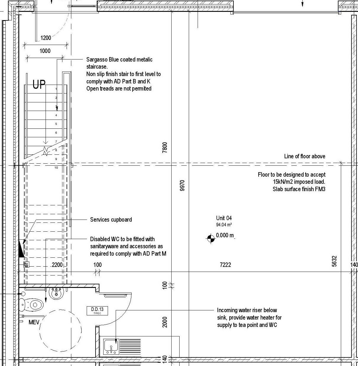
- Ground-floor warehouse with tall internal eaves and roller shutter
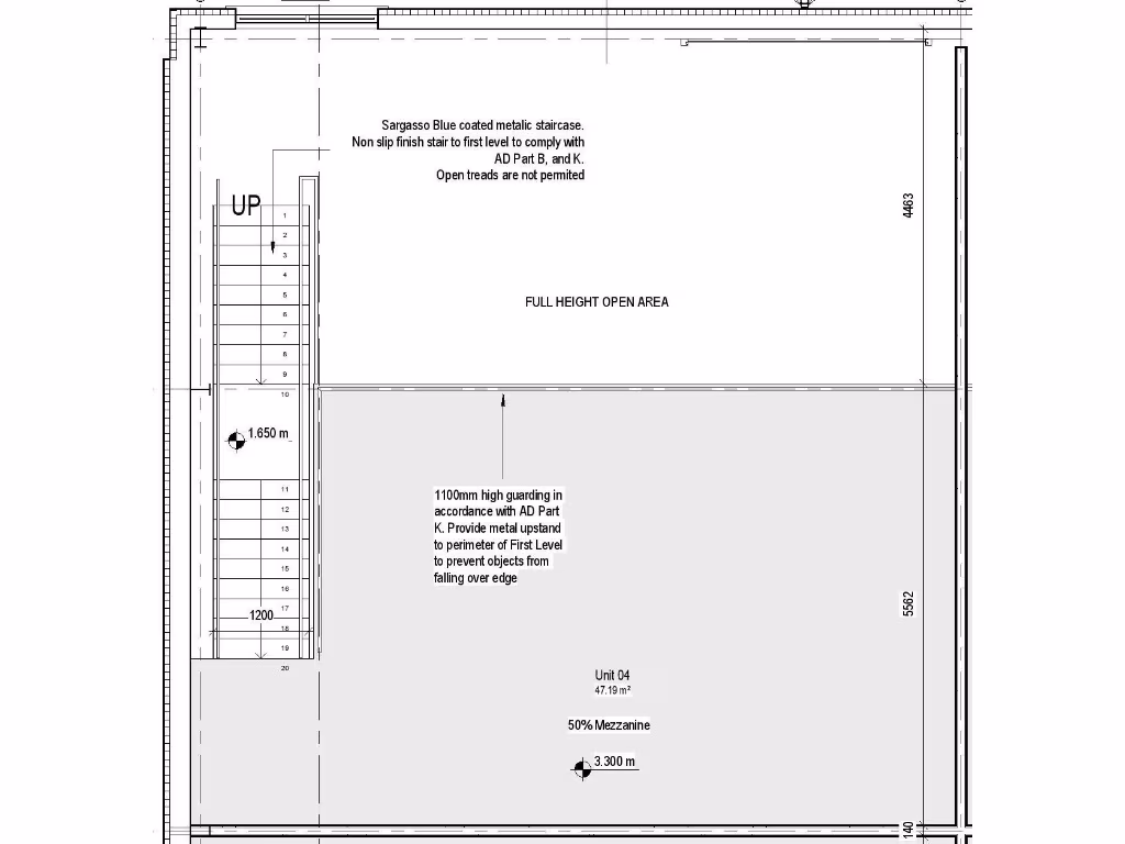
- First-floor mezzanine for storage or office use
- Allocated on-site parking and private loading bay
- Direct access onto A27; station ~850 yards away
- Aimed at E(g)(iii)/B2/B8; motor trade excluded
- Immediate surroundings commercial; limited landscaping, no garden
- Local area described as deprived; conduct due diligence
Unit 4 Stanley Court is a modern freehold light industrial/warehouse unit of approximately 1,520 sq ft on a 16-unit estate with strong road and rail links. The ground-floor warehouse features tall internal eaves and an electric roller shutter, while a first-floor mezzanine provides practical storage or office space. Allocated on-site parking, a private loading bay and direct access onto the A27 support trade, distribution and SME operators.
The specification suits E(g)(iii)/B2/B8 uses: insulated micro-rib cladding, brick elevations, good vehicle circulation and roadside visibility. Chichester railway station is about 850 yards from the estate entrance, and neighbouring occupiers are predominantly commercial and retail, including trade counters. The unit is available on new lease terms from November 2024 or may be acquired freehold at the listed price.
Buyers should note the immediate surroundings are industrial rather than residential, with limited landscaping and no private garden or amenity space. Motor trade uses are excluded. The local area is described as deprived, which may affect workforce availability and local demand; purchasers should carry out their own due diligence on planning consent and intended uses.
Overall this is a well-specified, small-to-medium warehouse unit aimed at investors or occupiers seeking a modern, visible trading base with immediate A27 access and on-site parking.
Warehouse for sale in Unit 10 Stanley Court, Terminus Road, Chichester, West Sussex, PO19 — £427,500 • 1 bed • 1 bath • 1446 ft²
Warehouse for sale in Unit 2 Stanley Court, Terminus Road, Chichester, West Sussex, PO19 — £427,500 • 1 bed • 1 bath • 1356 ft²
Distribution warehouse for sale in Stanley Court, Terminus Road, Chichester, Sussex, PO19 — POA • 1 bed • 1 bath • 1520 ft²
Warehouse for sale in Unit K39 & K40, Glenmore Business Park, Chichester, PO19 7BJ, PO19 — £570,000 • 1 bed • 1 bath • 4048 ft²
Warehouse for sale in Unit 11 Worthing Business Park, Dominion Way, Worthing, West Sussex, BN14 — £292,500 • 1 bed • 1 bath • 894 ft²
Warehouse for sale in Unit 10 Worthing Business Park, Dominion Way, Worthing, West Sussex, BN14 — £345,000 • 1 bed • 1 bath • 1050 ft²






































