Ready-to-move-in home with large garden and off-street parking.
Two-bedroom single-storey bungalow, newly renovated interior
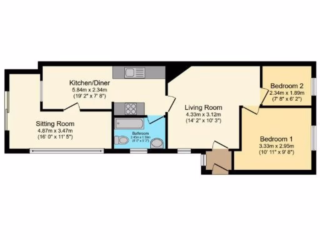
This tastefully modernised semi-detached bungalow offers single-storey living with a contemporary feel. An extended kitchen/diner, impressive shower room suite and generous sun lounge provide flexible living space ideal for day-to-day life.
Outside, the property benefits from a block-paved driveway for off-street parking and a good-size rear garden of approximately 60ft, laid to lawn with a patio and shed. Gas central heating, double glazing and fast FTTC broadband make the home practical and low-maintenance for first-time buyers or retirees.
Practical details are straightforward: freehold tenure, newly renovated interior, tucked-in loft insulation and a recently replaced sun lounge roof. Nearby schools and basic amenities are convenient, but note the wider area scores as deprived and recorded crime rates are above average.
This bungalow suits buyers seeking a ready-to-move-in, low-upkeep home with room to personalise. The smaller second bedroom is best as a home office or dressing room rather than a full double; purchasers should consider the neighbourhood profile when comparing value.
2 bedroom semi-detached bungalow for sale in Carisbrooke Avenue, Great Clacton, CO15 — £250,000 • 2 bed • 1 bath
2 bedroom bungalow for sale in Abinger Close, Clacton on Sea, CO16 — £250,000 • 2 bed • 1 bath • 524 ft²
2 bedroom bungalow for sale in Credon Drive, Clacton on Sea, CO15 — £200,000 • 2 bed • 1 bath • 747 ft²
2 bedroom bungalow for sale in Woodlands Close, Clacton on Sea, CO15 — £250,000 • 2 bed • 1 bath
2 bedroom semi-detached bungalow for sale in The Avenue, Clacton-On-Sea, CO15 — £290,000 • 2 bed • 1 bath • 657 ft²
2 bedroom bungalow for sale in Risby Close, Clacton on Sea, CO16 — £240,000 • 2 bed • 1 bath






























































