Bright two-bedroom home close to seafront and local shops.
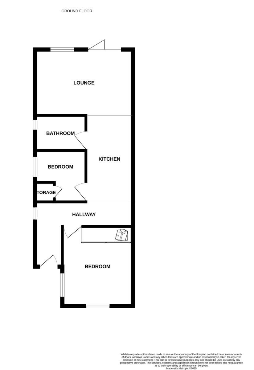
Newly renovated open-plan lounge and kitchen with integrated appliances
Two bedrooms, one updated bathroom — ready to move into
Private rear garden plus dedicated workshop for storage or hobbies
Driveway provides off-street parking; freehold tenure
Built 1930–1949; cavity walls assumed uninsulated — insulation likely needed
Mains gas boiler and radiators provide heating
Fast broadband; average mobile signal; no flood risk
Area shows above-average crime and local deprivation indicators
This recently renovated two-bedroom semi-detached bungalow offers bright, low‑maintenance living on a peaceful residential road just minutes from local amenities and the seafront. An open-plan lounge and contemporary kitchen maximise light and circulation, and integrated appliances and quality finishes give immediate move‑in appeal. The property is freehold and extends to about 657 sq ft.
The home includes two well-proportioned bedrooms and an updated bathroom arranged in a traditional, single‑storey layout ideal for downsizers or buyers seeking step‑free accommodation. Outside there is a private rear garden with a dedicated workshop for hobbies or storage, plus a driveway providing convenient off‑street parking. Broadband speeds are reported as fast and there is no flood risk for the area.
Practical considerations: the house was built 1930–1949 and cavity walls are assumed to lack insulation, so additional insulation work may be needed to optimise energy efficiency. Heating is mains gas via a boiler and radiators. The wider neighbourhood shows above‑average crime levels and local deprivation indicators, which may concern some buyers; weigh location benefits against these points.
Nearby schooling is well served with several Good‑rated primary and secondary schools within easy reach. The property suits downsizers or retirees looking for a modern, single‑floor home near shops, transport links and the coast, while buyers prepared to make targeted energy improvements will gain a comfortable, low‑maintenance base.
2 bedroom semi-detached bungalow for sale in Carisbrooke Avenue, Great Clacton, CO15 — £255,000 • 2 bed • 1 bath
2 bedroom bungalow for sale in Becontree Close, Clacton on Sea, CO15 — £220,000 • 2 bed • 1 bath
2 bedroom detached bungalow for sale in Munnings Drive, Clacton-On-Sea, CO16 — £270,000 • 2 bed • 1 bath • 958 ft²
2 bedroom semi-detached bungalow for sale in Laurel Close, Clacton on Sea, CO15 — £230,000 • 2 bed • 1 bath
2 bedroom bungalow for sale in Abbots Close, Clacton-on-Sea, Essex, CO15 — £280,000 • 2 bed • 1 bath • 730 ft²
2 bedroom bungalow for sale in Carlton Road, Clacton-on-Sea, Essex, CO15 — £350,000 • 2 bed • 1 bath • 828 ft²






































































