Affordable shared-ownership opportunity near schools, shops and fast transport links.
- Two double bedrooms, open-plan lounge/diner with balcony
- Allocated off-street parking and communal garden
- Lift access and secure buzzer entry to communal areas
- Shared ownership 66% (full price £165,000)
- Lease c.114 years remaining
- Service charge £4,236 pa (above average)
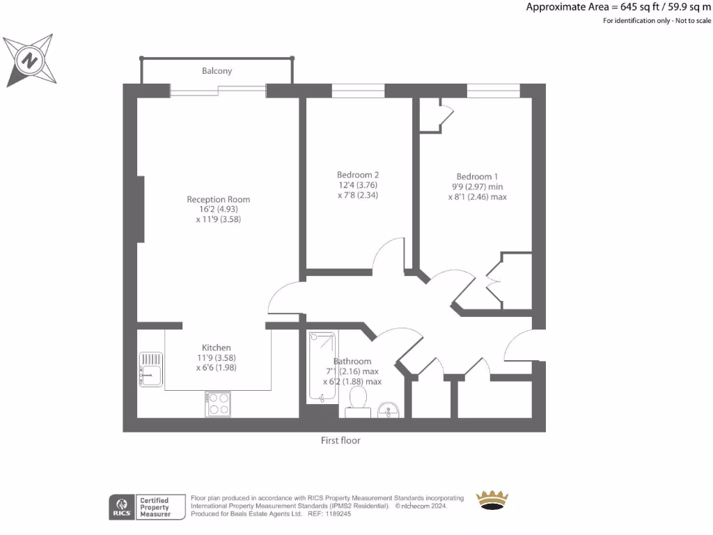
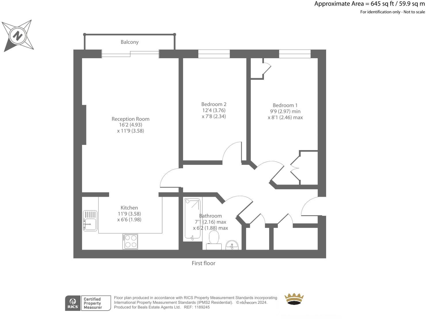
- Single fitted bathroom; approx. 645 sq ft internal space
- No forward chain; modern build with double glazing
A bright, well-presented two-double-bedroom apartment set on Gisors Road, offered as 66% shared ownership with no forward chain. At about 645 sq ft, the flat sits in a modern block (built 2003–2006) and benefits from a private balcony, allocated off-street parking and a communal garden — practical extras for everyday life.
Internally the home feels contemporary and functional: an open-plan lounge/diner leads to the balcony, a fitted kitchen adjoins the living space, and two generous double bedrooms share a fitted bathroom. There is lift access and a secure buzzer entry for the communal areas, which suits buyers seeking easy access and low-stairs living.
Practical considerations: the lease has around 114 years remaining and the annual service charge is £4,236 (above average), which will affect monthly housing costs. The property is leasehold and sold as shared ownership (66%), with a full market price of £165,000 — make sure shared-ownership eligibility and ongoing service charges suit your budget before viewing.
Positioned in Milton, the apartment is close to local shops, transport links on Eastern Road and several schools (mixed Ofsted outcomes). Broadband is fast and there is no recorded flood risk; the property should suit first-time buyers seeking an affordable entry into homeownership with straightforward commuting and local amenities nearby.
2 bedroom flat for sale in Gisors Road, Southsea, PO4 — £170,000 • 2 bed • 1 bath • 645 ft²
2 bedroom apartment for sale in Gisors Road, Southsea, Hampshire, PO4 — £187,500 • 2 bed • 1 bath • 517 ft²
2 bedroom apartment for sale in 2 East Shore Way, Milton, PO3 — £200,000 • 2 bed • 2 bath • 547 ft²
2 bedroom flat for sale in Admirals House, Gisors Road, PO4 — £180,000 • 2 bed • 2 bath • 685 ft²
2 bedroom flat for sale in East Shore Way, Milton, Portsmouth, PO3 — £195,000 • 2 bed • 2 bath
2 bedroom apartment for sale in Southsea Terrace, Southsea, Hampshire, PO5 — £250,000 • 2 bed • 1 bath • 506 ft²


























































