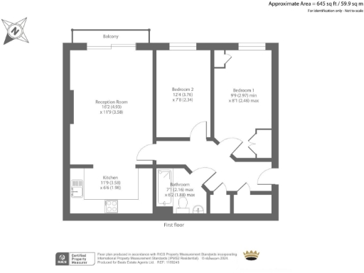
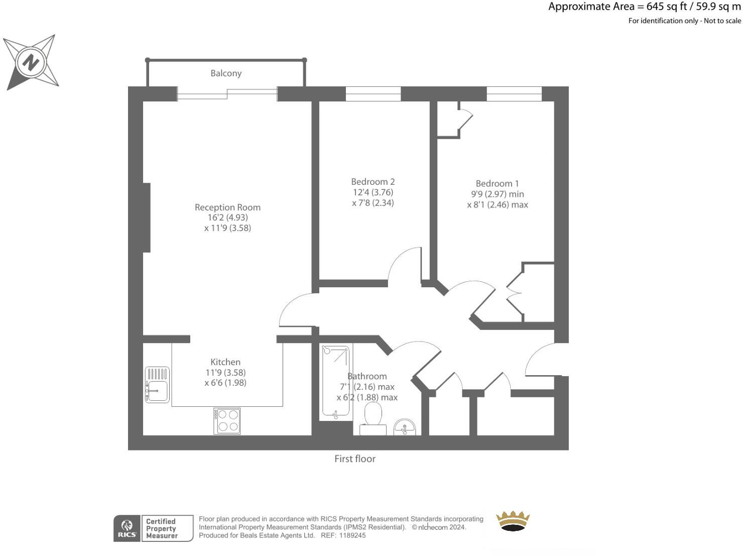
Shared-ownership chance with balcony and allocated parking near shops and transport.
Two double bedrooms and open-plan lounge/diner
Private balcony overlooking communal gardens
Allocated off-street parking space included
Long lease: 114 years remaining
Shared Ownership tenure — staircasing/resale conditions apply
Service charge £4,236 pa (above average)
Built 2003–2006 with double glazing and gas central heating
Single fitted bathroom, average overall size
This well-presented two double-bedroom flat on Gisors Road offers a practical first step on the property ladder via Shared Ownership. The open-plan lounge/diner flows to a private balcony, and allocated off-street parking adds everyday convenience for commuters and small families.
Built in the mid-2000s, the apartment benefits from double glazing, gas central heating and a secure entry with lift access to the communal areas. The long lease (114 years) reduces long-term ownership uncertainty, while a single fitted bathroom and average room sizes keep maintenance straightforward.
Buyers should note this is a leasehold Shared Ownership property: staircasing rules and resale conditions will apply. The service charge is higher-than-average at £4,236 annually, which covers communal maintenance and grounds; factor this into monthly costs. Local amenities, good transport links and nearby schools make the location practical, though some local schools have mixed Ofsted outcomes.
2 bedroom flat for sale in Gisors Road, Southsea, PO4 — £108,900 • 2 bed • 1 bath • 645 ft²
2 bedroom apartment for sale in 2 East Shore Way, Milton, PO3 — £200,000 • 2 bed • 2 bath • 547 ft²
2 bedroom flat for sale in Admirals House, Gisors Road, PO4 — £180,000 • 2 bed • 2 bath • 685 ft²
2 bedroom flat for sale in Gisors Road, Southsea, PO4 — £205,000 • 2 bed • 2 bath • 676 ft²
2 bedroom flat for sale in East Shore Way, Milton, Portsmouth, PO3 — £195,000 • 2 bed • 2 bath
2 bedroom apartment for sale in Military Road, Hilsea, Portsmouth, PO3 — £160,000 • 2 bed • 1 bath • 513 ft²














































