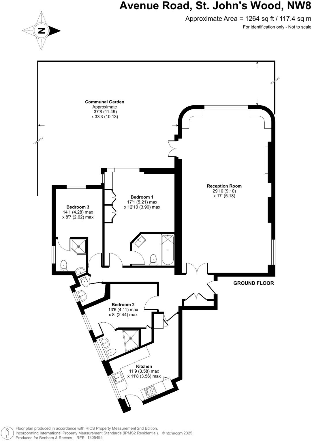
Ground-floor three-bed apartment with garden access in premier St John’s Wood location..
1,264 sqft ground-floor apartment with direct communal garden access
Double-aspect 29 ft reception room, abundant natural light
Three double bedrooms, each with en-suite bathrooms
Separate guest WC and a fully fitted kitchen
Two off-street parking spaces (permit, first-come basis)
Resident porter, passenger lift, and separate storage unit
Leasehold with very long lease; communal heating scheme
High service charge (£14,765) and relatively expensive council tax
Set within a portered Art Deco mansion block on Avenue Road, this ground-floor apartment offers spacious lateral accommodation across 1,264 sqft. The double-aspect 29 ft reception opens directly onto well-kept communal gardens, creating a rare ground-floor living feel in a prestigious St John’s Wood location.
Three double bedrooms all have ensuite bathrooms and there is a separate guest WC, making the layout especially convenient for families, sharers or professionals needing private rooms. Practical benefits include two off-street parking spaces (permits from managing agents, first-come basis), a separate storage unit and passenger lift. The property is chain-free and sits close to St John’s Wood station, Regent’s Park and local shops and restaurants.
Buyers should note this is a leasehold with communal central heating and hot water on a management scheme; the reported service charge is high (£14,765) and council tax described as quite expensive, which will affect running costs. The building dates from the 1980s, has double glazing and solid brick construction; any purchaser seeking to alter communal systems or layout should enquire with the managing agents. Overall this is a spacious, well-located apartment offering comfortable, low-maintenance city living with some material service costs to budget for.
3 bedroom flat for sale in Avenue Close, St Johns Wood, NW8 — £1,250,000 • 3 bed • 2 bath • 1268 ft²
3 bedroom apartment for sale in Avenue Close, Avenue Road, London, NW8 — £1,250,000 • 3 bed • 2 bath • 1268 ft²
3 bedroom apartment for sale in St. Johns Wood Park, St Johns Wood, NW8 — £1,475,000 • 3 bed • 2 bath • 1141 ft²
2 bedroom apartment for sale in Avenue Lodge, Avenue Road, St John's Wood, London, NW8 — £1,500,000 • 2 bed • 2 bath • 1158 ft²
3 bedroom apartment for sale in Avenue Close, Avenue Road, St Johns Wood, London, NW8 — £1,250,000 • 3 bed • 2 bath • 1542 ft²
3 bedroom apartment for sale in Prince Regent Court, Avenue Road, St John's Wood, London, NW8 — £3,295,000 • 3 bed • 3 bath • 1874 ft²


























































