Spacious period home with garden and parking, ready for modernisation.
- Two double bedrooms with high ceilings and Victorian bay windows
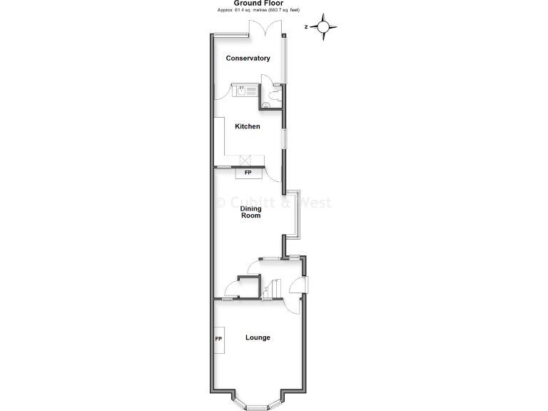
- Large living and dining rooms plus a conservatory
- Modern kitchen but dated cabinets; scope to renovate
- Downstairs cloakroom and single first-floor bathroom only
- Enclosed rear garden; small plot
- Shared driveway provides off-street parking
- Cavity walls assumed uninsulated; double glazing install date unknown
- Freehold, vacant possession, no flood risk, fast broadband
A generously proportioned two-bedroom Victorian semi set on a quiet Portsmouth street, offered with vacant possession and freehold tenure. High ceilings, bay windows and spacious rooms give classic period character while a modern kitchen and conservatory provide everyday practicality for family life or shared occupancy.
Practical benefits include off-street parking via a shared driveway, an enclosed rear garden and a downstairs cloakroom plus a first-floor bathroom. The property sits in an area classified for families in terraces and flats, close to shops, good bus links and several well-rated primary and secondary schools — convenient for commuters and parents.
There is scope to add value by updating internal finishes and improving thermal efficiency: the cavity walls are assumed uninsulated and double glazing installation date is unknown. The home is on a small plot with a single bathroom, and some rooms show dated fittings; buyers should allow for cosmetic or partial renovation to modernise bathrooms, some cabinetry and potential insulation works.
Practical selling points — freehold, no flood risk, fast broadband and excellent mobile signal — make this a straightforward move-in-with-improvement opportunity for families or buyers seeking period character with upgrade potential.
3 bedroom end of terrace house for sale in Copnor Road, Portsmouth, Hampshire, PO3 — £365,000 • 3 bed • 1 bath • 1492 ft²
3 bedroom terraced house for sale in Stubbington Avenue, Portsmouth, Hampshire, PO2 — £299,000 • 3 bed • 2 bath • 967 ft²
3 bedroom terraced house for sale in Beresford Road, North End, Portsmouth, Hampshire, PO2 — £265,000 • 3 bed • 1 bath • 1141 ft²
3 bedroom semi-detached house for sale in Windsor Road, Cosham, Portsmouth, Hampshire, PO6 — £300,000 • 3 bed • 1 bath • 1032 ft²
2 bedroom terraced house for sale in Byron Road, Portsmouth, PO2 — £220,000 • 2 bed • 1 bath • 926 ft²
4 bedroom end of terrace house for sale in St. Davids Road, Southsea, PO5 — £590,000 • 4 bed • 1 bath • 1701 ft²














































