Chain-free two-bedroom home with large garden and extension potential near top schools..
No upper chain — ready for a quick sale
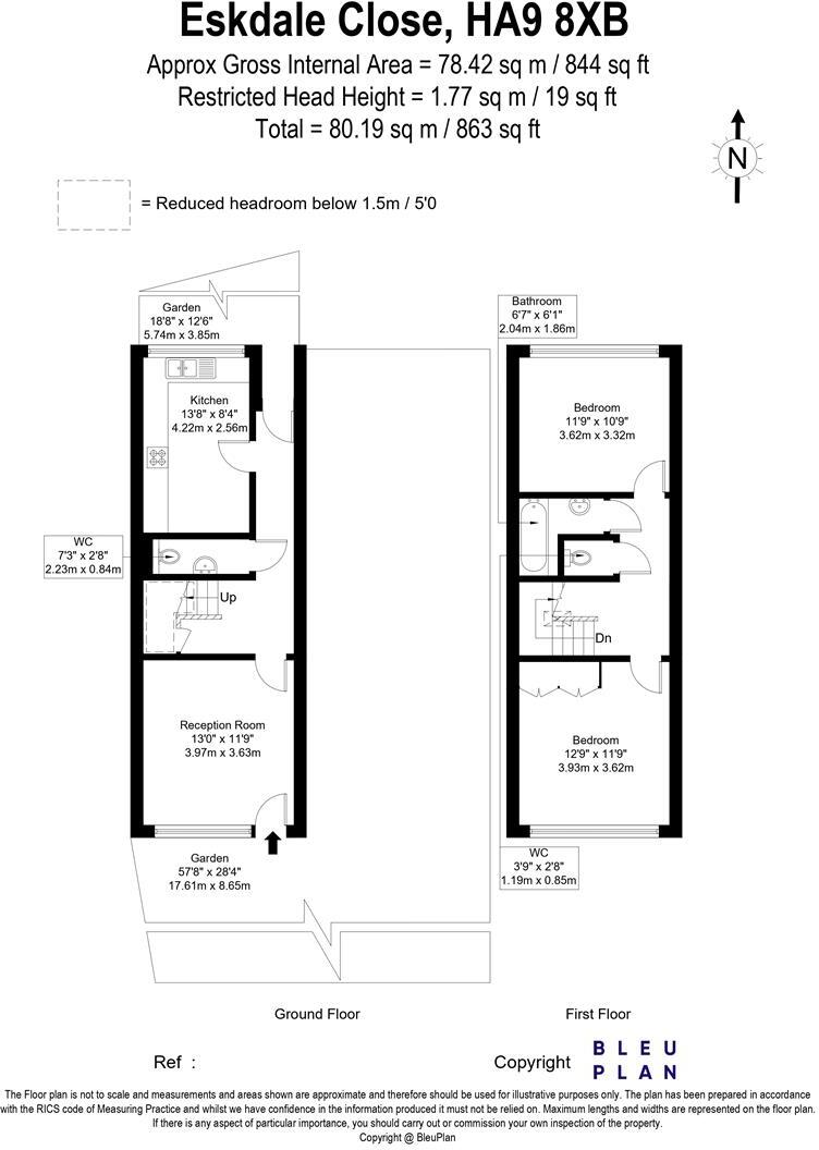
A chain-free, two-bedroom end-of-terrace on a quiet cul-de-sac, this freehold home is well suited to first-time buyers or small families wanting space and scope. The property offers two double bedrooms, a family bathroom upstairs and a convenient downstairs WC, with a large kitchen-diner and reception arranged over a split-level layout. Double glazing and gas central heating are in place.
The standout feature is the extensive plot: broad side and rear gardens that back onto mature trees, giving privacy and strong potential for extension (subject to planning). The layout and generous outdoor space make this a practical renovation project with good scope to add value for an owner-occupier or investor.
Location is practical — close to East Lane Primary and Wembley High Technology College, and within walking distance of South Kenton (Bakerloo) station for regular commuter links. Fast broadband and excellent mobile signal support modern living.
Be aware of material drawbacks: the interior shows signs of dated fixtures and will need updating in places, and the local area records above-average crime and higher deprivation indicators. Early inspections will show the extent of any renovation required and clarify costs versus the property's potential.
3 bedroom semi-detached house for sale in Oldborough Road, Wembley, HA0 — £675,000 • 3 bed • 1 bath • 1223 ft²
4 bedroom semi-detached house for sale in Victoria Avenue, Wembley, Middlesex, HA9 — £550,000 • 4 bed • 2 bath • 1065 ft²
3 bedroom detached house for sale in Wembley Park Drive, Wembley, HA9 — £875,000 • 3 bed • 1 bath • 1285 ft²
2 bedroom end of terrace house for sale in Lancelot Crescent, Wembley, Middlesex, HA0 — £535,000 • 2 bed • 1 bath • 862 ft²
2 bedroom end of terrace house for sale in Moorhouse Road, Kenton, Harrow, HA3 — £475,000 • 2 bed • 1 bath • 640 ft²
4 bedroom terraced house for sale in London Road, Wembley, HA9 — £619,950 • 4 bed • 1 bath • 1045 ft²


















































