Compact two-bedroom flat near station, ready for first-time buyers or investors.
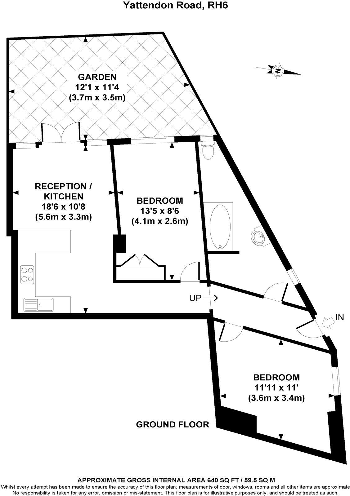
Ground-floor maisonette with private garden access
This ground-floor two-bedroom maisonette sits quietly in central Horley with direct access to a private garden — rare for a flat and useful for outdoor seating. The open-plan living/diner/kitchen is bright, with patio doors bringing natural light into the main living area. Two double bedrooms both include built-in storage, and the property holds a current EPC rating of C.
Practical benefits include a long lease (117 years remaining), mains gas central heating with a boiler and radiators, and an easily walkable location for the town centre, shops and Horley station (direct trains to London, Gatwick and Brighton). No onward chain makes for a potentially quicker sale or let for investors.
Important facts and drawbacks: the property is leasehold with a small ground rent of £200 and buyers may be required to pay a commission. The wider area records above-average crime, which buyers should consider. The exterior is a Victorian conversion and images note some signs that renovation or damp-prevention works might be needed; buyers should commission surveys where necessary.
Overall this maisonette suits first-time buyers seeking a compact, central home with garden access, or investors looking for a straightforward let near strong transport links. It offers solid fundamentals but comes with tenant/owner responsibilities typical of older conversions and leasehold ownership.
2 bedroom maisonette for sale in Fairlawns, Horley, RH6 — £269,950 • 2 bed • 1 bath • 668 ft²
1 bedroom maisonette for sale in Sovereign Walk, Victoria Road, Horley, RH6 — £230,000 • 1 bed • 1 bath • 538 ft²
2 bedroom maisonette for sale in Roffey Close, Horley, RH6 — £240,000 • 2 bed • 1 bath • 691 ft²
2 bedroom ground floor maisonette for sale in Yattendon Road, Horley, Surrey, RH6 — £245,000 • 2 bed • 1 bath • 374 ft²
2 bedroom maisonette for sale in Sangers Drive, Horley, Surrey, RH6 — £250,000 • 2 bed • 1 bath • 764 ft²
2 bedroom maisonette for sale in Sangers Drive, Horley, Surrey, RH6 — £300,000 • 2 bed • 1 bath • 710 ft²














































































