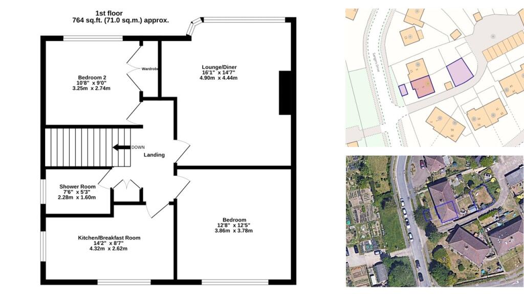
**Standout Features:**
- Guide Price: £250,000 - £280,000
- Two double bedrooms
- Spacious living room with a large bay window
- Kitchen/breakfast room
- Shower/wet room
- Large private rear garden
- 0.5 miles to town centre; 0.7 miles to Horley Train Station
- Long lease of 153 years remaining
- Excellent mobile signal and fast broadband
**Summary:**
Discover this spacious and beautifully presented two double-bedroom maisonette, ideally located within walking distance of the town center and Horley Train Station. Priced attractively between £250,000 and £280,000, this property is a perfect fit for families, first-time buyers, or investors. Enjoy bright and airy living spaces, highlighted by a generous living room featuring a large bay window that floods the space with natural light, along with an inviting kitchen/breakfast room perfect for family meals.
Step outside to a sizable private rear garden, offering plenty of room for outdoor activities or serene relaxation. The modern shower/wet room adds convenience to daily living. Nestled at the end of a tranquil residential lane and near local amenities, including schools with good Ofsted ratings, this home provides comfort and a sense of community. While the area does report above-average crime and some signs of deprivation, the excellent transport links and the vibrant local atmosphere make this property a promising investment opportunity or a cozy place to call home. Don’t miss out on this unique offering—come envision your future today!
2 bedroom maisonette for sale in Church Road, Horley, Surrey, RH6 — £270,000 • 2 bed • 1 bath • 775 ft²
2 bedroom maisonette for sale in Roffey Close, Horley, RH6 — £240,000 • 2 bed • 1 bath • 691 ft²
2 bedroom maisonette for sale in Sangers Drive, Horley, Surrey, RH6 — £300,000 • 2 bed • 1 bath • 710 ft²
2 bedroom maisonette for sale in The Ridgeway, Horley, Surrey, RH6 — £290,000 • 2 bed • 1 bath • 603 ft²
2 bedroom maisonette for sale in Fairlawns, Horley, RH6 — £269,950 • 2 bed • 1 bath • 668 ft²
2 bedroom maisonette for sale in Victoria Close, Horley, RH6 — £250,000 • 2 bed • 1 bath • 582 ft²










































