**Standout Features:**
- 4-bedroom detached farmhouse with traditional stone exterior
- 1.13 acres of expansive garden ground with development potential
- Scenic views towards Davaar Island and Ailsa Craig
- Variety of former outbuildings (some in derelict condition) offering additional opportunities for redevelopment
- Located approximately 3 miles north of Campbeltown, with good local amenities and transport links
**Concise Summary:**
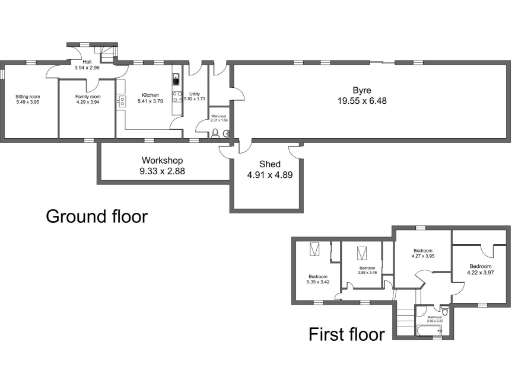
High Smerby Farmhouse presents a unique opportunity for those seeking a tranquil rural retreat or a project with substantial development potential. Set on a generous 1.13 acres, this traditional stone farmhouse boasts four spacious bedrooms and picturesque views of the surrounding countryside. While the property requires modernization, its current layout offers ample living space spread over two levels, including a fitted dining kitchen and multiple charming public rooms.
The additional outbuildings, including a former byre and a potential workshop, could be transformed to enhance the property's appeal. However, it's worth noting that some buildings are in a derelict state, highlighting the need for renovation and investment. Situated close to Campbeltown, residents can enjoy access to local amenities, recreational activities, and a community hospital, while still being enveloped by the stunning, serene landscapes of Kintyre. This unique offering is perfect for families, investors, or buyers looking for a private haven with the promise of future potential. Don’t miss out on this rare chance to create your ideal countryside sanctuary!
5 bedroom detached house for sale in Amod Farmhouse, Southend, PA28 — £295,000 • 5 bed • 2 bath
4 bedroom detached house for sale in Torrisdale, Campbeltown, PA28 — £350,000 • 4 bed • 2 bath • 1668 ft²
5 bedroom detached house for sale in Ballochgair, by Campbeltown, PA28 — £445,000 • 5 bed • 4 bath
6 bedroom house for sale in Balegreggan House, Balegreggan Road, Campbeltown, Argyll and Bute, PA28 — £550,000 • 6 bed • 4 bath
4 bedroom detached house for sale in Craigowan Road, Campbeltown, Argyll and Bute, PA28 — £450,000 • 4 bed • 4 bath • 2090 ft²
Land for sale in Land At Saddell Home Farm, Campbeltown, Argyll and Bute, PA28 — £450,000 • 1 bed • 1 bath














































































