Quiet cul-de-sac location with double garage and ground-floor bedroom ideal for easy living.
Large west-facing enclosed rear garden with patio and mature borders
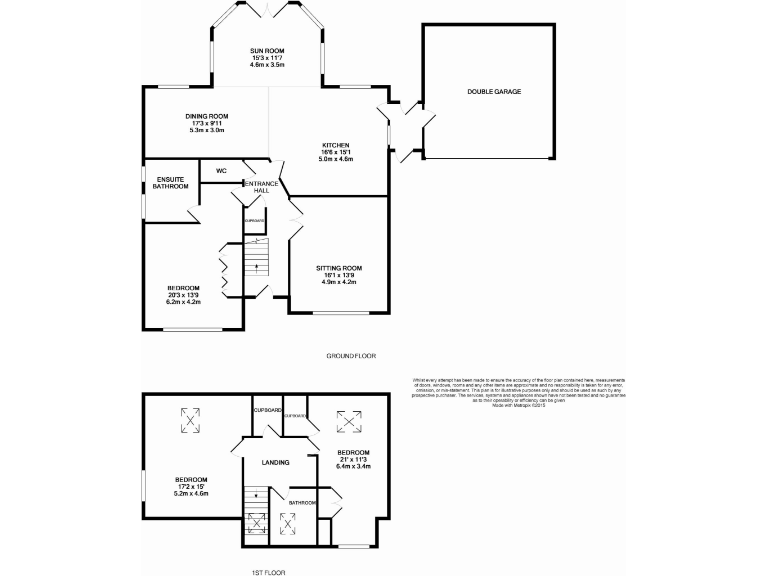
Set on a generous plot in the peaceful village of Sharow, this three-bedroom detached house blends period character with modern living. The ground floor principal bedroom and en-suite offer true single-level living, complemented by a spacious open-plan kitchen/diner and a bright sun room that opens directly onto a west-facing garden. The double garage and wide driveway provide excellent parking and storage for multiple vehicles.
The property is offered chain-free and has been tastefully presented throughout, with large rooms and flexible accommodation across two storeys. Two good-sized first-floor bedrooms with fitted wardrobes and a family bathroom suit a range of buyers — from those seeking comfortable retirement accommodation to families wanting calm village life within reach of Ripon schools and amenities.
Practical considerations are clear and should be factored into any offer. Heating is provided by an oil-fired boiler and radiators; the house has solid brick walls that are assumed uninsulated and double glazing installed before 2002. Broadband speeds are slow in the area and council tax is described as quite expensive. These elements present possible maintenance and upgrade costs but also scope for value-adding improvements.
Overall, the house offers a rare combination of village tranquillity, a large private garden, substantial garage space and sensible single-floor living. Buyers looking for a move-in-ready home with potential to modernise heating, insulation and connectivity will find this a strong contender.
4 bedroom detached house for sale in Orchard Close, Sharow, HG4 — £425,000 • 4 bed • 2 bath • 1061 ft²
3 bedroom detached bungalow for sale in Glebe Meadow, Sharow, HG4 — £420,000 • 3 bed • 2 bath • 1046 ft²
4 bedroom house for sale in Dishforth Road, Sharow, HG4 — £830,000 • 4 bed • 3 bath • 4000 ft²
4 bedroom detached house for sale in Orchard Close, Sharow, Ripon, North Yorkshire, HG4 — £425,000 • 4 bed • 3 bath • 1413 ft²
3 bedroom detached bungalow for sale in Glebe Meadow, Sharow, Ripon, HG4 — £300,000 • 3 bed • 2 bath • 738 ft²
4 bedroom detached house for sale in St. Andrews Gate, Kirkby Malzeard, HG4 — £559,950 • 4 bed • 2 bath • 1896 ft²


















































































