Practical starter home with garage and private garden near schools and green space.
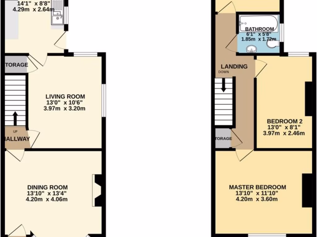
- Three bedrooms with separate lounge and dining room
- Private rear garden with patio and decking
- Long shared driveway leading to garage parking
- Solid brick construction; likely no wall insulation (assumed)
- One family bathroom only
- EPC D; potential to improve heating and insulation
- Good local schools, fast broadband, very low crime
- Modest plot size and scope for modernisation to add value
This three-bedroom semi-detached home on Baffam Gardens is a practical, well-located starter property with traditional character and useful outdoor space. Separate lounge and dining rooms give flexible living areas, while the kitchen’s patio doors open onto a private rear garden with patio and decking — good for summer entertaining and safe play. A long shared driveway leads to a garage, providing off-street parking that’s often hard to find in town.
The house is solidly constructed (circa 1900–1929) and presented in good, liveable condition, making it suitable for immediate occupation with scope for modest modernisation to add value. The layout suits first-time buyers who want two reception rooms plus three bedrooms and a family bathroom. Local amenities include good primary and secondary schools, fast broadband, very low crime levels and pleasant nearby green space.
There are a few material points to note: the property has solid brick walls with assumed no cavity insulation, and the EPC is D — improving insulation and heating efficiency would be advisable. The driveway is shared, and there is a single family bathroom only. The plot is modest in size and some buyers may wish to update kitchen and bathrooms to modern standards. Prospective purchasers should verify measurements, services and fixtures and consider a survey before purchase.
3 bedroom semi-detached house for sale in Old Farm Way, Brayton, North Yorkshire YO8 — £240,000 • 3 bed • 2 bath • 818 ft²
3 bedroom semi-detached house for sale in St. Wilfrids View, Brayton, YO8 — £255,000 • 3 bed • 1 bath • 829 ft²
3 bedroom semi-detached house for sale in Hobby Way, Brayton, Selby, YO8 — £240,000 • 3 bed • 2 bath • 876 ft²
3 bedroom semi-detached house for sale in Tennant Street, Selby, YO8 — £200,000 • 3 bed • 1 bath • 710 ft²
2 bedroom semi-detached house for sale in Doncaster Road, Brayton, Selby, North Yorkshire, YO8 — £185,000 • 2 bed • 1 bath • 889 ft²
4 bedroom detached house for sale in Doncaster Road, Brayton, Selby, North Yorkshire, YO8 — £340,000 • 4 bed • 2 bath • 1536 ft²






















































































