Ideal for families seeking ready-to-move accommodation near schools and shops.
Recently refurbished throughout with modern kitchen and bathrooms
Driveway provides off-street parking for at least one car
Small rear garden currently being developed, scope for landscaping
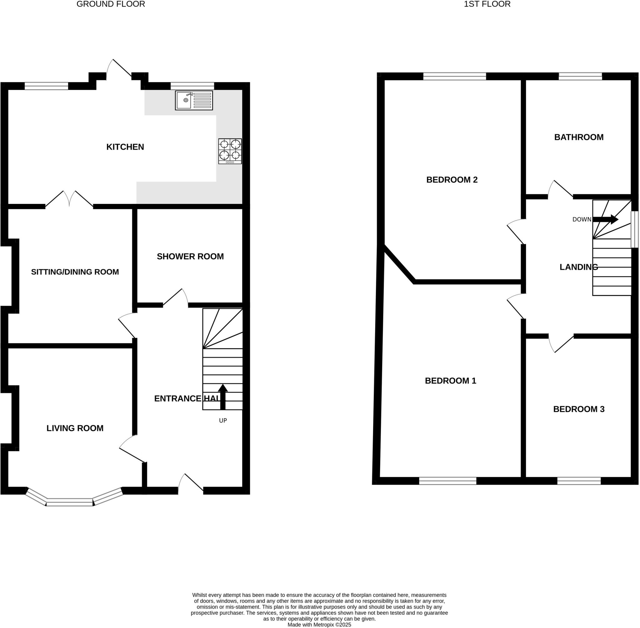
Three bedrooms; one smaller box-shaped room suitable as office
Electric storage heaters—potentially higher running costs than gas
Freehold property with double glazing, 1930s cavity-wall construction
Small overall size and compact plot—limited internal and outdoor space
Located in an area with above-average crime and local deprivation
Guide price £260,000–£265,000. This recently refurbished three-bedroom semi offers practical family living on Main Road, close to schools and local amenities. The house presents well throughout with two reception rooms, a modern kitchen opening to the garden, and both a ground-floor shower room and an upstairs bathroom for everyday convenience.
The property benefits from a gravel driveway and off-street parking, with a small rear garden currently being developed—good scope for landscaping or a children’s play area. Accommodation includes two well-proportioned bedrooms and a smaller, box-shaped third room suited to a child’s bedroom, home office or storage.
Buyers should note the home is electrically heated via storage heaters; running costs may be higher than gas-heated homes. The area scores as deprived with higher local crime rates than average, which may concern some purchasers. On the positive side, broadband speeds are reported as fast and the property is freehold with double glazing and a solid 1930s build.
Overall this is a practical, move-in-ready house for a small family or purchaser seeking a refurbished home close to schools and transport. The compact plot and local area characteristics mean it will particularly suit buyers prioritising location convenience and a ready-to-live-in finish over large outdoor space or rural tranquillity.
3 bedroom semi-detached house for sale in Main Road, Harwich, Essex, CO12 — £260,000 • 3 bed • 2 bath • 776 ft²
3 bedroom semi-detached house for sale in Briardale Avenue, Harwich, CO12 — £260,000 • 3 bed • 1 bath • 786 ft²
3 bedroom semi-detached house for sale in The Haven, Dovercourt, Harwich, CO12 — £250,000 • 3 bed • 1 bath • 1055 ft²
3 bedroom semi-detached house for sale in Lime Avenue, Harwich, CO12 — £270,000 • 3 bed • 1 bath • 772 ft²
3 bedroom semi-detached house for sale in Una Road, Harwich, Essex, CO12 — £200,000 • 3 bed • 1 bath • 963 ft²
3 bedroom semi-detached house for sale in Fryatt Avenue, Harwich, CO12 — £210,000 • 3 bed • 1 bath • 763 ft²










































































