Conveniently located near schools and local amenities for growing households.
Recently refurbished throughout with modern fitted kitchen and bathrooms
Off‑street parking and small rear garden (currently being developed)
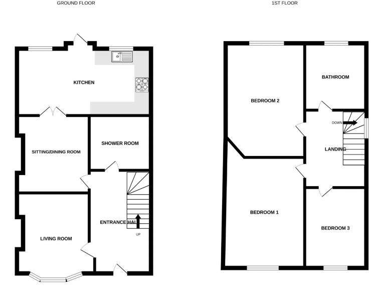
Three bedrooms; one smaller room ideal for office or nursery
Compact overall size — approx 776 sq ft, small plot
Main heating via electric storage heaters — may raise running costs
Double glazing present; install date unknown
Fast broadband and close to several Good‑rated schools
Area has higher crime and local economic deprivation
This recently refurbished semi‑detached house on Main Road offers a compact, practical layout across multiple floors. The property has been updated throughout with a modern fitted kitchen, a ground‑floor shower room and a contemporary first‑floor bathroom, making it move‑in ready for families or professionals.
The plot is small but functional, featuring off‑street parking and a rear garden currently under development—room for patio or planting rather than large landscaping. One of the three bedrooms is noticeably smaller and works best as a nursery, home office or storage room.
Practical considerations include electric storage heaters as the main heating source and double glazing of unknown install date; both affect running costs and future upgrade planning. The area has fast broadband and good local amenities, plus several well‑rated primary and secondary schools within easy reach.
Buyers should note the neighbourhood faces social and economic challenges and recorded higher crime levels; the property’s size and compact plot also limit extension potential without planning checks. This home suits a buyer seeking a freshly refurbished, low‑maintenance dwelling in a convenient town location with scope to personalise the garden.
3 bedroom semi-detached house for sale in Main Road, Harwich, CO12 — £260,000 • 3 bed • 2 bath • 776 ft²
3 bedroom semi-detached house for sale in The Haven, Dovercourt, Harwich, CO12 — £250,000 • 3 bed • 1 bath • 1055 ft²
3 bedroom semi-detached house for sale in Briardale Avenue, Harwich, CO12 — £260,000 • 3 bed • 1 bath • 786 ft²
3 bedroom semi-detached house for sale in Shaftesbury Avenue, Harwich, Essex, CO12 — £300,000 • 3 bed • 2 bath • 1025 ft²
3 bedroom semi-detached house for sale in Fryatt Avenue, Harwich, Essex, CO12 — £210,000 • 3 bed • 1 bath • 709 ft²
3 bedroom semi-detached house for sale in Valley Road, Harwich, Essex, CO12 — £265,000 • 3 bed • 2 bath • 775 ft²


























































