Planning approved for multiple family homes on a generous semi-rural plot with farmland views.
- Full planning permission for two detached houses and bungalow transformation
- Exceptionally large plot with far-reaching greenbelt farmland views
- Proposed new homes approx 2,300 sq ft; bungalow conversion approx 2,400 sq ft
- Freehold site; not in flood risk area; fast broadband available
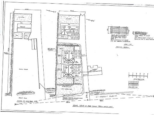
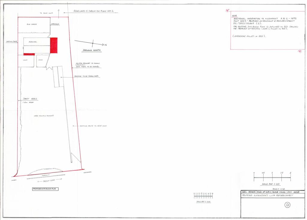
- Additional land to rear may be purchased separately
- Local crime rates high; area deprivation indicators present
- Semi-rural, isolated setting with average mobile signal
- Delivery and build-completion costs, plus infrastructure connections required
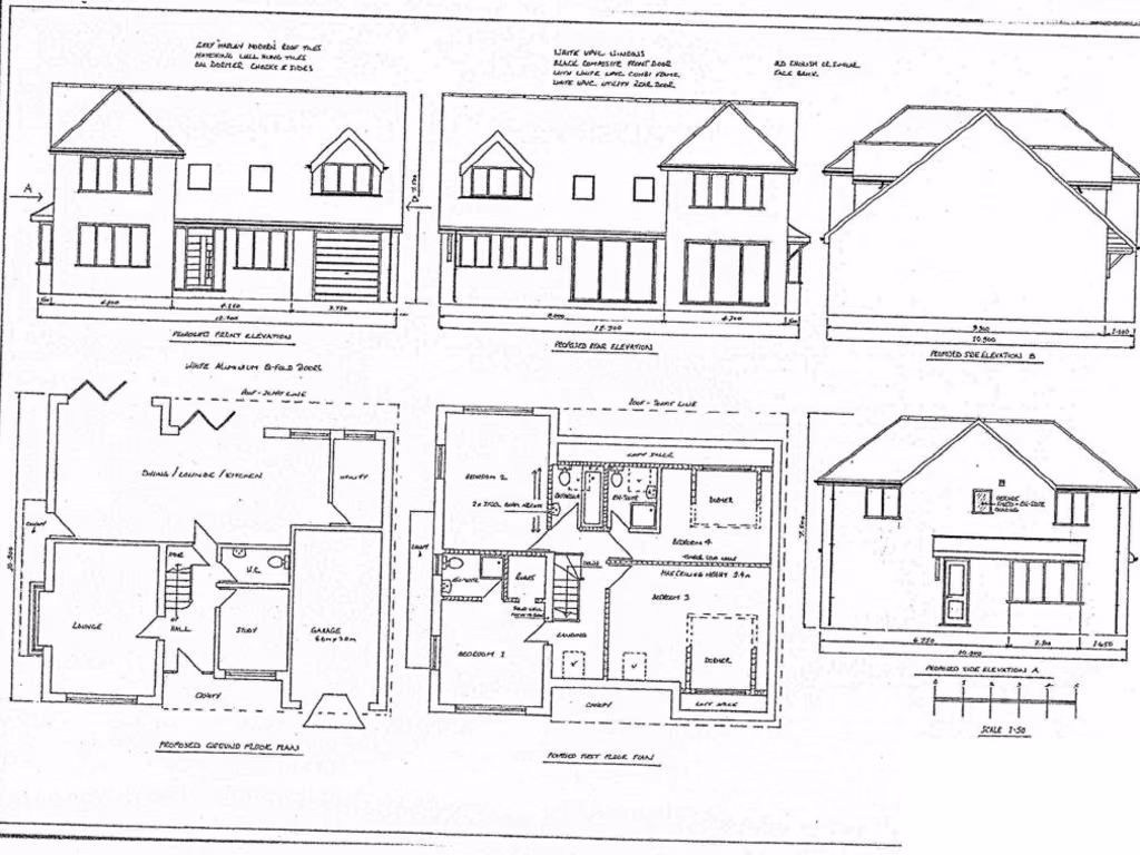
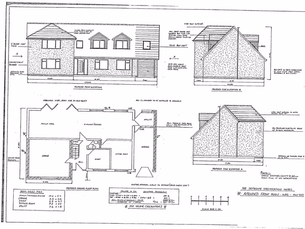
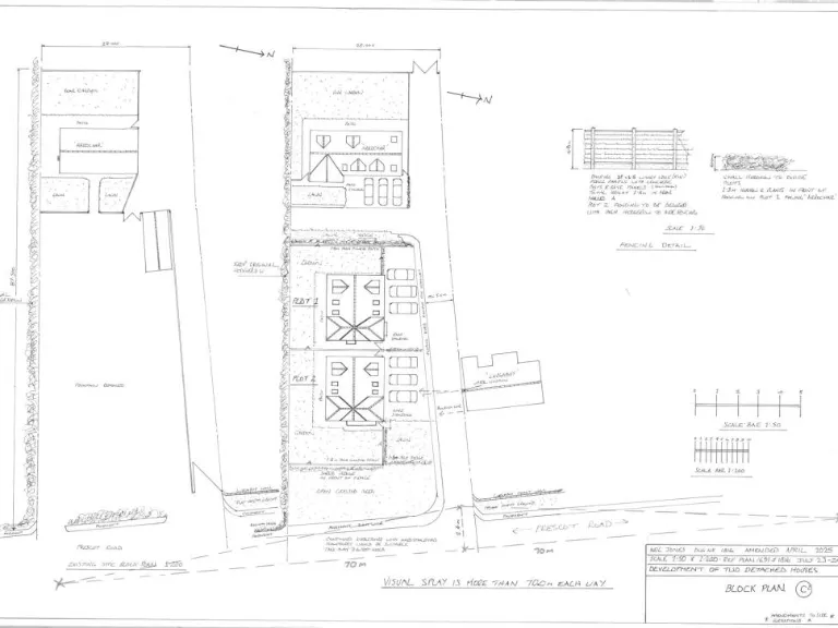
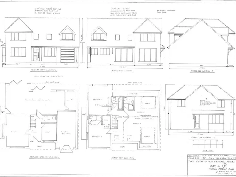
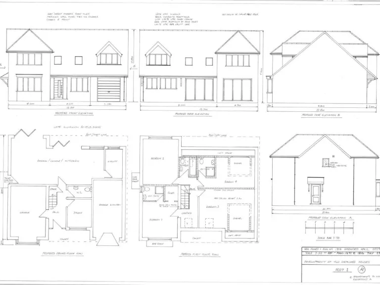
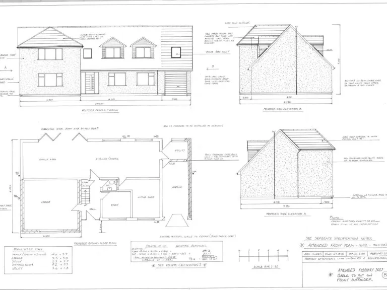
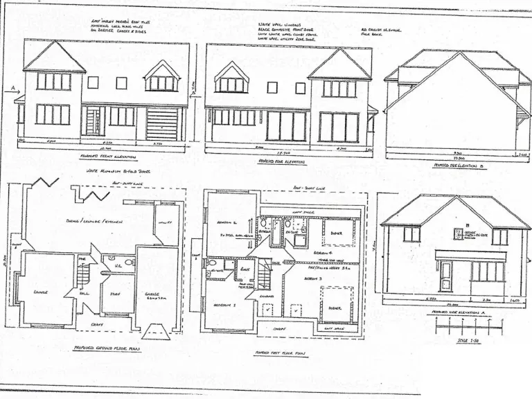
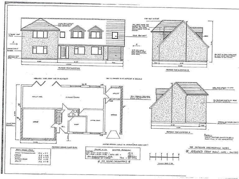
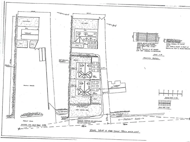
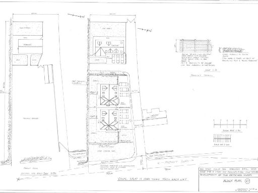
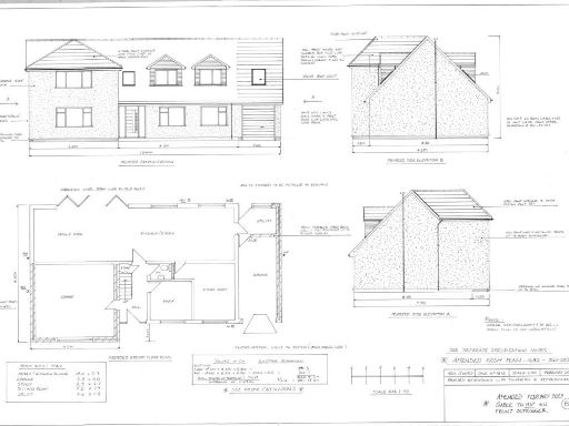
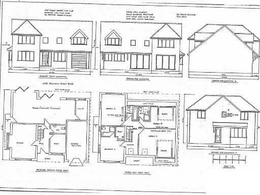
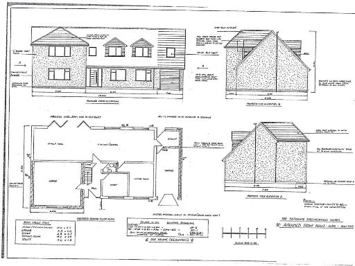
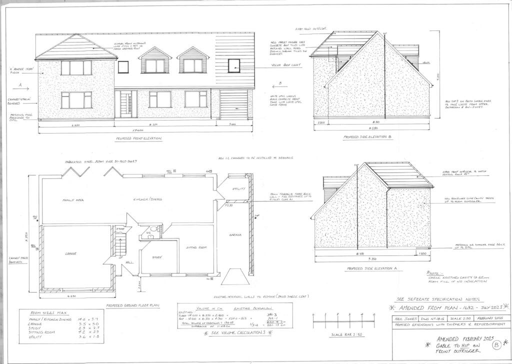
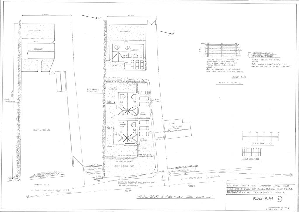
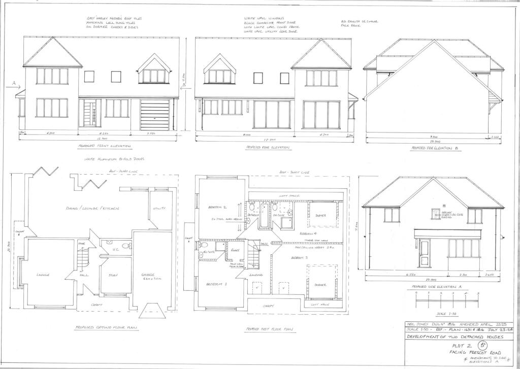
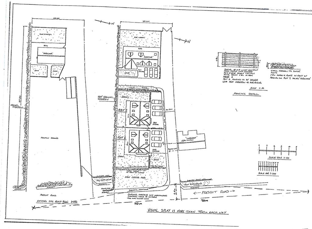
This is a rare development site on Prescot Road, Melling, with full planning permission granted to build two detached family homes and to transform the existing bungalow into a generous two-storey residence. The plot is exceptionally large, set in a semi-rural location with far-reaching views over greenbelt farmland and easy access to local amenities, golf and notable dining. Full planning references are Sefton DC/2024/02093 and DC/2024/02062.
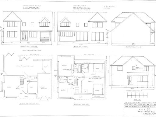
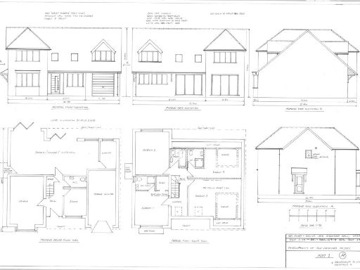
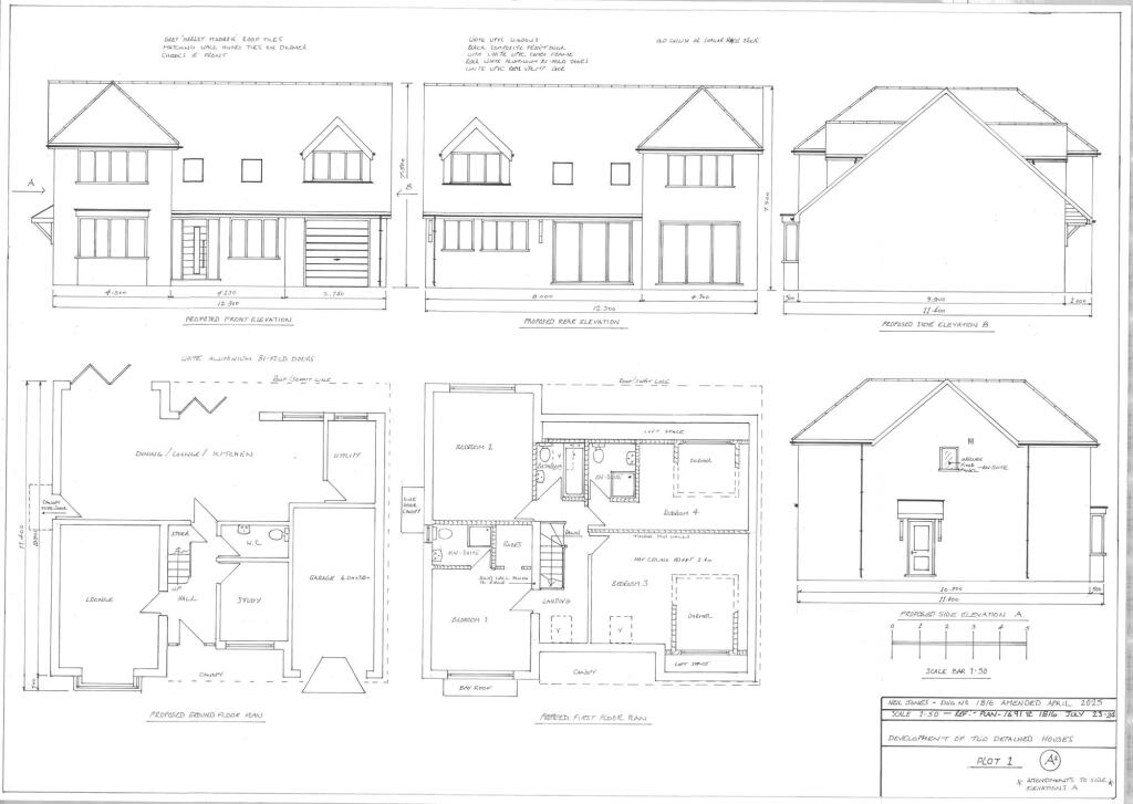
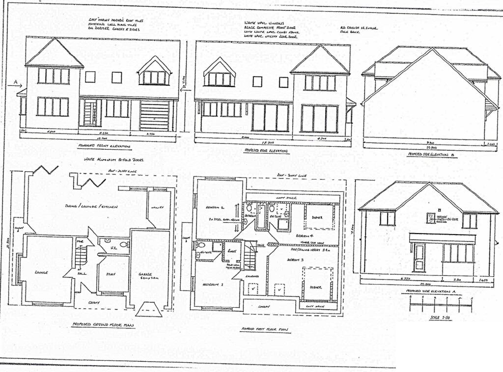
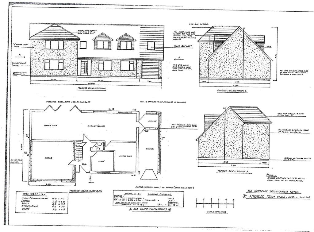
Each proposed new house offers around 2,300 sq ft of accommodation in a traditional layout with open-plan living, separate lounge and study, integrated garage and private garden. The existing bungalow is set to be extended and reconfigured into a substantial two-storey home of approximately 2,400 sq ft — suitable for multi‑generational living or high-spec family use. Driveways and garages are included in the plans, and additional land to the rear may be available to purchase.
Key practical facts: the site is freehold, classified as a new build development, not at flood risk, and benefits from fast broadband. Local schools rated Good are within reach, supporting family occupation. Notable negatives are the area's high recorded crime and local deprivation indicators; mobile signal is average. Buyers should also factor in delivery costs, infrastructure ties and the responsibilities of completing the approved builds to the specified standard.
For investors and developer‑buyers this plot offers clear planning-led value and good scope to realise sizeable family homes in a semi-rural setting. For owner‑occupier families, the finished homes would provide spacious contemporary living with private gardens and countryside views, but purchasers must accept the semi-rural, relatively isolated settlement character and assemble any additional services or finishes required to complete the builds.
4 bedroom off-plan property for sale in Bank Lane, Melling, L31 — £250,000 • 4 bed • 2 bath • 1694 ft²
Land for sale in Building Plot, Charlesbye Farm, Greetby Hill, Ormskirk, L39 2DT, L39 — £270,000 • 4 bed • 1 bath • 2024 ft²
5 bedroom detached house for sale in St. Georges Road, Hightown, Liverpool, Merseyside, L38 — £1,500,000 • 5 bed • 1 bath • 3101 ft²
4 bedroom detached house for sale in Prescot Road, Aughton, L39 — £900,000 • 4 bed • 1 bath • 2177 ft²
Land for sale in Land At Durants Cottage, Melling Lane, Merseyside, Maghull, Merseyside, L31 — £750,000 • 1 bed • 1 bath • 1464 ft²
Plot for sale in College Avenue, Formby, Liverpool, L37 — £800,000 • 5 bed • 5 bath • 5800 ft²






























































































































