Bright top-floor apartment with parking and long lease near central transport links.
South-facing balcony with St Katharine Docks and Tower Bridge views
Allocated underground parking space included
Share of freehold with c.980 years remaining on lease
Chain-free sale, top-floor position
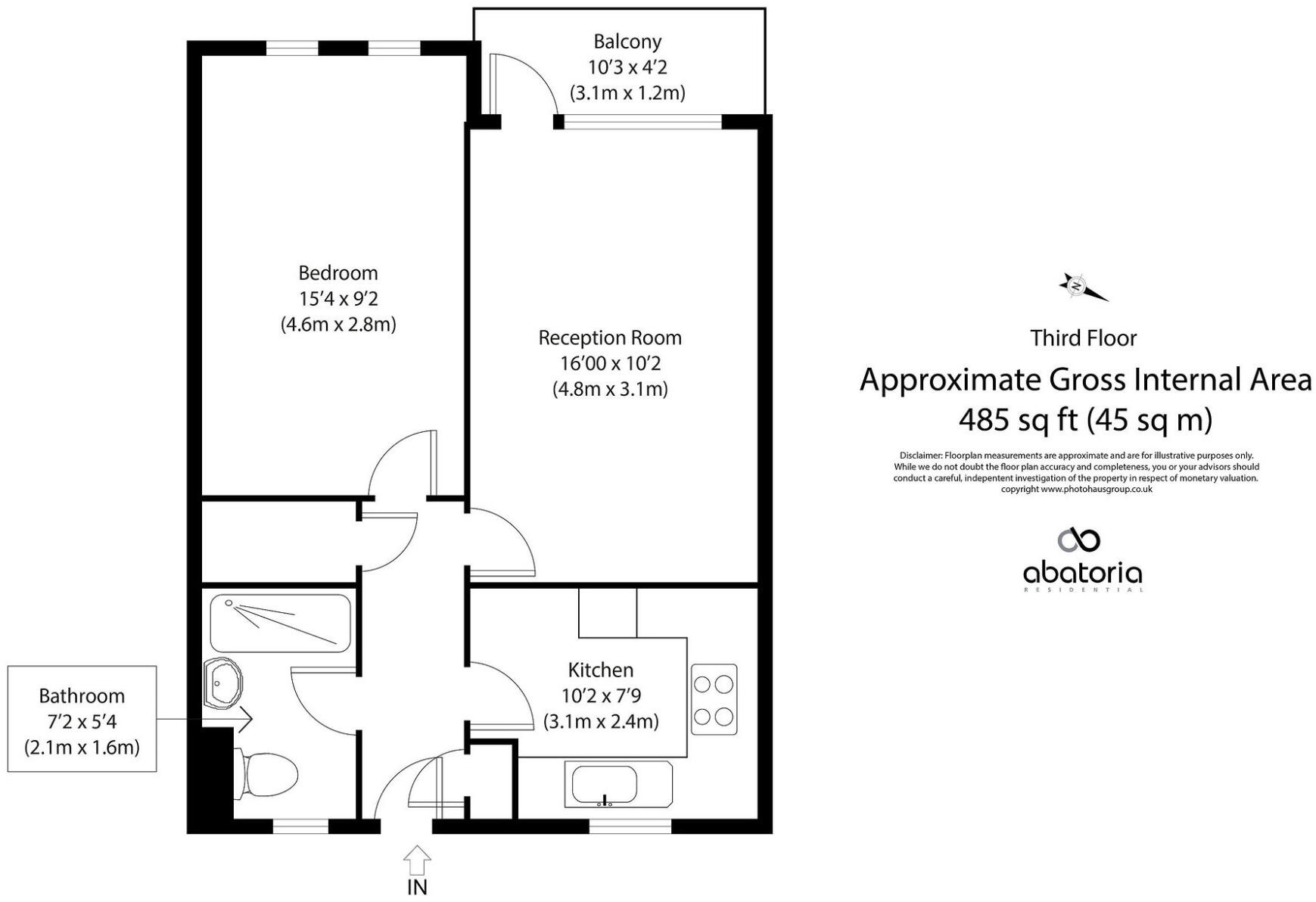
Average size — about 485 sq ft, one bedroom, one bathroom
Service charge high at £5,318 per year
Very slow broadband speeds may affect tenants or remote working
Local crime level reported very high — consider security measures
This one-bedroom apartment occupies the top floor of Nightingale House with direct views over St Katharine Docks. The south-facing balcony looks toward Tower Bridge and the Shard, offering a clear water outlook that helps the apartment stand out in a dense central-London market. An allocated underground parking space and a share of the freehold add practical and ownership value.
The layout is open-plan with a separate kitchen and a large bedroom with fitted wardrobes. The property is chain-free and comes with a very long lease (c.980 years), reducing typical leasehold concerns and supporting both buy-to-let and owner-occupier purchase cases. Transport links are excellent — Tower Hill and nearby stations put the City within easy reach.
Buyers should note material negatives: the service charge is high at £5,318 per year, broadband speeds are reported very slow, and local crime levels are very high. These factors will affect ongoing running costs, tenant appeal, and personal security perceptions. The apartment is average sized at around 485 sq ft and may need cosmetic updating to maximise rental income or resale value.
Overall, this is a compact, well-located flat with distinctive dockside views, long lease security and parking. It suits investors seeking central-London rental income or buyers wanting a convenient city pied-à-terre, provided they accept above-average service costs and address connectivity and local safety concerns.
1 bedroom flat for sale in Burr Close, Wapping, E1W — £425,000 • 1 bed • 1 bath • 352 ft²
1 bedroom flat for sale in St Katherines Way, St Katharine Docks, London, E1W — £400,000 • 1 bed • 1 bath • 505 ft²
3 bedroom apartment for sale in Turnstone House, Star Place, London, E1W — £1,950,000 • 3 bed • 3 bath • 1700 ft²
1 bedroom flat for sale in Star Place, London, E1W — £850,000 • 1 bed • 1 bath • 794 ft²
1 bedroom flat for sale in Nightingale House,
50 Thomas More Street, E1W — £575,000 • 1 bed • 1 bath • 506 ft²
1 bedroom flat for sale in East Smithfield, London, E1W — £760,000 • 1 bed • 1 bath • 669 ft²


































