**Standout Features:**
- Grade II listed, 16th-century double-fronted retail unit with substantial maisonette above
- Vacant possession with no chain, ideal for cash buyers
- Enclosed courtyard, generous garden, and gated parking area
- Prime location on Steyning High Street, surrounded by local amenities and schools
**Concerns:**
- Extensive renovation required; structural improvements necessary
- Listed status may limit development options
- Local crime rates are high; maintenance on outdoor areas needed
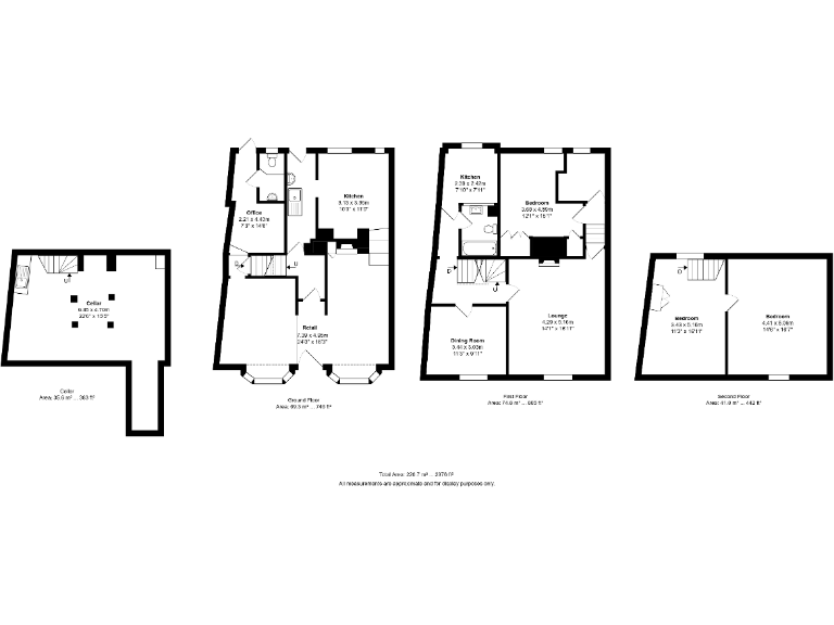
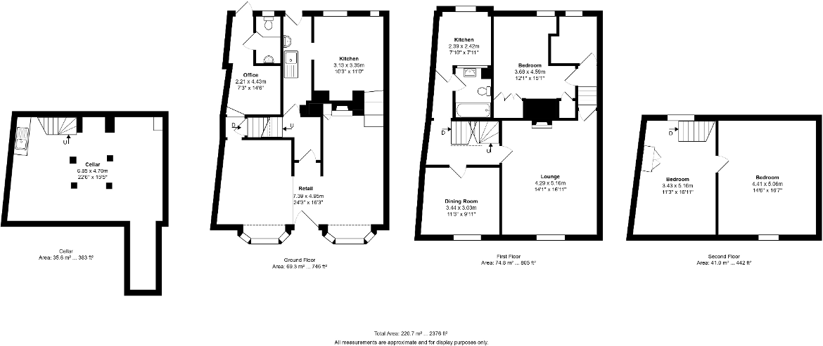
This expansive three-bedroom terraced house in the heart of Steyning presents a unique opportunity for cash buyers looking to invest in a historic property bursting with potential. The Grade II listed building boasts a striking Georgian façade and high ceilings, providing a spacious feel across its 2,363 square feet. With a generous garden and gated parking, there’s room to create your ideal outdoor space while enjoying the convenience of being steps away from local shops, schools, and community amenities.
However, be prepared for a significant renovation challenge, as the property requires extensive updates to modernize its living spaces. With vacancies and no chain involved, you can seize the chance to tailor this property to your specifications. Historically rich and located near the picturesque South Downs National Park, this home invites both families and investors to envision its future—once restored, it could serve as a comfortable residence or a lucrative rental. Act quickly to explore this compelling prospect in an attractive community where opportunities like this are rare.
High street retail property for sale in 80 High Street, Steyning, Horsham, West Sussex, BN44 — £495,000 • 1 bed • 1 bath • 1707 ft²
4 bedroom detached house for sale in High Street, Steyning, BN44 — £595,000 • 4 bed • 1 bath • 3256 ft²
1 bedroom house for sale in Mouse Lane, Steyning, West Sussex, BN44 3LP, BN44 — £250,000 • 1 bed • 1 bath • 409 ft²
2 bedroom terraced house for sale in Church Street, Steyning, West Sussex, BN44 3YB, BN44 — £475,000 • 2 bed • 1 bath • 702 ft²
4 bedroom terraced house for sale in Church Street, Steyning, BN44 3YB, BN44 — £850,000 • 4 bed • 2 bath • 1567 ft²
Barn for sale in Charlton Street, Steyning, BN44 3LE, BN44 — £700,000 • 3 bed • 2 bath • 1395 ft²






































































































