Period charm with a large modern extension and private garden for family living.
Three bedrooms with versatile room layouts for office/playroom
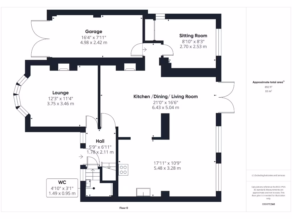
Large open-plan kitchen/dining/living extension with French doors
Separate front lounge with bay window and original features
Private, well-screened rear garden with decked seating area
Driveway parking and attached garage for multiple vehicles
Single family bathroom and one downstairs WC only
EPC D; cavity walls noted without added insulation (energy upgrade potential)
Council tax above average
Set on a desirable Curzon Park street, this spacious three-bedroom semi delivers period character with a large, modern rear extension. The home combines a traditional front lounge with a generous open-plan kitchen/dining/living area that opens onto a private, well-screened garden — ideal for family life and entertaining.
Practical benefits include driveway parking, an attached garage and a handy downstairs WC. Bedrooms are good-sized and served by a single modern family bathroom. The property has been improved to a high standard where extended, but retains original features such as a bay window and parquet flooring in the front reception.
Buyers should note the EPC rating is D and the cavity walls are shown as built without added insulation, which may present an opportunity for energy upgrades. Council tax is above average. Overall this freehold home suits families seeking a comfortable, sizeable house in an affluent, well-connected part of Chester with strong local schools and low local crime.
3 bedroom detached house for sale in Forge Way, Chester, CH4 — £300,000 • 3 bed • 1 bath • 797 ft²
3 bedroom semi-detached house for sale in Sedgefield Road, Chester, CH1 — £290,000 • 3 bed • 2 bath • 678 ft²
3 bedroom semi-detached house for sale in Cleves Close, Blacon, CH1 — £230,000 • 3 bed • 1 bath • 766 ft²
3 bedroom semi-detached house for sale in Curzon Park North, Chester, CH4 — £395,000 • 3 bed • 1 bath • 1209 ft²
3 bedroom semi-detached house for sale in Leyland Drive, Saltney Ferry, CH4 — £229,995 • 3 bed • 1 bath • 776 ft²
3 bedroom semi-detached house for sale in Park Road West, Curzon Park, Chester, CH4 — £525,000 • 3 bed • 2 bath • 370 ft²














































































