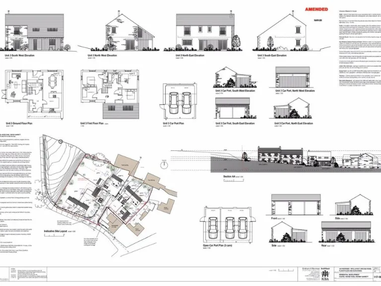
Extant consent for five homes on a large scenic plot ideal for experienced developers.
- Planning permission for five Local Occupancy dwellings (ref E/02/7A)
- Four 4-bed houses and one 3-bed house specified in consent
- Planning conditions discharged; permission will not expire
- Large elevated plot with open Lune Valley views
- Mains water metered on site; electricity and drainage nearby
- Vendor to remove two eastern agricultural buildings pre-completion
- Local Occupancy restriction limits buyer/resident eligibility
- Rural location: average broadband, excellent mobile signal
A rare development parcel in Crosby Garrett with extant permission to deliver five Local Occupancy dwellings within the Yorkshire Dales National Park. Permission (ref E/02/7A) covers four four-bedroom houses and one three-bedroom house, with natural stone walls and blue/grey slate roofs specified to match local character. Planning conditions have been discharged so the consent remains valid.
The site is a substantial, elevated plot with open countryside views over the Lune Valley. Services are present nearby: metered mains water on site and understood mains electricity and roadside drainage. Two modern agricultural buildings to the east will be removed by the vendor before completion; remaining structures will be sold as seen.
Important restrictions and practical points are clear: the development is subject to Local Occupancy controls, limiting purchaser eligibility and intended for people with local connections. The wider area is classified as a remoter agricultural community with average broadband, excellent mobile signal and deprived area indicators — factors that affect sales and rental demand. This is best suited to a buyer experienced in rural new-build projects and familiar with National Park requirements.
Residential development for sale in Crosby Garrett, Kirkby Stephen, CA17 — £275,000 • 1 bed • 1 bath
Land for sale in Land Off Black Bull Lane, Brough, Cumbria, CA17 — £90,000 • 1 bed • 1 bath • 11326 ft²
Plot for sale in Bleaflatt Barn, Ravenstonedale, CA17 — £200,000 • 1 bed • 1 bath • 2412 ft²
Detached house for sale in Mallerstang, Kirkby Stephen, CA17 — £160,000 • 1 bed • 1 bath
4 bedroom character property for sale in Great Asby, Appleby-In-Westmorland, CA16 — £695,000 • 4 bed • 2 bath • 2700 ft²
7 bedroom detached house for sale in Crake Trees Farmhouse, Maulds Meaburn, Penrith, Cumbria, CA10 — £850,000 • 7 bed • 7 bath • 7236 ft²










































