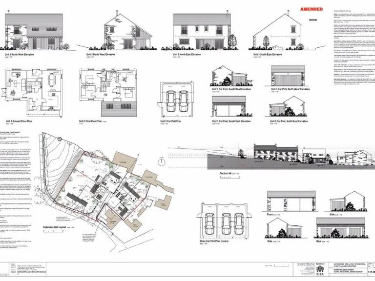
**Key Features:**
- Development opportunity with planning permission for 5 Local Occupancy dwellings
- Prime location in the picturesque village of Crosby Garrett, within the Yorkshire Dales National Park
- Plans include four 4-bedroom and one 3-bedroom houses, designed with natural slate roofs and local stone finishes
- Expansive plot with stunning countryside views and potential for customization
- Infrastructure includes metered mains water, electricity, and drainage on-site
- Close proximity to Kirkby Stephen (3.9 miles) and surrounded by community amenities
**Summary:**
Seize the opportunity to develop five Local Occupancy dwellings in the scenic village of Crosby Garrett, nestled within the Yorkshire Dales National Park. With planning permission (ref: E/02/7A) already secured and conditions discharged, this expansive plot grants you the potential to create a striking residential community. The proposed designs feature four spacious 4-bedroom homes and one 3-bedroom option, all incorporating high-quality materials to ensure a harmonious blend with the rural landscape.
Additionally, benefit from the serenity of village life, just a short distance from Kirkby Stephen's shops and restaurants. Although there are a couple of modern agricultural buildings currently on-site, these will be removed prior to completion, readying the land for your vision. Take advantage of this unique opportunity to build something exceptional in a charming setting—properties like this are rare and time-sensitive. Whether you're a developer or looking for a personal investment, let your imagination run wild amidst this stunning backdrop. Viewings are strictly by appointment only—don't miss out!
Property for sale in Crosby Garrett, Kirkby Stephen, CA17 — £275,000 • 1 bed • 1 bath
3 bedroom terraced house for sale in Crosby Garrett, Kirkby Stephen, CA17 — £218,000 • 3 bed • 1 bath • 785 ft²
3 bedroom bungalow for sale in Crosby Garrett, Kirkby Stephen, Cumbria, CA17 — £350,000 • 3 bed • 1 bath • 1132 ft²
Plot for sale in Bleaflatt Barn, Ravenstonedale, CA17 — £200,000 • 1 bed • 1 bath • 2412 ft²
3 bedroom semi-detached house for sale in Crosby Garrett, Kirkby Stephen, Cumbria, CA17 — £330,000 • 3 bed • 2 bath • 1251 ft²
Land for sale in Land At Wiseber Brow, Land Off Wiseber Brow, Kirkby Stephen, CA17 — £100,000 • 1 bed • 1 bath






































