Modern, move-in ready bungalow on a large plot near shops and the seafront.
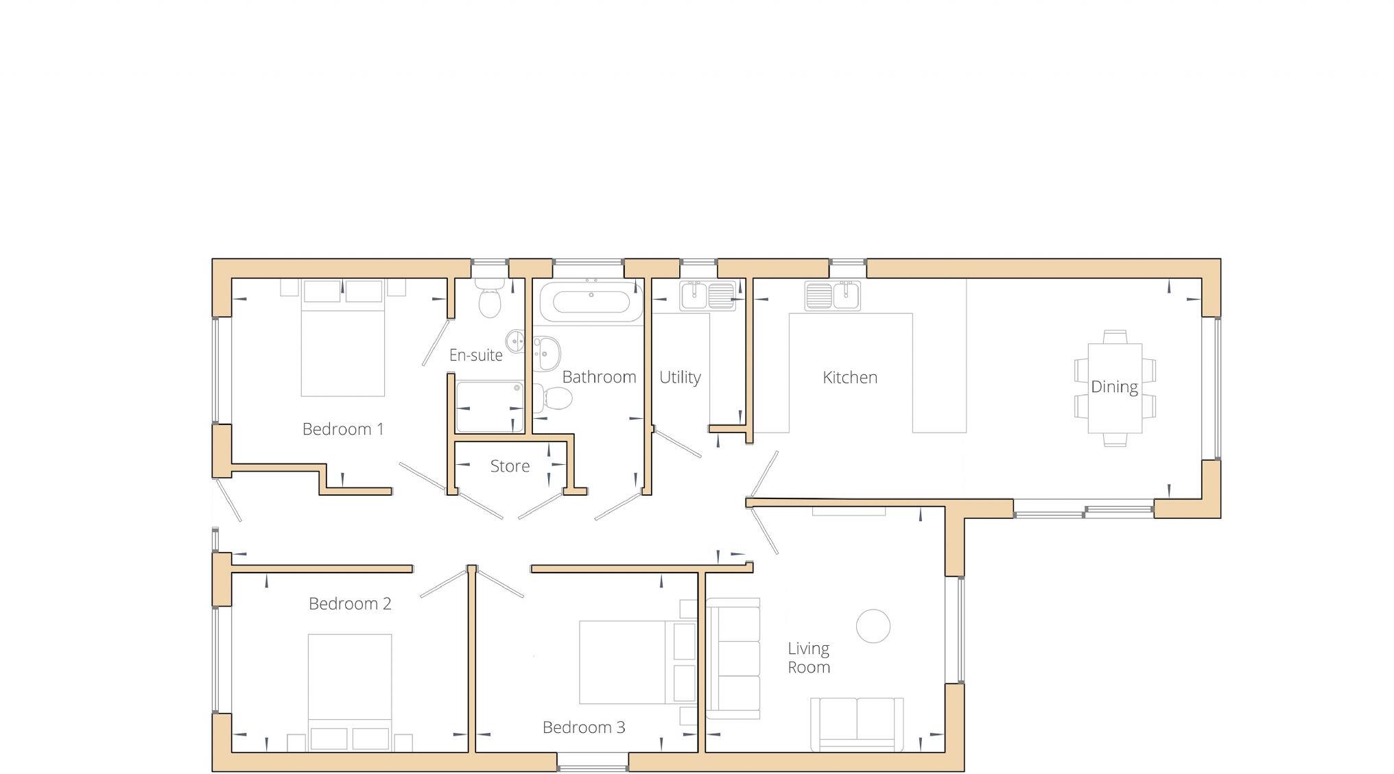
Three-bedroom detached bungalow with en-suite shower room
Large 24'9" fitted kitchen with multiple integrated appliances
Garage, driveway and a very large plot included
Electric air-source radiator heating; no gas connection
New-build with 10-year builder's warranty included
Service charge c. £250pa for main road maintenance
Area records higher crime and very deprived local indicators
Freehold tenure; carpets and floor coverings included
This three-bedroom detached bungalow on St Johns Oak is a newly built, single-storey home finished to a high specification and offered with a 10-year builder’s warranty. The living space includes a 13'7" lounge, a 24'9" fitted kitchen with numerous appliances, an 11'7" luxury bathroom and an en-suite shower to the principal bedroom — practical, low-maintenance accommodation suitable for downsizers, families seeking single-floor living, or buy-to-let investors.
The plot is notably large with a garage and driveway, plus included carpets and floor coverings, providing immediate move-in convenience. Environmentally, the property uses electric air-source radiator heating (no gas), which can reduce reliance on fossil fuels but may affect running costs depending on energy tariffs.
Location benefits include a recessed position on the north-west outskirts of Clacton, within walking distance of local shops, a garden centre, bus routes to the town centre, and the seafront. Important practical notes: the area records higher crime levels and significant deprivation indicators; service road maintenance is managed under a company with an annual charge of about £250. Council Tax and EPC are to be confirmed.
Overall, this bungalow offers roomy, single-level living on a substantial plot with modern finishes and warranties. It suits purchasers seeking easy-access accommodation near local amenities, but buyers should weigh local area statistics and potential energy costs linked to electric heating.
3 bedroom detached bungalow for sale in Plot 7 16 St Johns Oak, Clacton-on-Sea, CO16 — £425,000 • 3 bed • 2 bath • 1205 ft²
3 bedroom detached bungalow for sale in Plot 1-17 St Johns Oak, Clacton-on-Sea, CO16 — £425,000 • 3 bed • 2 bath • 1205 ft²
4 bedroom detached bungalow for sale in Plot 3 21 St Johns Oak, Clacton-on-Sea, CO16 — £450,000 • 4 bed • 2 bath • 872 ft²
3 bedroom detached bungalow for sale in Elm Farm Drive, Clacton-On-Sea, CO16 — £335,000 • 3 bed • 2 bath • 898 ft²
3 bedroom detached bungalow for sale in Oakview Crescent, Clacton-on-Sea, Essex, CO16 — £485,000 • 3 bed • 2 bath • 1303 ft²
3 bedroom detached bungalow for sale in Oak Close, Great Clacton, CO15 — £415,000 • 3 bed • 2 bath • 1188 ft²










































