**Standout Features:**
- Three well-sized double bedrooms
- Bright, airy kitchen/breakfast room
- Spacious south-facing garden
- Chain-free and freehold property
- Ideal location close to Wandsworth Town and Southside shopping center
- Excellent transport links to Central London
**Potential Concerns:**
- Average plot size
- Located in an area with high crime rates
**Summary:**
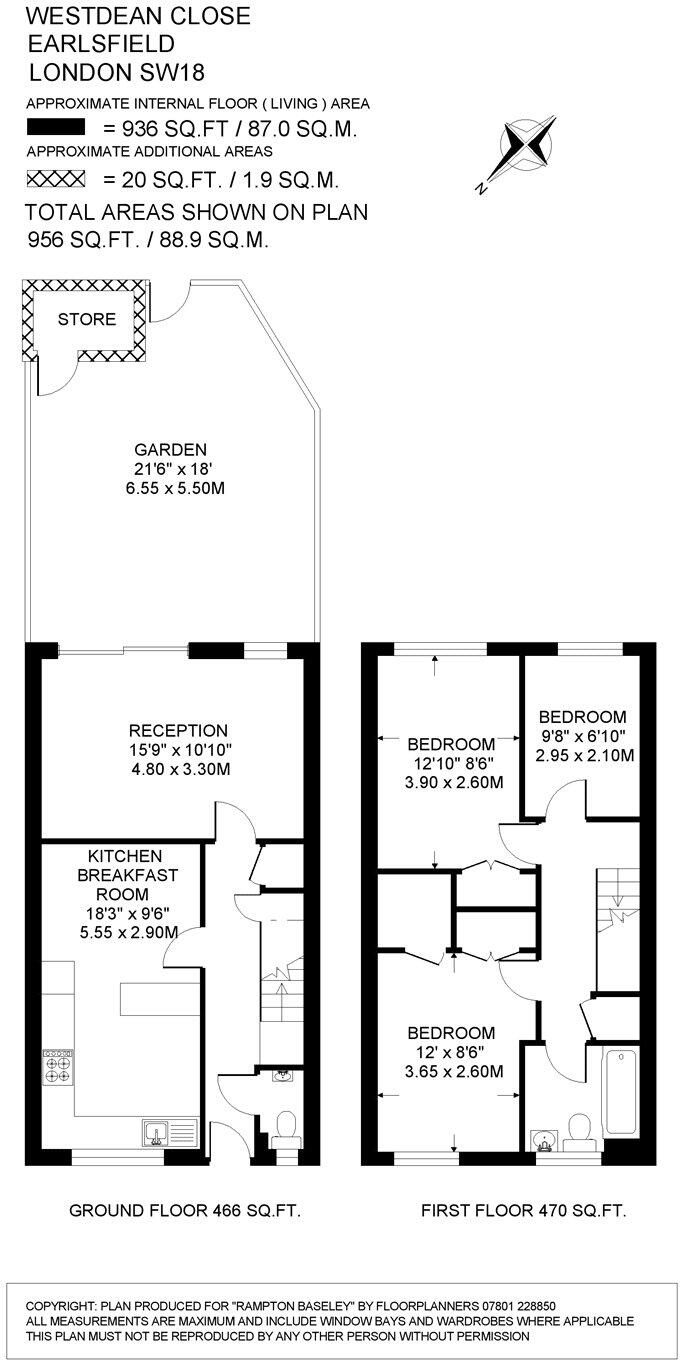
Discover the charm of this delightful three-bedroom mid-terrace house, perfectly designed for families or urban professionals looking for a welcoming home in a vibrant SW18 community. Spanning approximately 938 sq ft, the ground floor boasts a modern kitchen/breakfast room filled with natural light, a comfortable reception area for entertaining, and convenient access to a tranquil south-facing garden—perfect for summer gatherings or serene relaxation. Upstairs, you'll find three spacious double bedrooms, each benefitting from built-in wardrobes for ample storage and a family bathroom completing the layout.
Situated mere moments from the bustling Wandsworth Town and Southside shopping center, this home offers not only modern comforts but also the allure of an eclectic mix of shops, cafés, and restaurants along the picturesque Old York Road. With outstanding transport links just a short walk away, you can reach Central London in 15 minutes, making it an exceptional opportunity for those seeking both community and connectivity. This property is a rare find in a desirable location—don't miss your chance to make it your own!
3 bedroom terraced house for sale in Westdean Close, London, SW18 — £600,000 • 3 bed • 1 bath • 947 ft²
3 bedroom terraced house for sale in Malva Close, SW18 — £695,000 • 3 bed • 1 bath • 846 ft²
3 bedroom apartment for sale in Lydden Grove, SW18 — £725,000 • 3 bed • 2 bath • 910 ft²
2 bedroom property for sale in Twilley Street, Earlsfield, London, SW18 — £600,000 • 2 bed • 1 bath • 909 ft²
2 bedroom flat for sale in Westdean Close, London, SW18 — £325,000 • 2 bed • 1 bath • 517 ft²
4 bedroom terraced house for sale in Petergate, London, SW11 — £1,100,000 • 4 bed • 2 bath • 1434 ft²










































