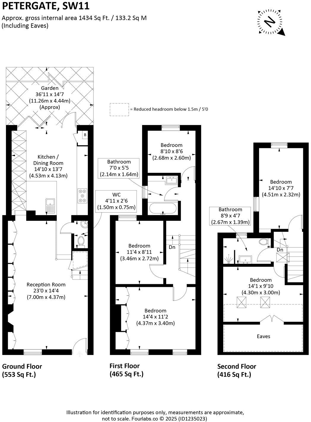
**Standout Features:**
- Four to five bedrooms, including options for a study.
- Open-plan living with modern design elements and fine natural light.
- Extended kitchen/breakfast area leading to a 36' west-facing garden, ideal for family gatherings.
- Two full bathrooms and a convenient cloakroom on the ground floor.
- Freehold property situated in a vibrant, cosmopolitan community.
**Potential Concerns:**
- Average-sized plot may limit outdoor space.
- Solid brick walls may require insulation upgrades.
- Noise levels typical for inner-city living.
Discover this charming mid-terrace family home in the heart of Wandsworth, offering versatile accommodation across three floors. With four spacious bedrooms and the potential for a fifth, this house is perfect for growing families or remote workers. Experience open-plan living in the inviting double reception rooms, complemented by a fully fitted kitchen/breakfast area that seamlessly flows into a delightful 36' garden adorned with beautiful wisteria.
Located just moments from the trendy shops and eateries of Old York Road, commuting is effortless with Wandsworth Town station a short stroll away, providing fast access to the West End. Outdoor recreation is plentiful with nearby Battersea Park and Wandsworth Common, perfect for weekend strolls or picnics.
While the property's historical charm is undeniable, minor updates may be needed to enhance insulation. However, the excellent local schools, including several rated 'Good' or 'Outstanding,' add exceptional value for families. Don't miss the chance to make this captivating home your own, where comfort meets potential in a prime London location. Act now before it slips away!
4 bedroom house for sale in Merton Road, Wandsworth, London, SW18 — £1,000,000 • 4 bed • 3 bath • 1373 ft²
4 bedroom terraced house for sale in Eltringham Street, Battersea, London, SW18 — £1,200,000 • 4 bed • 2 bath • 1220 ft²
4 bedroom terraced house for sale in St. John's Hill Grove, London, SW11 — £1,600,000 • 4 bed • 3 bath • 1601 ft²
4 bedroom terraced house for sale in St. Ann's Hill, London, SW18 — £1,500,000 • 4 bed • 3 bath • 2191 ft²
4 bedroom terraced house for sale in Winfrith Road, London, SW18 — £1,325,000 • 4 bed • 2 bath • 1819 ft²
5 bedroom terraced house for sale in Eglantine Road, Wandsworth, London, SW18 — £2,500,000 • 5 bed • 3 bath • 2531 ft²














































































