NE22 6LA - 5 bedroom detached house for sale in Choppington Road, Bedl…

View on Property Piper

5 bedroom detached house for sale in Choppington Road, Bedlington, NE22

Summary - CHOPPINGTON ROAD, BEDLINGTON NE22 6LA

5 bed 1 bath Detached

Contemporary five-bed family home with PV panels and double garage.
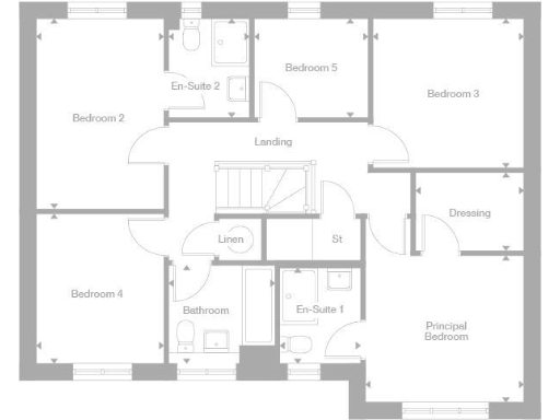
Five bedrooms including two en suites and principal dressing area
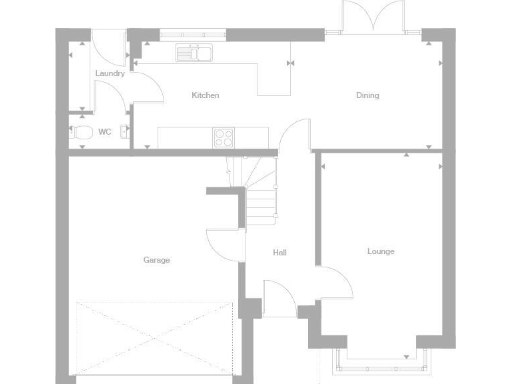
Open-plan kitchen/dining with French doors to private rear garden
Bay-front lounge, separate laundry and guest WC
PV solar panels fitted to reduce energy bills
Double garage plus large driveway; ample off-street parking
Relatively small overall internal area for five-bed (c.993 sq ft)
Broadband speeds reported slow locally; crime above average
Annual service charge £96.66; £500 reservation fee noted
A spacious five-bedroom detached family home arranged over two floors, finished in a contemporary style and protected by a 10-year NHBC warranty. The ground floor has a bay-front lounge, large open-plan kitchen/dining with French doors onto the private rear garden, plus a handy laundry and guest WC. Two bedrooms include en suites and the principal benefits from a dressing area, making this layout practical for a growing family.

The house includes PV solar panels and a double garage with a large driveway, reducing running costs and easing parking for multiple cars. Rooms are efficiently planned but the overall internal floor area is relatively small for a five-bed (circa 993 sq ft), so some spaces are compact compared with older family homes. There is an annual service charge of £96.66 and a £500 reservation fee on the development plots noted.

Location is suburban Bedlington with nearby primary and secondary schools rated Good, local shops, bus links and green verges close by. Broadband speeds are reported as slow in the area and local crime is above average—factors to weigh if remote working or low-crime environment are priorities. Tenure is freehold for the plots referenced; council tax banding is to be confirmed.

This property suits buyers seeking a modern, low-maintenance family home with energy-saving features and garage parking. It will particularly appeal to families prioritising layout flexibility and school access, while those needing large internal living areas or high-speed broadband should check room sizes and local services before committing.

Property Details

Brochure Descriptions

Image Descriptions

Rooms

Textual Property Features

Target Audience

AI Tags

Detected Visual Features

Nearby Schools

Nearest Bars And Restaurants

,,,,}

Nearest General Shops

,,}

Nearest Grocery shops

,,}

Nearest Supermarkets

,,}

Nearest Religious buildings

,,}

Nearest Medical buildings

,,,}

Nearest Airports

,}

Nearest Leisure Facilities

,,,,}

Nearest Tourist attractions

,,}

Nearest Train stations

,,,,}

Nearest Bus stations and stops

,,,,}

Nearest Hotels

,,}

Tags

Local Market Stats

AirBnB Data

Similar Properties

Meta

High Res Images

Compatible Images

Low res Images

Thumbnails

Raw Images

High Res Floorplan Images

Compatible Floorplan Images

Low res Floorplan Images

FloorplanImages Thumbnail

Raw Floorplan Images