Chain-free home with long lease, parking and scope to modernise.
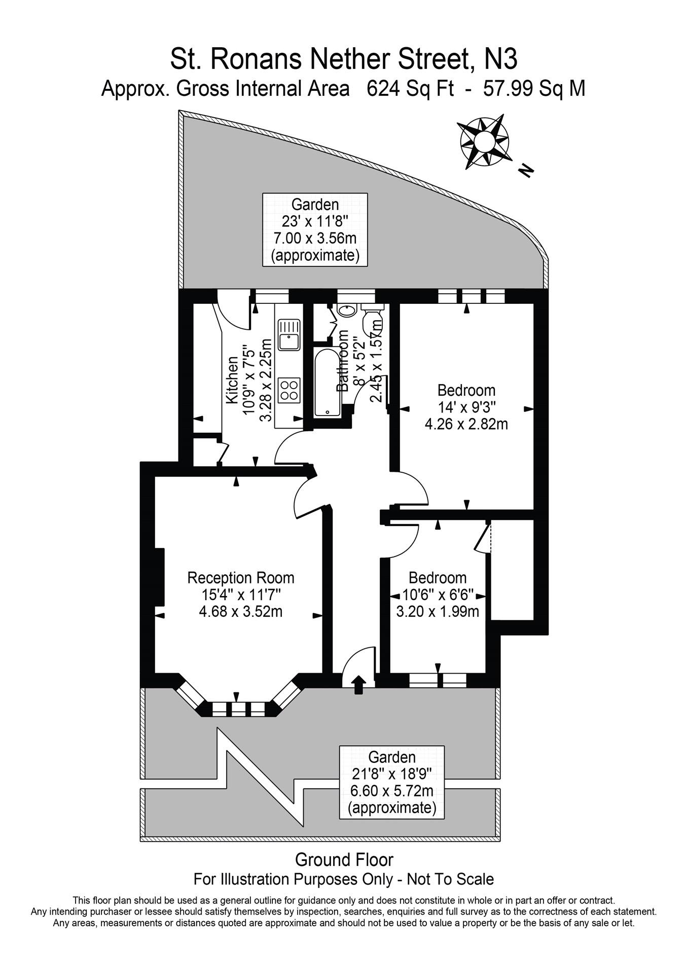
Ground-floor two-bedroom maisonette with front and rear gardens
This two-bedroom ground-floor maisonette offers a practical first home in a well-connected N3 neighbourhood. The property benefits from both front and rear gardens, communal off-street parking and a very long lease (930 years) with a share of freehold — useful for buyers who want stability without high ongoing tenure costs.
Internals show period character with high ceilings and large windows creating bright rooms, but some updating is required. The kitchen is narrow and shows signs of wear; buyers should expect to upgrade appliances and fittings. The building is solid brick with no known insulation upgrades, which may affect thermal performance and running costs until improved.
Practical running costs are reasonable: service charge is modest at £750 and ground rent is low at £50. Broadband speeds are fast and mobile signal is excellent, making the flat suitable for remote working. Chain-free sale increases buying flexibility.
Location strengths include close local amenities, several well-rated primary and secondary schools nearby, and easy transport links in a busy urban area. Be aware the wider area records higher crime levels; prospective buyers should factor local safety measures and surveys into their decision.
2 bedroom flat for sale in St. Ronans, Finchley Central, N3 — £465,000 • 2 bed • 1 bath • 1177 ft²
1 bedroom maisonette for sale in Birkbeck Road, London, N12 — £375,000 • 1 bed • 1 bath • 562 ft²
2 bedroom maisonette for sale in Market Place, East Finchley, N2 — £555,000 • 2 bed • 1 bath • 689 ft²
3 bedroom maisonette for sale in Manor Park Road, London, N2 — £650,000 • 3 bed • 1 bath • 914 ft²
2 bedroom apartment for sale in Leslie Road, London, N2 — £675,000 • 2 bed • 1 bath • 759 ft²
2 bedroom maisonette for sale in Woodside Lane, North Finchley, N12 — £400,000 • 2 bed • 1 bath • 453 ft²










































