Three-storey detached house with garage, garden and warranty for growing families.
- Light-filled sitting room with bay window
- Open-plan kitchen/dining with integrated Bosch appliances
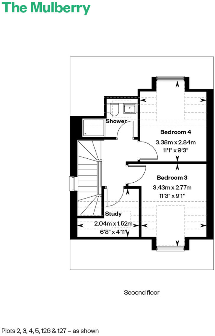
- Bedroom 1 with dressing room and en suite
- Separate study and dedicated laundry room
- Garage plus driveway parking and large plot
- 10-year NHBC warranty; new-build, low immediate maintenance
- Service charge £324 per annum; freehold tenure stated
- Confirm actual bathroom count and local broadband performance
A modern three-storey detached family home on a large plot, The Mulberry offers light-filled living across an intelligently planned layout. The ground floor features a dual-aspect sitting room with a bay window and an open-plan kitchen/dining family space with integrated Bosch appliances and French doors to a turfed rear garden. Bedroom 1 includes a dressing room and an en suite for private family comfort, and there’s an additional study and laundry space to aid everyday organisation.
This is a new-build property with double glazing, Amtico and carpeted floors throughout, garage and driveway parking, and a 10-year NHBC warranty — useful peace of mind for buyers wanting minimal immediate maintenance. Service charge is modest at £324 per annum and the development sits in a very affluent, green-edge setting with good local schools and nearby amenities.
Buyers should note two practical points before viewing: advertised marketing text references multiple bathrooms across floors, but recorded bathroom count should be checked with the developer, and while fibre is installed to the home, local reported broadband speeds are slow — confirm actual connection performance if high-speed internet is essential. Tenure is shown as freehold and the property is offered with a stamp-duty paid and part-exchange incentive (terms apply).
Overall this home will suit growing families seeking contemporary, low-maintenance living and plenty of internal space on a large plot, while those prioritising guaranteed superfast broadband or exact bathroom configuration should verify specifics prior to commitment.
4 bedroom detached house for sale in Tram Avenue, Deepcut, Camberley, GU16 — £725,000 • 4 bed • 3 bath • 1441 ft²
3 bedroom semi-detached house for sale in Mindenhurst Road, Deepcut,
GU16 6LG, GU16 — £539,950 • 3 bed • 1 bath • 360 ft²
3 bedroom semi-detached house for sale in Mindenhurst Road, Deepcut,
GU16 6LG, GU16 — £545,000 • 3 bed • 1 bath • 773 ft²
6 bedroom detached house for sale in Kennel Lane, Fetcham, KT22 — £1,495,000 • 6 bed • 3 bath • 2490 ft²
4 bedroom detached house for sale in Frimhurst Farm, Bridge Road, Deepcut, Surrey, GU16 — £695,000 • 4 bed • 2 bath • 1262 ft²
4 bedroom detached house for sale in Track End, Deepcut, Camberley, GU16 — £699,950 • 4 bed • 2 bath • 1348 ft²


































































