Immaculate three-bedroom semi with large garden, abundant parking and modern finish — ideal for families..
Three double bedrooms across first floor
Spacious open-plan lounge-diner with garden access
Large private rear garden with patio and lawn
Block-paved driveway fits multiple vehicles plus garage
Newly renovated interior with modern kitchen and finishes
Worcester Bosch combi boiler approx. 10 years old
Single family bathroom only (one bathroom for three bedrooms)
Double glazing present; installation date unknown
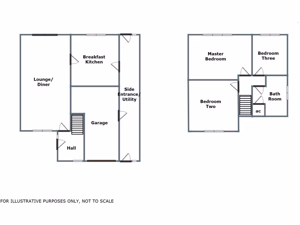
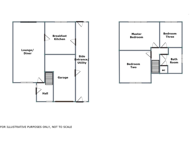
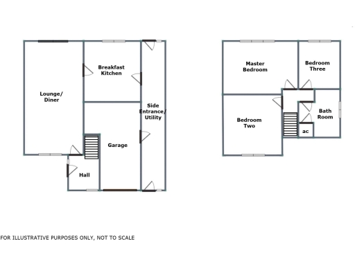
Set on a generous plot in a quiet Burntwood street, this immaculately presented three-bedroom semi delivers ready-to-move-in family space. The open-plan lounge-diner and modern breakfast kitchen flow to a large private garden with patio and lawn — ideal for children and outdoor entertaining. A wide block-paved driveway provides parking for several vehicles and there is an attached garage for additional storage.
The home has been newly renovated and benefits from double glazing and a Worcester Bosch combi boiler (approx. 10 years old). Three double bedrooms on the first floor suit a growing family; the layout includes a long side entrance/utility that adds practical laundry space and direct garage access. Local amenities, good primary schools and regular bus links make daily life straightforward, with commuter roads nearby.
Practical considerations are straightforward: there is a single family bathroom, and the house dates from the late 1960s–1970s (original construction era noted). Double glazing install date is not specified. Overall the property is presented to a modern standard and offers an attractive balance of ready condition, outdoor space and parking — a strong option for families seeking low-maintenance suburban living.
3 bedroom semi-detached house for sale in Avon Road Burntwood, WS7 — £240,000 • 3 bed • 1 bath • 776 ft²
3 bedroom semi-detached house for sale in Avon Road, Burntwood, WS7 — £240,000 • 3 bed • 1 bath • 762 ft²
3 bedroom semi-detached house for sale in Burns Drive, Burntwood, WS7 — £275,000 • 3 bed • 1 bath • 950 ft²
3 bedroom semi-detached house for sale in Victory Avenue, Burntwood, WS7 2AL, WS7 — £280,000 • 3 bed • 1 bath • 1389 ft²
3 bedroom semi-detached house for sale in Highfield Road, Burntwood, WS7 — £230,000 • 3 bed • 1 bath • 745 ft²
4 bedroom semi-detached house for sale in Larkspur Avenue, Burntwood, WS7 — £325,000 • 4 bed • 2 bath • 1368 ft²






































































































