Three terraces and lift access close to Camden Town transport and amenities.
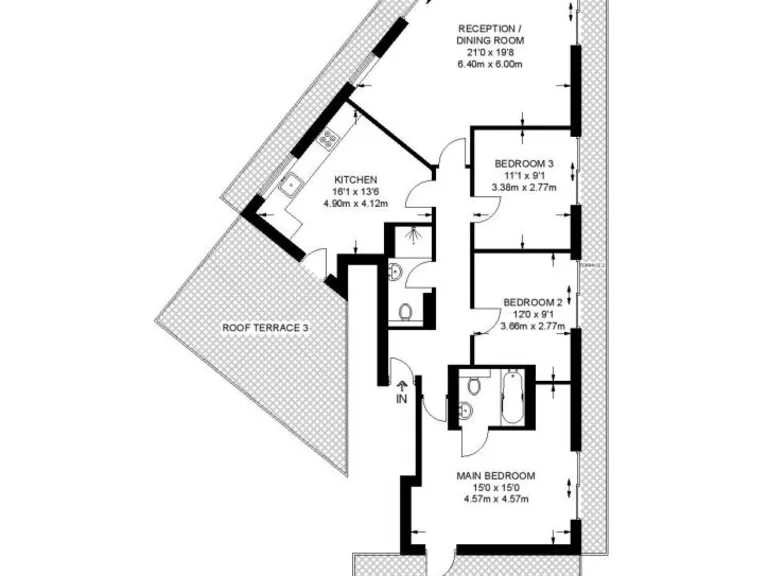
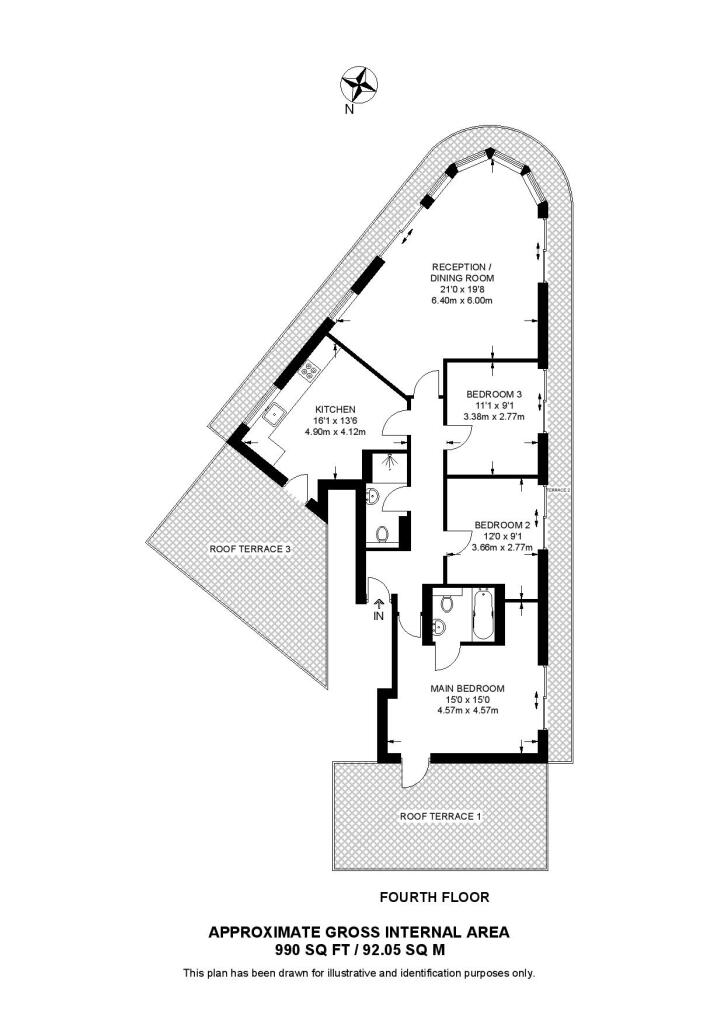
Three-bedroom penthouse with panoramic London skyline views
This top-floor three-bedroom penthouse offers exceptional panoramic skyline views across multiple roof terraces, ideal for buyers seeking memorable outdoor space in central London. The reception room is bright and dual-aspect with terrace access, while a modern kitchen and contemporary interiors keep the apartment turn-key for everyday living.
Practical details suit city living: lift access to the fourth floor, double glazing, gas central heating and a gross internal area of approximately 990 sq ft. The property sits close to Camden Town’s cafés, markets and transport links, and several well-regarded local schools are within easy reach.
Important considerations are factual and should influence viewing decisions: the property is leasehold and will be sold at an online auction (23 October 2025), so purchase timelines differ from private treaty sales. The EPC is rated C and council tax is described as expensive. Buyers should allow for any service charges or lease commitments when budgeting.
This apartment will suit buyers who prioritise location, outdoor terraces and skyline views—whether as a family seeking central space or an investor targeting high-demand Camden-adjacent rental locations. Viewings are by appointment and auction terms apply, so interested parties should review legal pack and bidding procedure before committing.
3 bedroom flat for sale in York Way, Camden, London, N7 — £900,000 • 3 bed • 2 bath • 990 ft²
3 bedroom flat for sale in Kentish Town Road, Camden Town, London, NW1 — £1,000,000 • 3 bed • 3 bath • 1309 ft²
4 bedroom flat for sale in Oakley Square, Camden Town, NW1 — £2,500,000 • 4 bed • 3 bath • 1945 ft²
1 bedroom flat for sale in Mount View Road, London, N4 — £475,000 • 1 bed • 1 bath • 470 ft²
2 bedroom flat for sale in Bayham Place, Camden, London, NW1 — £450,000 • 2 bed • 1 bath • 670 ft²
4 bedroom apartment for sale in Holmes Road, London NW5 — £4,450,000 • 4 bed • 3 bath • 3273 ft²






















































































