Three-bedroom city home with expansive skyline outlook, ready for viewing.
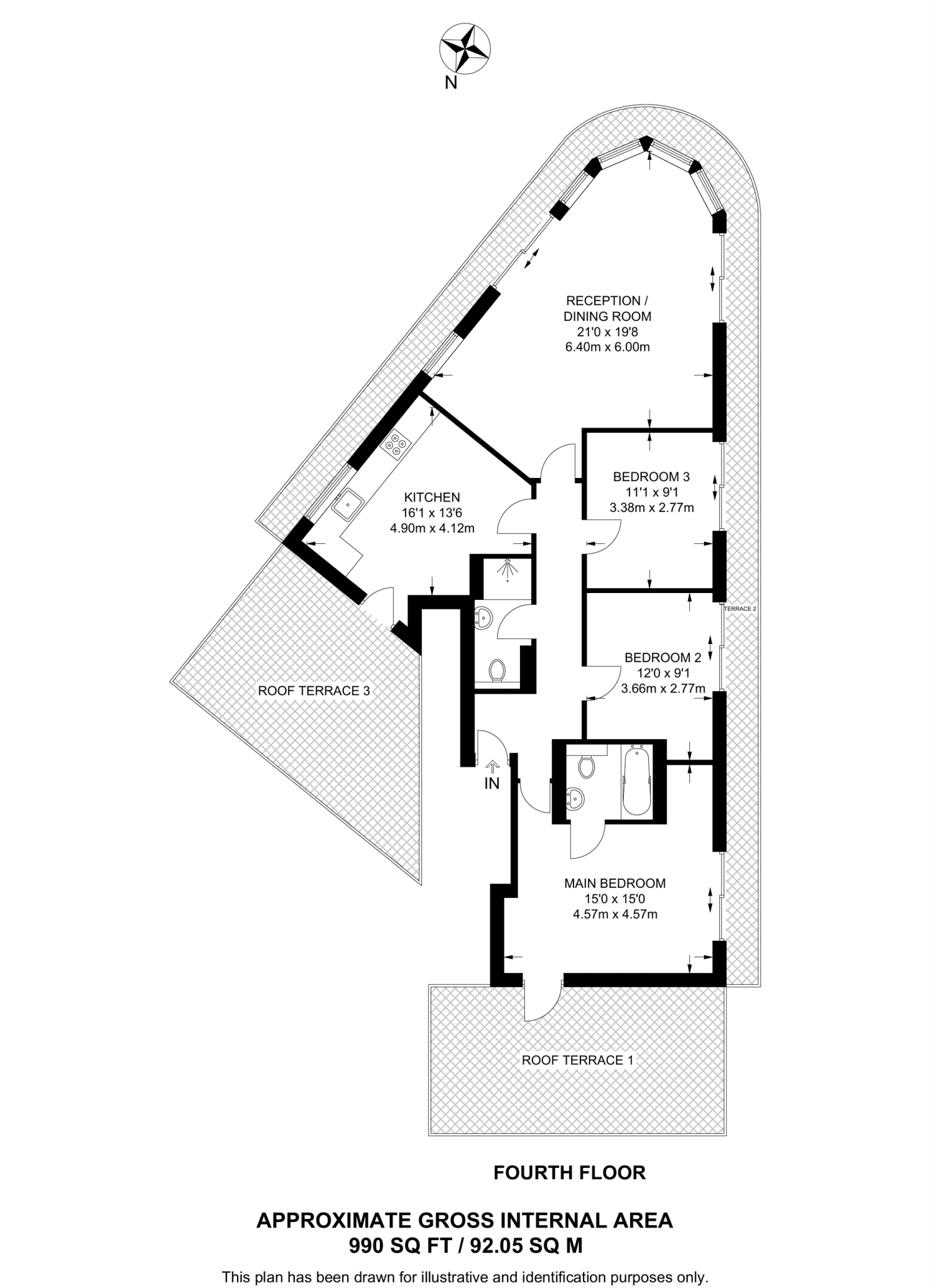
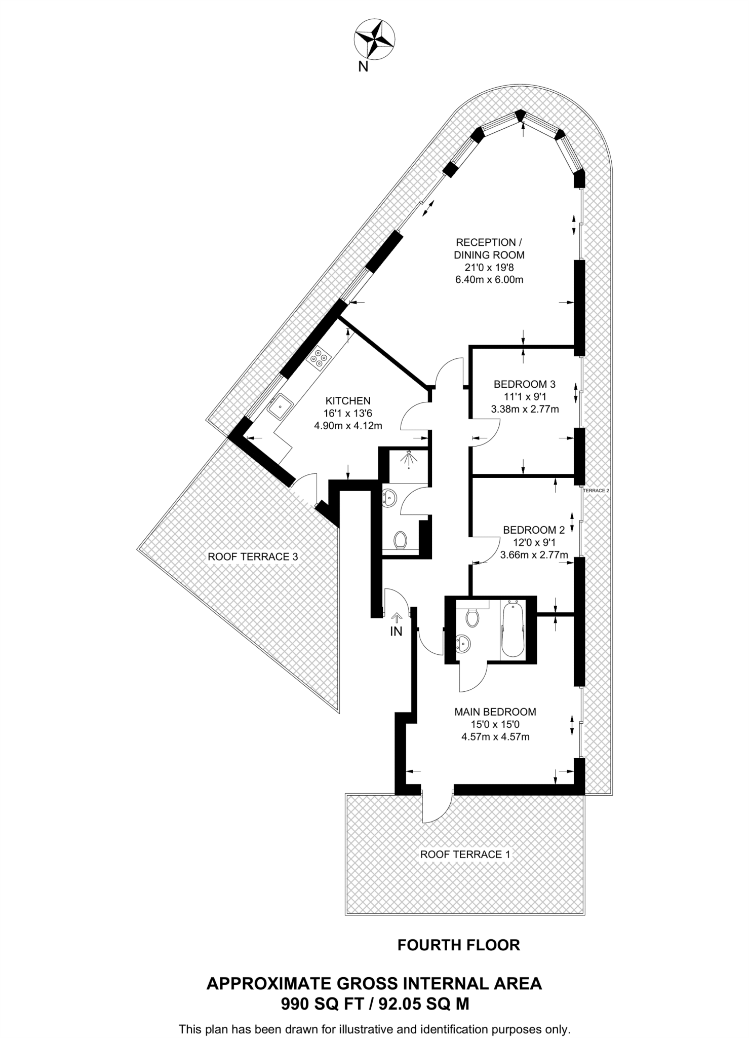
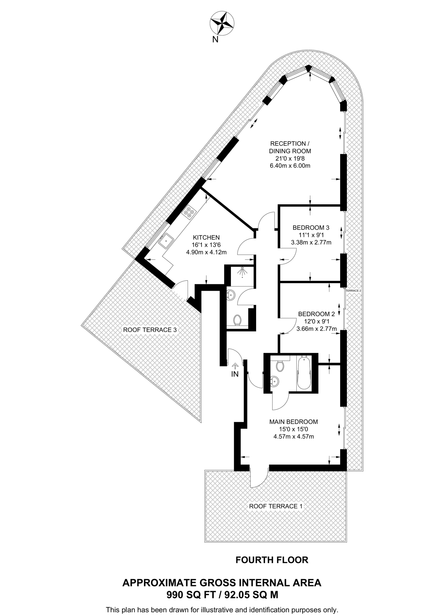
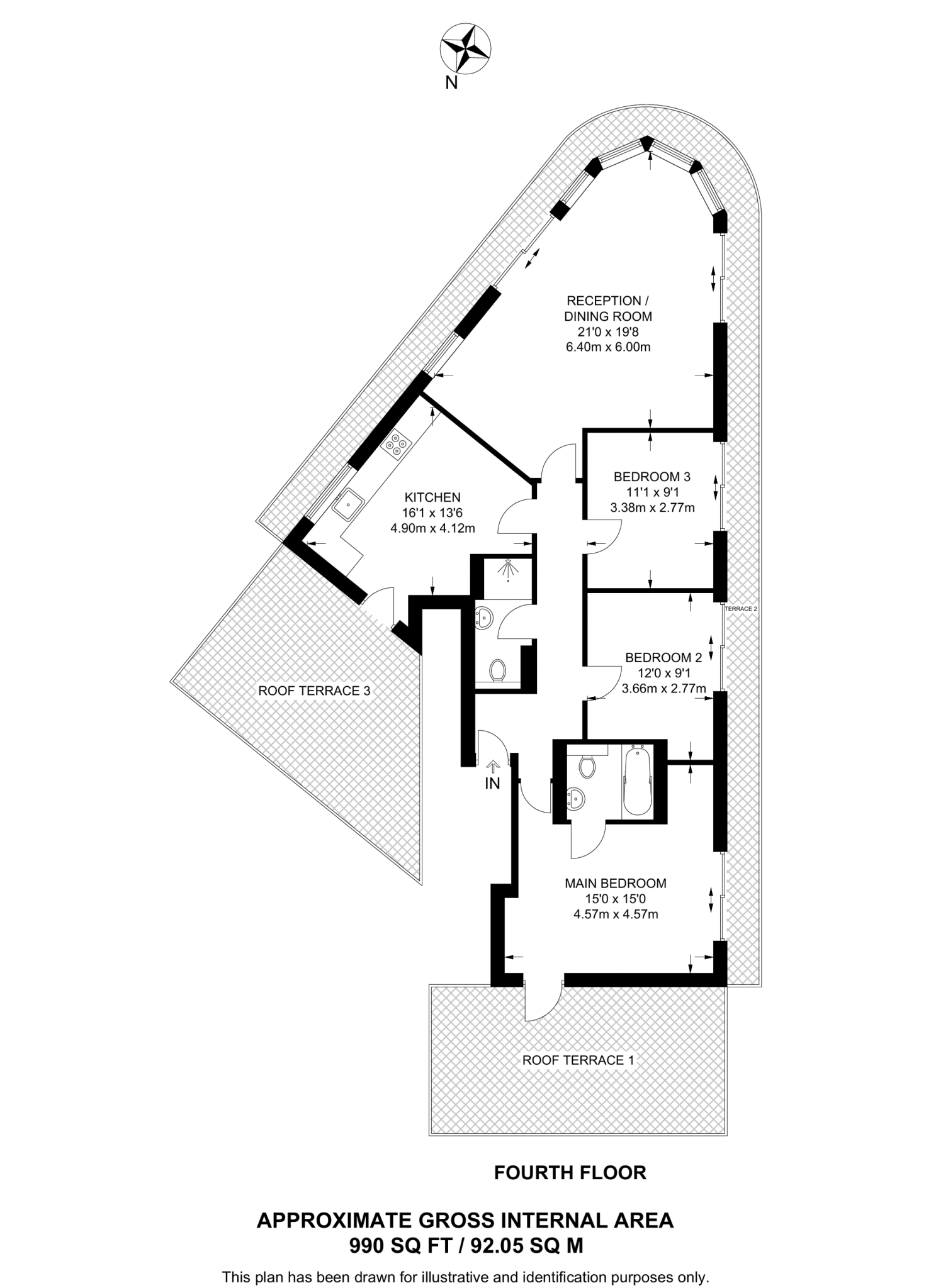
Three private roof terraces with panoramic London skyline views
Bright dual-aspect reception with terrace access and lift access
Modern kitchen with separate terrace access
Main bedroom with en suite and own terrace
990 sq ft — average-sized three-bedroom penthouse
Constructed 2003–2006; double glazed and gas central heating
Leasehold tenure and sold at auction — verify lease and charges
Inner-city location — excellent transport, possible urban noise
This top-floor three-bedroom penthouse offers striking panoramic views across the London skyline from three private roof terraces. The reception room is bright and dual-aspect with terrace access, and the modern kitchen also opens to an outside space — ideal for indoor-outdoor living and entertaining. The main bedroom includes an en suite and its own terrace, while two further bedrooms share a pristine shower room. Constructed in the mid-2000s, the apartment benefits from double glazing, gas boiler heating and lift access.
Located on York Way in N7, the flat sits close to Camden Town’s cafés, markets and transport hubs — Kings Cross St Pancras, Euston and Camden Road are all within easy reach. Local green spaces include Caledonian Park and Hampstead Heath, and a selection of well-rated state schools are nearby, making this a practical option for families wanting city convenience with outdoor access.
Important purchase notes: the property is leasehold and will be sold at auction. Prospective buyers should verify lease length, ground rent and service charge figures before bidding. The apartment is an average-sized 990 sq ft; while well-presented, buyers seeking larger floorplates or freehold ownership should consider these constraints.
3 bedroom apartment for sale in City Of London Point, York Way, London, N7 — £775,000 • 3 bed • 2 bath • 990 ft²
3 bedroom flat for sale in Kentish Town Road, Camden Town, London, NW1 — £1,000,000 • 3 bed • 3 bath • 1309 ft²
3 bedroom penthouse for sale in Boulevard Drive, Colindale, London, NW9 — £600,000 • 3 bed • 2 bath • 1206 ft²
1 bedroom flat for sale in Mount View Road, London, N4 — £475,000 • 1 bed • 1 bath • 470 ft²
3 bedroom flat for sale in Thornbury House Thornbury Square Highgate N6 — £1,950,000 • 3 bed • 3 bath • 2095 ft²
4 bedroom apartment for sale in Holmes Road, London NW5 — £4,450,000 • 4 bed • 3 bath • 3273 ft²






































































































































































































