Ideal starter home or rental near station and hospital.
Allocated off-street parking space included
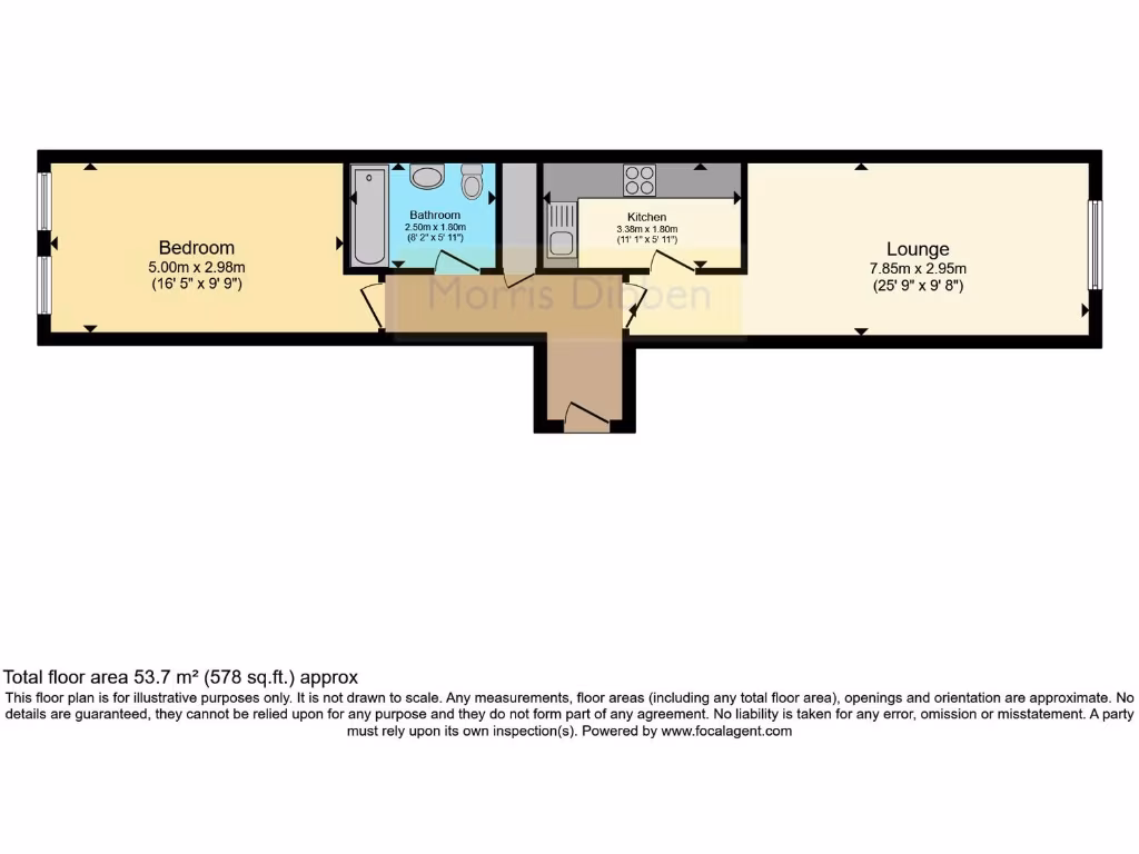
A well-located one-bedroom apartment on Cosham High Street, offering easy access to local shops, buses, and Cosham train station. The block is modern (built post-2012) with double glazing, a communal lift, secure entry and allocated off-street parking — useful for commuters or buy-to-let purchasers.
Internally the flat is an average-sized city apartment with one double bedroom, a combined living/dining area and modern kitchen and bathroom fittings reported. Communal storage is provided and the building benefits from mains gas central heating and a B-rated EPC, which helps running costs.
Buyers should note this is a leasehold property with c.111 years remaining, an annual service charge around £2,200 and ground rent £150. The immediate area scores as very deprived with very high recorded crime levels; street noise and nearby ground-floor commercial activity are part of the urban setting. There is no private garden — outdoor space is limited to any balcony and communal areas.
For first-time buyers seeking an affordable entry into Portsmouth or investors looking for a centrally located rental, this apartment offers practical transport links and low council tax. Factor in service charge and local area considerations when assessing yield or suitability for long-term owner occupation.
2 bedroom flat for sale in High Street, Cosham, Portsmouth, Hampshire, PO6 — £190,000 • 2 bed • 2 bath • 725 ft²
2 bedroom flat for sale in Peelers Gate, 7-9 Wayte Street, Portsmouth, Hampshire, PO6 3AR, PO6 — £155,000 • 2 bed • 1 bath • 603 ft²
2 bedroom flat for sale in Cotton Road, Portsmouth, Hampshire, PO3 — £190,000 • 2 bed • 1 bath • 612 ft²
2 bedroom apartment for sale in Peelers Gate, Cosham, PO6 — £169,950 • 2 bed • 1 bath • 632 ft²
1 bedroom flat for sale in Honeywood Close, Portsmouth, PO3 — £135,000 • 1 bed • 1 bath • 433 ft²
2 bedroom flat for sale in Vectis Way, Cosham, PO6 — £160,000 • 2 bed • 1 bath • 668 ft²


































