PO3 5BW - 1 bed honeywood first floor in Honeywood Close, PO3 5BW

View on Property Piper

1 bedroom flat for sale in Honeywood Close, Portsmouth, PO3

Summary - 67 HONEYWOOD CLOSE PORTSMOUTH PO3 5BW

1 bed 1 bath Flat

Compact, low-cost starter close to schools and transport links.
Allocated off-street parking space included
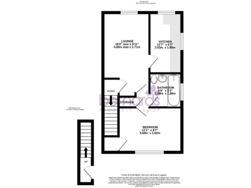
A well-presented first-floor one-bedroom flat in a sought-after Portsmouth cul-de-sac, offering a compact, comfortable home or a straightforward rental investment. The apartment benefits from neutral decor, a practical reception room, a separate kitchen and a three-piece bathroom, all laid out for efficient everyday living. An allocated off-street parking space is a valuable convenience in this location.

The property is leasehold with 129 years remaining and a modest ground rent of £175 per year. Heating is electric via room heaters and the building has double glazing; buyers should note running costs may be higher than gas-heated homes. The footprint is small (around 433 sq ft) so the flat suits a single occupant, couple, or a buy-to-let landlord seeking low-maintenance stock.

Local connections are strong: fast broadband, excellent mobile signal, and nearby amenities including schools, leisure facilities and transport links. Council Tax band A keeps local charges low. Overall this is a pragmatic, entry-level opportunity—good for first-time buyers wanting an easy-to-manage home or investors after a simple, well-located one-bedroom unit—provided you accept the compact size and electric heating setup.

Property Details

Brochure Descriptions

Image Descriptions

Floorplan Description

Rooms

Textual Property Features

Target Audience

AI Tags

Detected Visual Features

EPC Details

Nearby Schools

Nearest Bars And Restaurants

,,,,}

Nearest General Shops

,,}

Nearest Grocery shops

,,}

Nearest Supermarkets

,,}

Nearest Religious buildings

,,}

Nearest Medical buildings

,,,}

Nearest Airports

}

Nearest Leisure Facilities

,,,,}

Nearest Tourist attractions

,,}

Nearest Train stations

,,,,}

Nearest Bus stations and stops

,,,,}

Nearest Hotels

,,}

Tags

Local Market Stats

Similar Properties

Meta

High Res Images

Compatible Images

Low res Images

Thumbnails

Raw Images

High Res Floorplan Images

Compatible Floorplan Images

Low res Floorplan Images

FloorplanImages Thumbnail

Raw Floorplan Images