Well-located three-bedroom home with garage and private parking.
Three bedrooms with en suite to principal bedroom
Open-plan kitchen/dining room for family living
Single garage plus two private parking spaces
Decent rear garden and practical 1,075 sq ft layout
New build due Winter 2025; internal images illustrative
Estimated estate charge £500 per year (below average)
EPC to be confirmed and council tax banding not yet set
Tenure not provided; reservation fee and terms apply
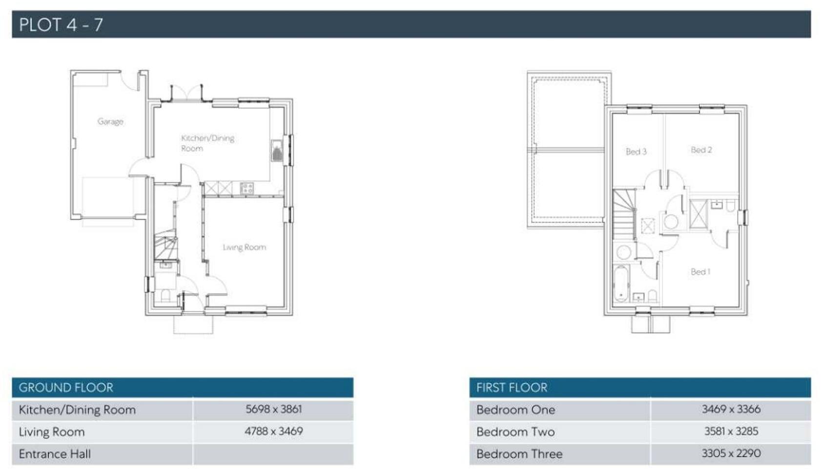
Orchard Mews presents two final three-bedroom detached homes in a small, traditionally styled development. Each property offers a practical layout with an open kitchen/dining room, separate living room, ground-floor cloakroom and an en suite to the principal bedroom. A single garage, two private parking spaces and a decent rear garden provide everyday convenience for families and commuters alike.
These new-build homes are due for first completions in Winter 2025 and measure approximately 1,075 sq ft. The specification is designed to feel cohesive and welcoming; images are illustrative and some CGI. The development has an estimated estate charge of £500 per annum, below average for similar schemes.
Buyers should note a few outstanding details: EPC ratings are to be confirmed, council tax banding is set only after legal completion, and tenure information is not yet provided. A reservation fee and associated terms apply — prospective purchasers should request full details before proceeding.
Located in Southbourne with excellent mobile and broadband connectivity, the homes sit close to good-rated primary and secondary schools, local amenities and road and rail links — making them suitable for families, downsizers and commuters seeking a modern home in an affluent, semi-rural setting.
4 bedroom detached house for sale in Main Road, Southbourne, PO10 — £700,000 • 4 bed • 2 bath • 1599 ft²
2 bedroom semi-detached house for sale in Main Road, Southbourne, PO10 — £355,000 • 2 bed • 2 bath • 797 ft²
2 bedroom detached bungalow for sale in Orchard Mews, Southbourne, PO10 — £625,000 • 2 bed • 2 bath • 1011 ft²
3 bedroom detached house for sale in Cooks Lane,
Southbourne,
PO10 8LG, PO10 — £415,000 • 3 bed • 1 bath • 572 ft²
3 bedroom detached house for sale in Priors Orchard, Emsworth, PO10 — £550,000 • 3 bed • 2 bath • 1155 ft²
2 bedroom detached bungalow for sale in Orchard Mews, Southbourne, PO10 — £625,000 • 2 bed • 2 bath • 1011 ft²










































