Chain-free extended three-bed with attic conversion potential and rear garage, sold for refurbishment..
NO ONWARD CHAIN — vacant and ready for sale
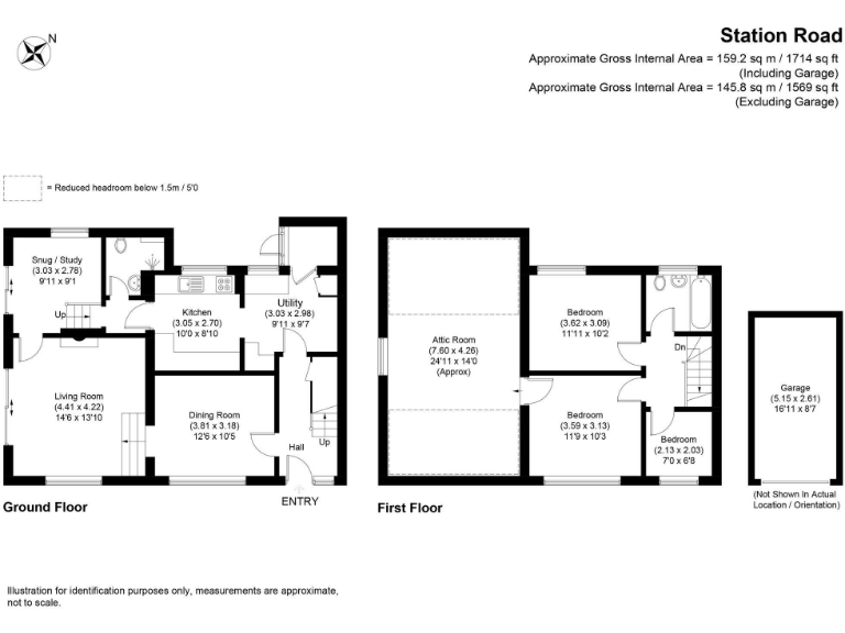
This extended three-bedroom end-of-terrace on Station Road, Pershore, offers generous live-in space with clear potential for a modern family home or a value-add investment. The property is chain-free and arranged over multiple floors with three reception rooms, a kitchen, utility, rear porch and ground-floor shower room — useful for adaptable family arrangements or a self-contained ground-floor suite.
Upstairs there are three bedrooms served by a first-floor bathroom and a substantial attic room accessed from one bedroom. That attic presents a clear opportunity to create a principal suite or extra living space subject to planning and building regulations. Externally the house has a decent rear garden, additional parking to the rear and an en-bloc garage, useful for storage, a workshop or secure parking.
The house requires modernisation throughout: the kitchen and many internal finishes date from earlier decades and the property is described as needing renovation. Walls are cavity-built with no installed cavity insulation (assumed) and the EPC is D, so buyers should budget for energy-efficiency improvements and cosmetic upgrading. The location offers good local facilities, schools and train links, but note crime levels are reported as high and the wider area scores as relatively deprived — factors to consider for buyer-type and future rental demand.
For buyers seeking substantial internal space and long-term upside, this home offers a large footprint and conversion potential at a competitive price. Practical purchasers, renovators or investors will find the combination of size, parking and an attic conversion opportunity attractive, provided they allow for refurbishment costs and local area considerations.
3 bedroom semi-detached house for sale in Defford Road, Pershore, Worcestershire, WR10 — £300,000 • 3 bed • 1 bath • 958 ft²
4 bedroom detached house for sale in Little Penny Rope, Pershore, WR10 — £575,000 • 4 bed • 2 bath • 1874 ft²
3 bedroom terraced house for sale in Hurst Road, Pershore, WR10 — £250,000 • 3 bed • 1 bath
3 bedroom terraced house for sale in Station Road, Pershore, WR10 — £240,000 • 3 bed • 1 bath • 943 ft²
2 bedroom terraced house for sale in Newlands, Pershore, WR10 — £250,000 • 2 bed • 1 bath • 1019 ft²
4 bedroom detached house for sale in Garden Stiles, Pershore, WR10 — £325,000 • 4 bed • 1 bath • 985 ft²










































































