Managed retirement living close to shops, station and beaches.
One bedroom first-floor apartment with views over communal gardens
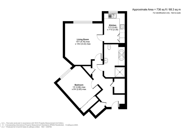
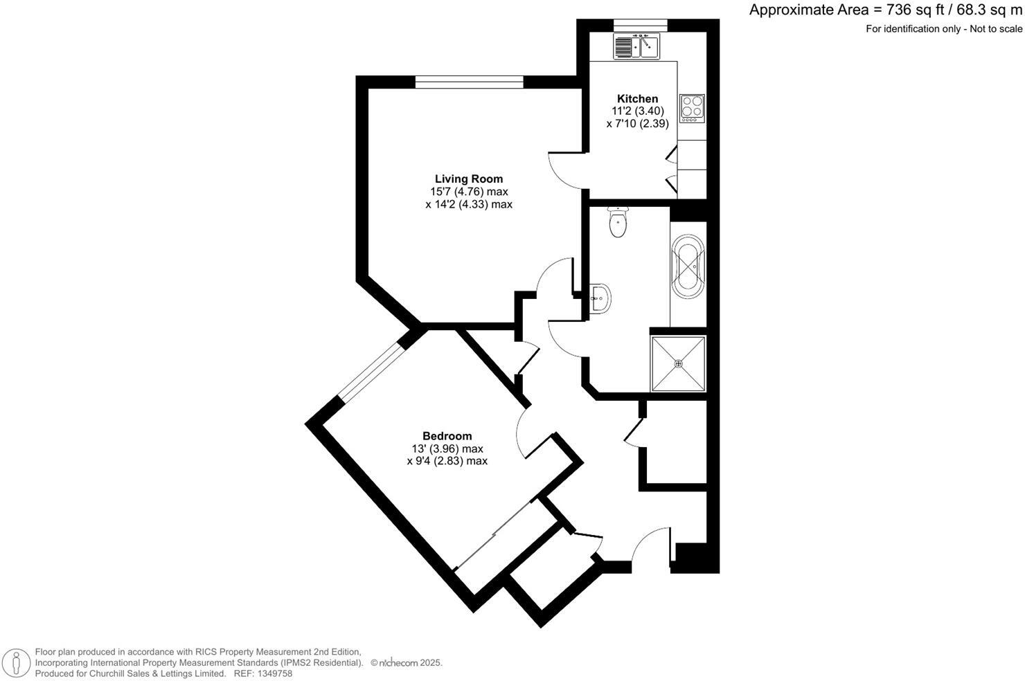
This bright one-bedroom first-floor apartment in Melton Court is designed for independent retirement living close to shops, transport and sandy beaches. The living room overlooks well-kept communal gardens and the generous bathroom includes both a bath and level-access shower — a practical layout for daily comfort. The building provides clear practical benefits: a 24-hour duty manager, emergency pull cord system, secure entry, guest suite, laundry room and 1.5 hours of weekly housekeeping support included.
The development sits under 200 metres from Tesco, with Branksome train station, Lidl and local amenities within easy reach — ideal for short trips without needing a car. Owners’ private off-street parking and attractive communal gardens add convenience and outside space. The apartment has double glazing, gas central heating and three hallway storage cupboards, helping with day-to-day storage and warmth.
Important practical points: the property is leasehold with 98 years remaining and a resale transfer premium of up to 3% may apply. Service charges are substantial at £9,912.18 per year (quoted as £912.18 per month) and council tax sits in band E. The area records above-average crime compared with national levels, which prospective buyers should factor into their decision.
Suited to downsizers seeking a managed retirement setting, this apartment offers turn-key living with on-site support and communal facilities. It will particularly appeal to buyers who prioritise safety, nearby shops and low-maintenance living, though budget-conscious purchasers should allow for the high annual service charge and ongoing leasehold costs.
2 bedroom retirement property for sale in Melton Court, Poole, BH13 — £195,000 • 2 bed • 1 bath • 829 ft²
1 bedroom apartment for sale in 37 Lindsay Road, Poole, BH13 — £130,000 • 1 bed • 1 bath • 734 ft²
1 bedroom retirement property for sale in Lindsay Road, Poole, BH13 — £169,000 • 1 bed • 1 bath • 640 ft²
2 bedroom apartment for sale in 37 Lindsay Road, Poole, BH13 — £250,000 • 2 bed • 1 bath • 808 ft²
1 bedroom retirement property for sale in Lindsay Road, Branksome Park, Poole, Dorset, BH13 — £150,000 • 1 bed • 1 bath • 580 ft²
2 bedroom apartment for sale in 37 Lindsay Road, Poole, BH13 — £210,000 • 2 bed • 1 bath • 814 ft²


























































