Immaculate two-bedroom cottage with parking, sea views and ready-made holiday let potential..
Sea views from first-floor bedroom
Allocated off-street parking for one car
Recently renovated — ready to occupy
Westerly-facing enclosed front garden
Small rear yard with shed/store
Electric radiators only — no gas central heating
Currently a commercial holiday let (Business Rates apply)
Modest plot size, limited outdoor space
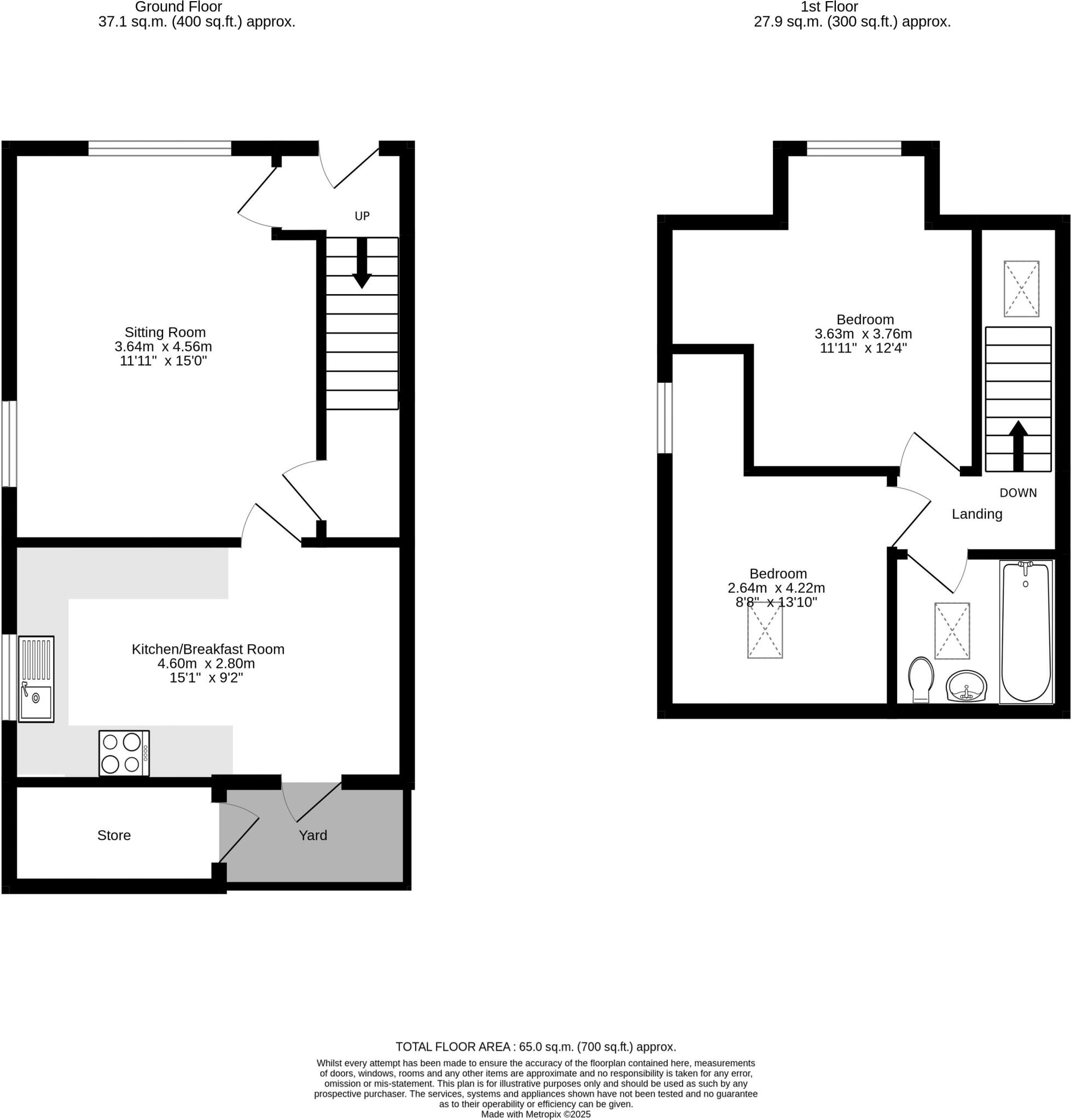
Set at the end of Union Street, Harbourmaster Cottage is an attractive two-bedroom end-terrace with allocated parking and a westerly front garden. The property has been recently refurbished and presents well throughout, making it ready to occupy as a main residence, second home, or as a commercial holiday let.
Upstairs bedrooms are bright; the front bedroom has a dormer and the second bedroom offers partial sea views. Ground floor living includes a bay-front sitting room and a fitted kitchen/diner with recently renewed electric hob and integrated appliances. A small rear yard and useful shed add practical outdoor storage.
Practical details are straightforward: freehold tenure, electric radiators, uPVC double glazing and mains services. The property is currently let commercially and registered under Business Rates — buyers should factor this in if they intend to use the cottage as a private home. The plot is modest and parking is for one car only.
This cottage will suit buyers seeking low-maintenance coastal living or investors wanting a turn-key holiday let in Seahouses, close to the harbour, local shops and eateries. While well presented, heating is electric only and outdoor space is small, so those wanting large gardens or gas central heating should note these limitations.
2 bedroom terraced house for sale in Taylor Street, Seahouses, Northumberland, NE68 — £395,000 • 2 bed • 2 bath • 1064 ft²
2 bedroom terraced house for sale in Little Cottage, Union Street, Seahouses, Northumberland, NE68 — £235,000 • 2 bed • 1 bath • 388 ft²
3 bedroom terraced house for sale in Taylor Street, Seahouses, Northumberland, NE68 — £395,000 • 3 bed • 1 bath • 1440 ft²
1 bedroom cottage for sale in North Street, Seahouses, Northumberland, NE68 7SD, NE68 — £239,950 • 1 bed • 1 bath • 593 ft²
2 bedroom terraced house for sale in Taylor Street, Seahouses, Northumberland, NE68 — £295,000 • 2 bed • 1 bath • 821 ft²
2 bedroom terraced house for sale in Taylor Street, Seahouses, Northumberland, NE68 — £225,000 • 2 bed • 1 bath • 884 ft²


































