Refurbished two-bed Victorian cottage by Seahouses harbour — proven holiday let, chain free..
- Chain free two-bedroom Victorian terraced cottage
- Proven successful holiday let with coastal location
- Log-burning stove and exposed character features
- Driveway parking for 1–2 cars, small paved courtyard
- Newly fitted windows 2020; boiler/heating system 2023
- Electric heating and room heaters; higher running costs likely
- Solid stone walls assumed without insulation (upgrade recommended)
- EPC rating D; single bathroom only
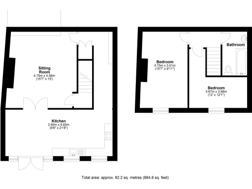
Puffin Cottage is a refurbished two-bedroom Victorian terraced cottage tucked close to Seahouses harbour, offered chain-free and already proven as a successful holiday let. The interior balances original character — stone chimney breast, exposed beams, oak flooring — with recent upgrades including new windows (2020) and a heating/boiler system replaced in 2023.
The ground floor offers a bright kitchen diner with patio doors and useful fitted storage, leading to a snug lounge centred on a log-burning stove. Upstairs there are two double bedrooms and a bathroom with an electric shower over the bath; practical understairs storage and modern finishes help the cottage work well for short-term guests or a compact permanent home.
Outside is a paved driveway for one to two cars and a small courtyard area suitable for seating. The coastal location and proximity to local amenities and Farne Islands boat departures underpin strong holiday-let demand. EPC rating D, electric heating and assumed solid stone walls with no internal insulation may affect running costs and future upgrade budgets.
Overall this is a tidy, characterful property that suits an investor seeking an income-generating seaside cottage or a buyer wanting a low-maintenance second home. Buyers should budget for ongoing running costs related to electric heating and consider insulation improvements to improve efficiency and EPC performance.
2 bedroom terraced house for sale in Taylor Street, Seahouses, Northumberland, NE68 — £395,000 • 2 bed • 2 bath • 1064 ft²
2 bedroom terraced house for sale in Taylor Street, Seahouses, Northumberland, NE68 — £295,000 • 2 bed • 1 bath • 821 ft²
2 bedroom terraced house for sale in Little Cottage, Union Street, Seahouses, Northumberland, NE68 — £235,000 • 2 bed • 1 bath • 388 ft²
2 bedroom terraced house for sale in Harbourmaster Cottage, Union Street, Seahouses, Northumberland, NE68 — £280,000 • 2 bed • 1 bath • 700 ft²
2 bedroom terraced house for sale in Crown Street, Seahouses, Northumberland, NE68 7XL, NE68 — £245,000 • 2 bed • 1 bath
1 bedroom cottage for sale in North Street, Seahouses, Northumberland, NE68 7SD, NE68 — £239,950 • 1 bed • 1 bath • 593 ft²






























































