Craftsman‑built, energy‑efficient cottage with large garden and family-friendly layout.
Energy-efficient: air source heat pump, underfloor heating, low running costs
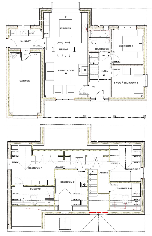
Large open-plan living with bifold doors to patio and garden
High-quality finishes: oak staircase, oak doors, slate and oak floors
Downstairs bedroom and shower room plus snug/office for flexibility
Very large rear garden and paved patio for outdoor living
Single integral garage; driveway space for two cars only
Downstairs bedroom is narrow (approx. 3.2m x 1.2m) — limited use
Local area flagged as deprived; nearby primary school needs improvement
Brambling Cottage is a newly built, cottage‑inspired detached home on the Honnacotts development in Bradworthy. Built by craftsmen using natural materials, it blends traditional details — exposed beams, oak doors and a beamed fireplace with log burner — with modern, energy‑efficient systems including an air source heat pump, underfloor heating and an electric car charger point.
The house offers practical family living across a generous footprint: a large double‑aspect open-plan kitchen/dining/sitting room with bifold doors to the patio, a ground‑floor bedroom and shower room, a snug/office and three good bedrooms upstairs including a spacious master with ensuite. Many finishes are high quality — oak staircase with glass balustrades, slate and oak floors — and the garage is built to current cavity‑wall standards, allowing potential future adaptation.
Outside, the plot is described as very large with a lawned front, picket fence and a sizeable rear garden and patio ideal for alfresco dining and children or pets. The village location is convenient — a short, level walk to the square and local amenities — while North Devon and Cornwall coastlines are within reasonable driving distance.
Practical points to note: the downstairs fourth bedroom is narrow (approx. 3.2m x 1.2m) and best suited as a guest room or study rather than a principal bedroom. The development sits in an area marked as deprived for broader statistics and the nearest primary school, Bradworthy Primary Academy, currently has an Ofsted rating of "Requires improvement." The integral garage is single and while the driveway accommodates two cars, the property does not offer extensive covered parking beyond that garage.
3 bedroom detached bungalow for sale in Poppy Cottage, Foxtail Meadow, Holsworthy, EX22 — £520,000 • 3 bed • 3 bath • 1184 ft²
4 bedroom detached house for sale in Long Park Drive, Bradworthy, Holsworthy, Devon, EX22 — £425,000 • 4 bed • 2 bath • 1803 ft²
4 bedroom detached house for sale in Witheridge Close, Bradworthy, Holsworthy, Devon, EX22 — £435,000 • 4 bed • 2 bath • 1506 ft²
4 bedroom detached house for sale in Long Park Drive, Bradworthy, Holsworthy, Devon, EX22 — £425,000 • 4 bed • 2 bath • 1803 ft²
3 bedroom semi-detached house for sale in East Putford, Holsworthy, Devon, EX22 — £410,000 • 3 bed • 2 bath • 520 ft²
3 bedroom detached house for sale in Primrose Meadow, Bradworthy, Holsworthy, EX22 — £300,000 • 3 bed • 2 bath • 481 ft²






















