Ideal family home close to parks, shops and highly rated schools.
- Three bedrooms with master en suite
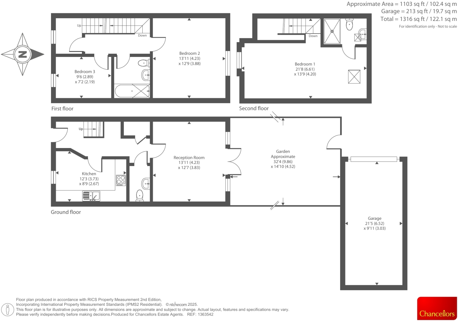
- Large internal area: 1,316 sq ft
- Mid-terrace townhouse with garage and driveway
- Ground-floor W/C and family bathroom
- Small rear garden and compact outdoor space
- Slow local broadband speeds; limited for heavy remote work
- Freehold tenure, low crime, no flood risk
- Close to shops, parks and top-rated schools
A well-presented three-bedroom mid-terrace townhouse offering generous living space across multiple levels. The large 1,316 sq ft layout includes a ground-floor W/C, an open-plan reception and a master bedroom with en suite, plus a standalone garage and driveway for convenient parking.
Set within an established, affluent area close to Boundary Park and Asda, the house suits growing families who value easy access to shops, parks and several highly rated schools, including two Outstanding primary/secondary options nearby. Low crime, good mobile signal and no flood risk add practical reassurance.
Practical drawbacks to note: the rear plot is small and outdoor space is compact; the main bathroom and one upstairs room are modest in size. Broadband speeds are reported as slow, which may affect heavy home-working or streaming without a faster provider. Overall this property offers immediate move-in condition with scope to personalise where desired.
3 bedroom town house for sale in Greenwood Way, Didcot, OX11 — £360,000 • 3 bed • 2 bath • 1102 ft²
3 bedroom terraced house for sale in Cherry Tree Road, Didcot, OX11 — £380,000 • 3 bed • 2 bath • 1084 ft²
4 bedroom town house for sale in Pickering Row, Wantage, OX12 — £400,000 • 4 bed • 2 bath • 1242 ft²
3 bedroom semi-detached house for sale in Moreland Road, Didcot, OX11 — £410,000 • 3 bed • 2 bath • 1399 ft²
3 bedroom town house for sale in Barn Owl Way, Didcot, OX11 — £375,000 • 3 bed • 3 bath • 1017 ft²
3 bedroom detached house for sale in Speedwell Arch, Harwell, OX11 — £415,000 • 3 bed • 2 bath • 926 ft²






















































































