Comfortable family living near Didcot Parkway with parking and good schools.
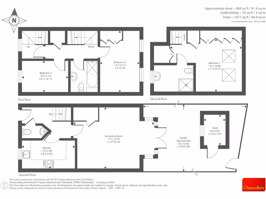
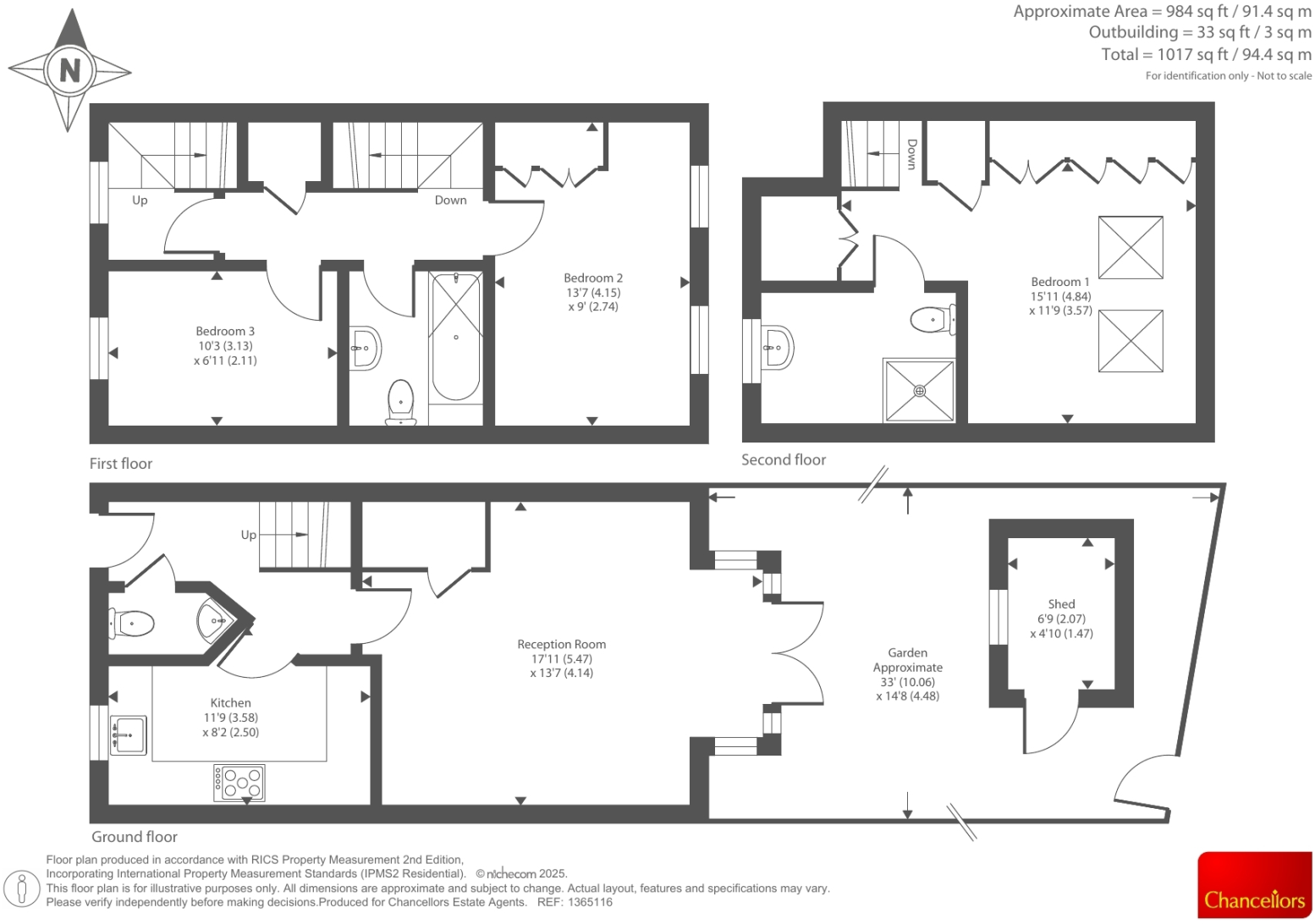
- Three bedrooms across three storeys, main bedroom with en-suite
- Integrated kitchen and separate sitting/dining room
- Downstairs cloakroom plus family bathroom (three bathrooms total)
- Two off-street parking spaces to the front
- Freehold; approximately 1,017 sq ft internal area
- Small rear garden and modest plot size
- Multi-storey layout may be unsuitable for limited mobility
- Located ~1.4 miles from Didcot Parkway, fast broadband and excellent mobile signal
A practical three-bedroom townhouse in Didcot, arranged over three storeys and offering sensible family living close to transport links. The ground floor features an integrated kitchen, cloakroom and a sitting/dining room; the main bedroom benefits from an en-suite while a family bathroom serves the other bedrooms. Two off-street parking spaces to the front and double glazing add everyday convenience.
The house is freehold, around 1,017 sq ft and sits approximately 1.4 miles from Didcot Parkway, making commuting straightforward. Local schools include Outstanding and Good Ofsted-rated primaries and secondaries, and the neighbourhood is described as a very affluent, low-crime suburban area with fast broadband and excellent mobile signal.
Practical points to note: the plot is small with a modest garden, and the multi-storey layout involves stairs between floors which may not suit limited mobility. The property is presented in a modern style with average room sizes and standard ceiling heights, so buyers seeking larger outside space or single-level living should factor that in.
Overall this is a sensible family home or a low-maintenance long-term purchase for buyers wanting strong local schools, good transport links and ready-to-live-in accommodation with some scope for interior updates.
3 bedroom house for sale in Sayers Orchard, Didcot, OX11 — £318,000 • 3 bed • 1 bath • 818 ft²
3 bedroom end of terrace house for sale in Greenfinch Road, Didcot, OX11 — £400,000 • 3 bed • 2 bath • 1131 ft²
3 bedroom terraced house for sale in Queensway, Didcot, OX11 — £320,000 • 3 bed • 1 bath • 840 ft²
3 bedroom semi-detached house for sale in Dan Read Parade, Didcot, OX11 — £415,000 • 3 bed • 1 bath • 1083 ft²
3 bedroom end of terrace house for sale in Greenfinch Road, Didcot, OX11 — £200,000 • 3 bed • 2 bath • 1131 ft²
3 bedroom detached house for sale in Park Road, Didcot, OX11 — £425,000 • 3 bed • 2 bath • 1170 ft²


















































































