Well-located three-bed with garden and renovation potential for an enterprising family.
Freehold semi-detached 1930s house with bay-fronted reception room
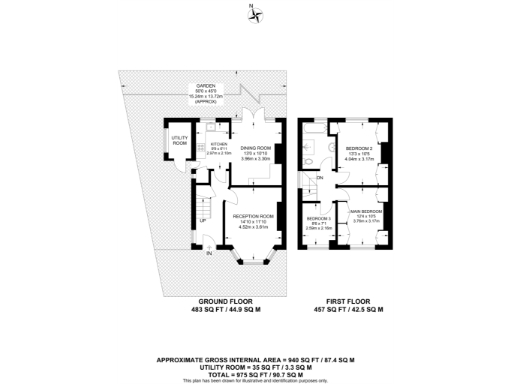
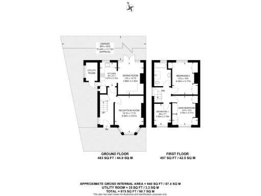
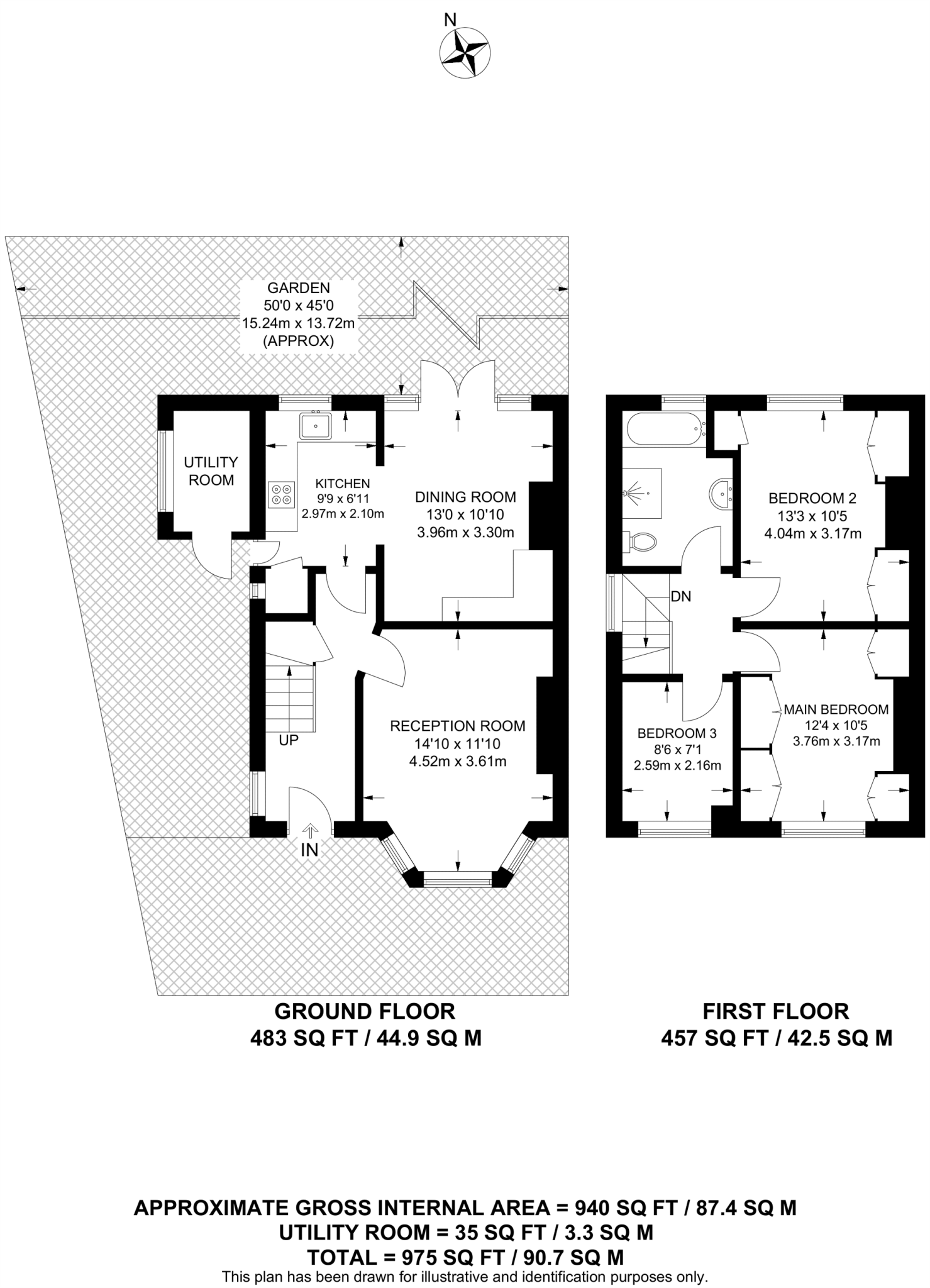
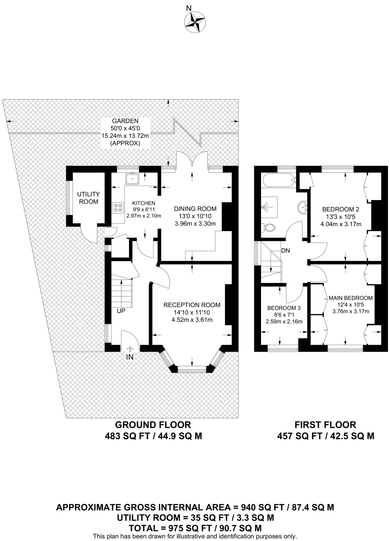
Approximately 975 sq ft arranged over two floors
Large private garden and decent plot size
Garage and on-site parking available
Needs full cosmetic renovation; kitchen and bathroom updates required
Single bathroom only; three bedrooms upstairs
Excellent mobile signal and fast broadband speeds
Located near town centre, station, schools; crime levels are high
This 1930s semi offers three bedrooms, a bay-fronted reception and generous private garden in a well-connected Guildford location. The house is freehold, comfortably sized at about 975 sq ft, and sits within easy reach of the town centre, station, university and good primary and secondary schools.
The accommodation is straightforward and liveable but requires renovation throughout: cosmetic updating, kitchen and bathroom modernisation and general refurbishment are needed. There is scope to reconfigure spaces and add value, appealing to buyers seeking a project or those wanting to create a contemporary family home while retaining period character.
Practical positives include a garage, decent plot size and excellent mobile and broadband connectivity. Note the property has only one bathroom and is in an area with higher-than-average crime levels, which some buyers will want to consider when budgeting for improvements and security measures.
Overall this is a characterful, well-located family home with clear potential for uplift after renovation. It will suit buyers who prioritise location and outside space and who are prepared to invest time and money to modernise the interior.
3 bedroom semi-detached house for sale in Hornbeam Road, Guildford, Surrey, GU1 — £500,000 • 3 bed • 1 bath • 1377 ft²
3 bedroom semi-detached house for sale in Cardamom Close, Guildford, Surrey, GU2 — £425,000 • 3 bed • 1 bath • 964 ft²
3 bedroom detached house for sale in Waltham Avenue, Guildford, Surrey, GU2 — £595,000 • 3 bed • 2 bath • 1167 ft²
2 bedroom semi-detached house for sale in Guildford, Guildford, GU2 — £400,000 • 2 bed • 1 bath • 722 ft²
3 bedroom semi-detached house for sale in Rosetrees, Guildford, Surrey, GU1 — £575,000 • 3 bed • 1 bath • 1044 ft²
3 bedroom semi-detached house for sale in Grange Road, Guildford, GU2 — £475,000 • 3 bed • 1 bath • 969 ft²






















































































































