DE65 6EZ - Land for sale in Land Adjacent to 42 Main Street, Repton ,…

View on Property Piper

Land for sale in Land Adjacent to 42 Main Street, Repton , Derby DE65 6EZ, DE65

Summary - BIRCHCROFT, 38A MAIN STREET REPTON DERBY DE65 6EZ

1 bed 1 bath Land

**Standout Features:**
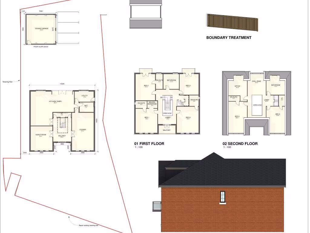
- Freehold single building plot in Repton, measuring approximately 1/4 acre.
- Approved outline planning permission (DMPA/2023/071) for a detached dwelling.
- Backing onto picturesque open fields, offering a serene setting.
- Conveniently located with excellent access to A38, Derby, Toyota, and A50.
- Low crime area with good local amenities.
- Auction sale date set for September 25, 2025.

Discover the potential to create your dream home on this stunning freehold plot located on the edge of the historic village of Repton. Spanning approximately 1/4 acre, this broadly rectangular property comes with outline planning permission for a single detached dwelling, providing you with the canvas to design a home tailored to your lifestyle. With reserved matters yet to be finalized, you have the unique opportunity to shape every aspect of your new residence while enjoying the tranquility of open fields right outside your door.

The village offers a variety of amenities and is well-regarded for its educational institutions, including the prestigious Repton School. This location boasts excellent transportation links to Derby, Toyota, and beyond, making it perfect for commuting or enjoying the vibrant regional offerings.

Please note that while this plot presents an incredible opportunity, potential buyers should prepare for additional considerations regarding reserved matters. Don’t miss out on this rare chance—seize the opportunity to bid at auction on September 25, 2025, and begin the journey towards crafting your ideal home in a beautiful setting!

Property Details

Image Descriptions

Textual Property Features

Detected Visual Features

Nearby Schools

Nearest Bars And Restaurants

,,,,}

Nearest General Shops

,,}

Nearest Grocery shops

,,}

Nearest Supermarkets

,,}

Nearest Religious buildings

,,}

Nearest Medical buildings

,,,}

Nearest Airports

}

Nearest Leisure Facilities

,,,,}

Nearest Tourist attractions

,,}

Nearest Train stations

,,,,}

Nearest Bus stations and stops

,,,,}

Nearest Hotels

,,}

Tags

Local Market Stats

Similar Properties

Meta

High Res Images

Compatible Images

Low res Images

Thumbnails

Raw Images