Generous garden and parking near excellent schools and transport links.
Four bedrooms with spacious living and dining areas
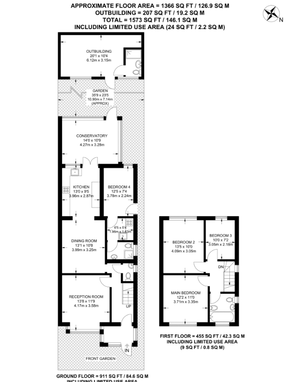
Large private rear garden plus separate outbuilding
Private driveway and garage provide off-street parking
Short walk to Hounslow East Tube and local shops
Two modern bathrooms; modern kitchen reduces immediate works
Listed as 1930s solid brick; assumed no wall insulation
Local crime levels recorded as high — consider security/insurance
Some data discrepancy: built form listed as mid-terrace despite detached listing
This four-bedroom home on Tiverton Road offers practical family living with clear strengths: roomy reception spaces, a modern kitchen, two bathrooms, off-street parking and a garage. The large private rear garden and separate outbuilding add outdoor space and storage that will appeal to families and buyers seeking scope to adapt. Its location is a major convenience asset, a short walk from Hounslow East Tube and close to several well-rated primary and secondary schools.
The house is described as detached and provides straightforward, comfortable accommodation across multiple storeys. The interior feels bright and well-proportioned, and the modern kitchen and bathrooms reduce immediate refurbishment needs in the main living areas. For families, everyday life is supported by nearby shops, parks and regular public transport links into Central London.
There are a few material points to note honestly. Local crime levels are described as high, which should be considered when assessing suitability and insurance costs. Property records list the construction era as 1930s solid brick with assumed no wall insulation, so buyers should expect potential energy-efficiency upgrades (insulation, glazing checks) and routine maintenance associated with older buildings. Broadband speeds are average; mobile signal is excellent. Also, some source data records the built form as mid-terrace despite the property being marketed as detached — that discrepancy should be clarified in legal/title checks.
Overall this property suits growing families wanting space near good schools and transport, and buyers prepared to carry modest energy-efficiency or maintenance work typical of a 1930s home. The generous garden, parking and proximity to local amenities underpin longer-term value and family living convenience.
3 bedroom terraced house for sale in Tiverton Road, Hounslow, TW3 — £510,000 • 3 bed • 2 bath • 1012 ft²
4 bedroom end of terrace house for sale in Basildene Road, Hounslow, TW4 — £850,000 • 4 bed • 4 bath • 1725 ft²
4 bedroom semi-detached house for sale in Dudley Road, Feltham, Middlesex, TW14 — £575,000 • 4 bed • 2 bath • 1223 ft²
5 bedroom semi-detached house for sale in Great South West Road, Hounslow, TW4 — £770,000 • 5 bed • 3 bath • 2040 ft²
4 bedroom semi-detached house for sale in Ferndale Avenue, Hounslow, TW4 — £650,000 • 4 bed • 2 bath • 1397 ft²
3 bedroom detached house for sale in Bath Road, Hounslow, TW3 — £750,000 • 3 bed • 2 bath • 1036 ft²






























