Spacious plot and excellent transport links for busy family life.
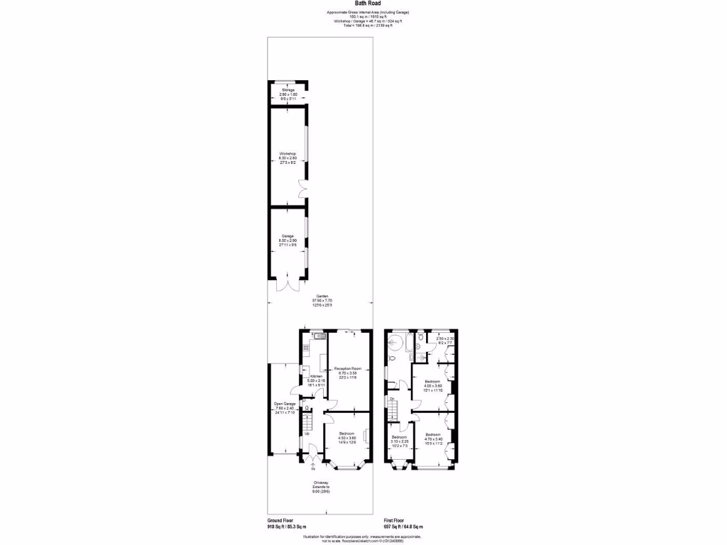
Chain-free detached house with three generously sized bedrooms
Large private rear garden and substantial plot for the area
Off-street parking plus attached garage
Two reception rooms and two bathrooms; versatile family layout
Walking distance to Hounslow West and Hounslow Central stations
Solid brick walls — likely no wall insulation, may need upgrading
Habitable but dated throughout; requires modernisation to maximise value
Expensive council tax band noted
This detached three-bedroom house on Bath Road offers a practical family layout and a large private garden — rare for the street. Internally the rooms are generous by local standards, with two reception rooms, two bathrooms and a straightforward footprint that will suit growing families.
The home's location is a major benefit: within easy walking distance of Hounslow High Street, Hounslow West and Hounslow Central stations, with good bus links and fast broadband. Several highly rated primary and secondary schools are close by, making the property well placed for family life.
The house is habitable but requires modernisation to reach full potential. The property has solid brick walls (likely no cavity insulation) and dated fittings; upgrading heating, kitchen and bathrooms, and adding insulation could improve comfort and energy performance. There is scope for extension or reconfiguration subject to planning.
Chain-free sale and keys available make viewings straightforward. Buyers should note the property attracts an expensive council tax band. Overall, this is a practical family home with sizeable outdoor space and strong transport and school links, best suited to purchasers willing to invest some refurbishment to personalise and add value.
3 bedroom detached house for sale in Great West Road, Hounslow, TW5 — £679,950 • 3 bed • 1 bath • 1001 ft²
5 bedroom detached house for sale in Cranford Lane, Hounslow, TW5 — £900,000 • 5 bed • 3 bath • 1773 ft²
3 bedroom detached house for sale in Sutton Road, Hounslow, TW5 — £750,000 • 3 bed • 1 bath • 1153 ft²
4 bedroom terraced house for sale in Avonwick Road, Hounslow, TW3 — £560,000 • 4 bed • 2 bath • 1175 ft²
2 bedroom house for sale in Grove Road, Hounslow, TW3 — £440,000 • 2 bed • 1 bath • 689 ft²
3 bedroom semi-detached house for sale in Hounslow Avenue, Hounslow, TW3 — £600,000 • 3 bed • 1 bath • 1189 ft²


































































