**Standout Features**:
- Newly built semi-detached house
- Spacious three-story design
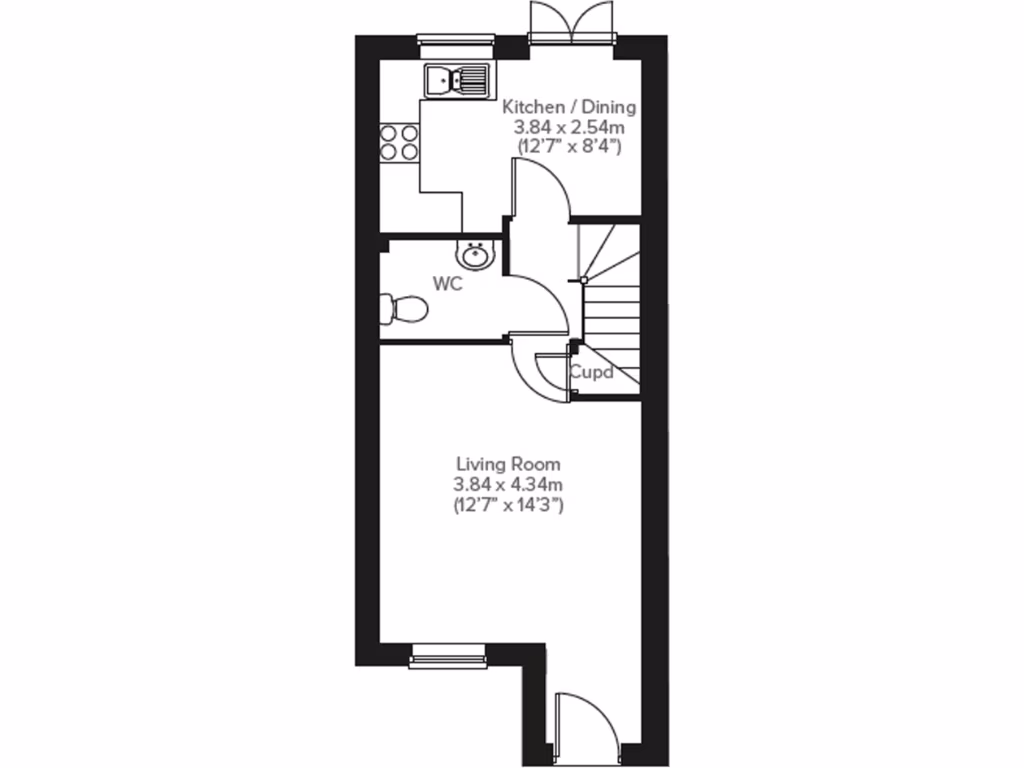
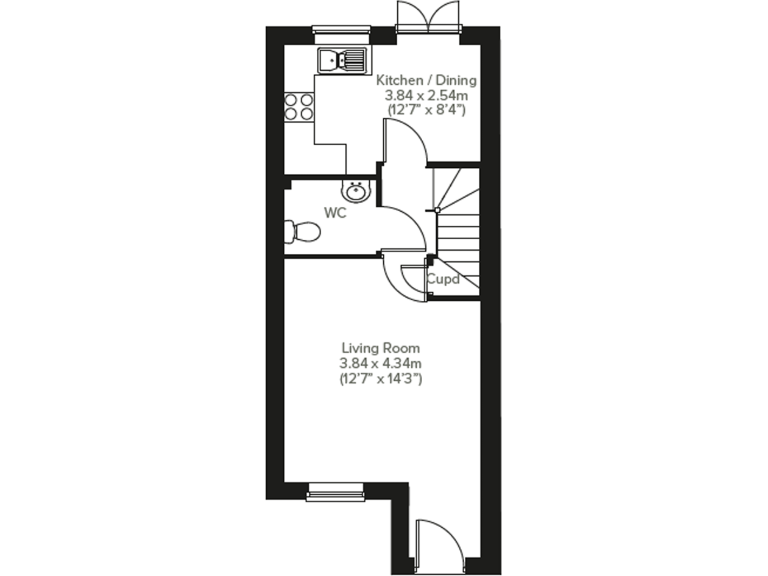
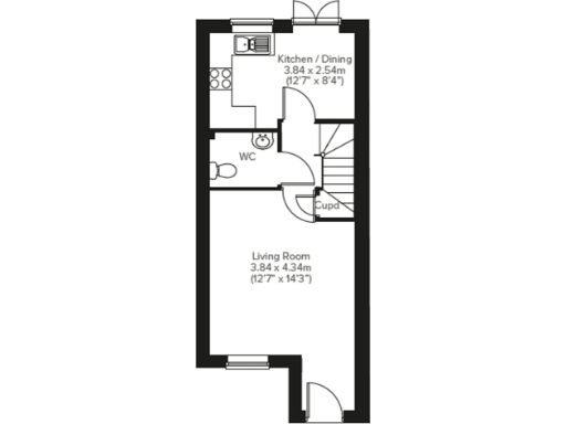
- Open-plan kitchen/dining room with French doors to garden
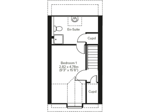
- Large first bedroom with en suite
- Off-street parking
- Close proximity to several good-rated schools
**Summary**:
Discover modern living in this newly constructed, three-bedroom semi-detached home at Mown Meadows, nestled in a desirable neighborhood. The bright and airy open-plan kitchen/dining area features contemporary designs and convenient French doors that open into a private garden, perfect for family gatherings or quiet evenings outdoors. The first floor boasts a spacious living room and two additional bedrooms, while the top floor offers a large master suite with its own en suite bathroom, promoting privacy and comfort.
This property is ideal for families or first-time buyers seeking ample space and modern conveniences with the potential for personal touches. Practical elements, such as a downstairs WC and handy storage cupboards on the second floor, add to the home's functionality. Enjoy the peace of mind that comes with a newly built residence, along with the benefits of off-street parking and a prime location near well-rated schools.
While living in this affable neighborhood offers seclusion and tranquility, be mindful that crime rates are above average in the area, an important factor for potential buyers. With a freehold tenure and fast broadband access, this property combines modern amenities and future renovation potential—don’t miss the chance to make this your new family home!
3 bedroom semi-detached house for sale in High West Road,
Crook,
County Durham,
DL15 9NS, DL15 — £199,995 • 3 bed • 1 bath • 654 ft²
4 bedroom detached house for sale in High West Road,
Crook,
County Durham,
DL15 9NS, DL15 — £289,995 • 4 bed • 1 bath • 878 ft²
4 bedroom detached house for sale in High West Road,
Crook,
County Durham,
DL15 9NS, DL15 — £289,995 • 4 bed • 1 bath • 878 ft²
3 bedroom end of terrace house for sale in High West Road,
Crook,
County Durham,
DL15 9NS, DL15 — £189,995 • 3 bed • 1 bath • 572 ft²
3 bedroom end of terrace house for sale in High West Road,
Crook,
County Durham,
DL15 9NS, DL15 — £189,995 • 3 bed • 1 bath • 573 ft²
2 bedroom bungalow for sale in High West Road,
Crook,
County Durham,
DL15 9NS, DL15 — £199,995 • 2 bed • 1 bath • 503 ft²






































