Compact family layout with garden and allocated parking.
Three-storey modern semi-detached new build
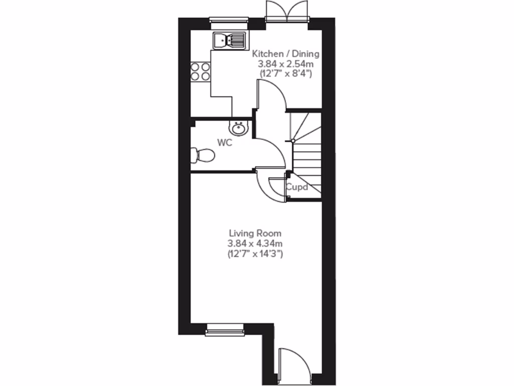
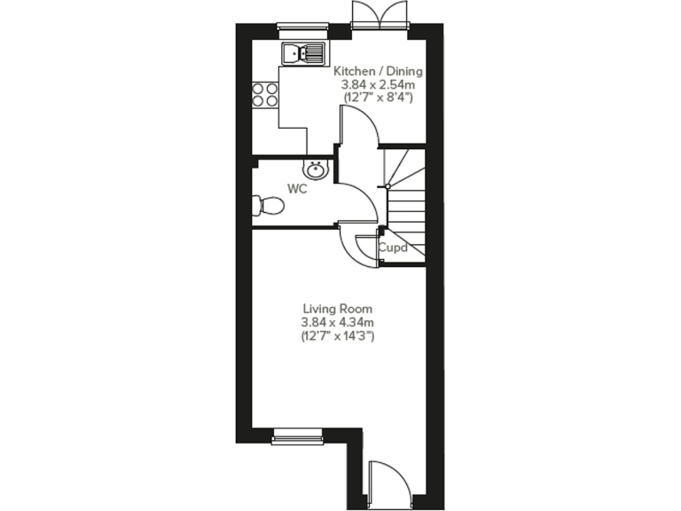
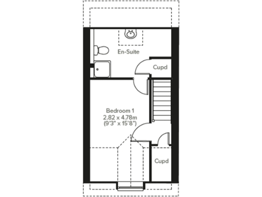
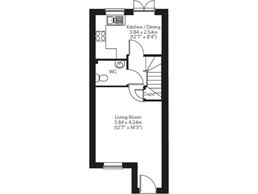
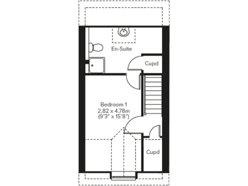
This modern three-storey semi-detached home in Crook offers compact, well-planned living across 654 sq ft. The open-plan kitchen/dining room with French doors leads onto a private garden, while a front-aspect living room provides a comfortable reception space. The top-floor master bedroom includes an en suite; two further bedrooms occupy the middle floor, making the layout suitable for a small family or home-worker.
The Saunton design emphasises practicality: an enclosed porch, useful downstairs WC, and three storage cupboards across the house add convenience. Off-street allocated parking and a very large plot for the development provide outdoor space and parking security. New-build specification and fast broadband/strong mobile signal are positives for modern family routines.
Buyers should note the home is modest in overall internal size and has just one full bathroom plus a downstairs WC, which may feel tight for three occupants. Crime levels in the area are reported as above average; prospective buyers may want to check local safety measures. Council tax banding is not yet set until occupation. The property is freehold and new build, requiring no immediate maintenance but offering limited scope for internal expansion due to footprint size.
3 bedroom semi-detached house for sale in High West Road,
Crook,
County Durham,
DL15 9NS, DL15 — £199,995 • 3 bed • 1 bath • 654 ft²
3 bedroom semi-detached house for sale in High West Road,
Crook,
County Durham,
DL15 9NS, DL15 — £159,996 • 3 bed • 1 bath • 654 ft²
4 bedroom detached house for sale in High West Road,
Crook,
County Durham,
DL15 9NS, DL15 — £289,995 • 4 bed • 1 bath • 878 ft²
4 bedroom detached house for sale in High West Road,
Crook,
County Durham,
DL15 9NS, DL15 — £259,995 • 4 bed • 1 bath • 413 ft²
4 bedroom detached house for sale in High West Road,
Crook,
County Durham,
DL15 9NS, DL15 — £289,995 • 4 bed • 1 bath • 878 ft²
3 bedroom end of terrace house for sale in High West Road,
Crook,
County Durham,
DL15 9NS, DL15 — £189,995 • 3 bed • 1 bath • 572 ft²






























































